
This charming Colonial-style residence in Flushing, NY, offers timeless appeal with modern comforts. Featuring 3 bedrooms, 3 bathrooms, and approximately 1,850 sq. ft. of living space, this brick home boasts a classic symmetrical facade, elegant architectural details, and a welcoming atmosphere perfect for refined suburban living.
1. Colonial Brick Home with Classic Charm

This stately two-story Colonial home presents a timeless brick facade with crisp white trim, exuding traditional elegance. A symmetrical design highlights its classic appeal, with a central entryway framed by a decorative pediment. The wrought-iron door adds a refined touch, while neatly manicured landscaping enhances the home’s curb appeal. A covered side terrace provides a cozy outdoor retreat, complementing the home’s well-balanced proportions and inviting character.
2. Where is Flushing?

Flushing, located in the heart of Queens, NY, is a dynamic and diverse neighborhood known for its rich history and vibrant culture. Home to a thriving international community, it offers a mix of modern high-rises, historic homes, and bustling commercial districts. Flushing is a hub for world-class dining, shopping, and entertainment, while its parks and green spaces provide a welcome retreat. With excellent transit connections and a strong sense of community, Flushing blends urban energy with residential charm.
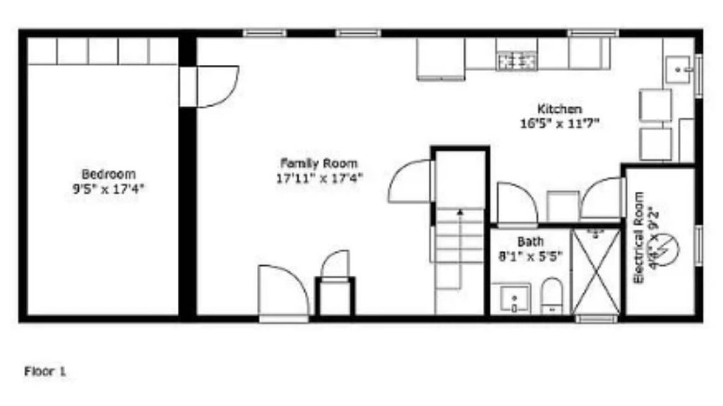
3. Functional and Inviting First Floor

Designed for both comfort and convenience, the first floor offers a spacious family room that serves as the heart of the home. A well-appointed kitchen provides ample counter space, seamlessly connecting to the main living area. A private bedroom offers versatility, while a full bathroom ensures accessibility. Additional storage and an electrical room add practicality. With its open layout and thoughtful design, this level is perfect for gatherings, daily living, or accommodating guests.
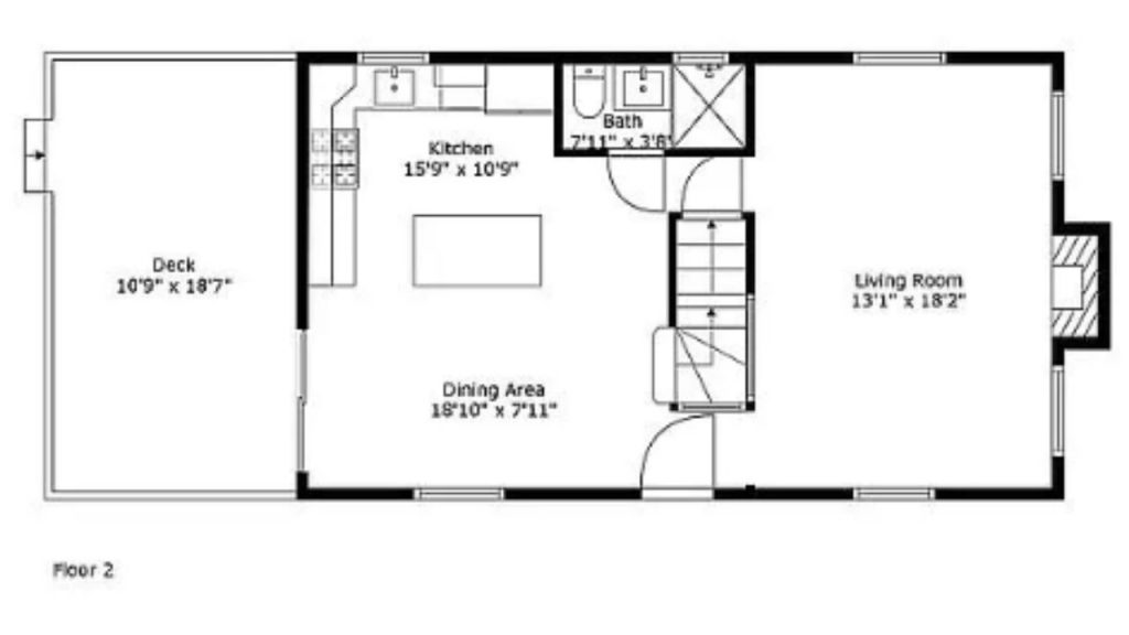
4. Open and Airy Second Floor

Designed for seamless living, the second floor features an open-concept layout that connects the kitchen, dining area, and living room. A spacious kitchen with a center island overlooks the dining space, making it ideal for entertaining. The bright living room provides a comfortable retreat, while a conveniently placed half bath adds functionality. A large deck extends the living space outdoors, offering a perfect spot for relaxation or gatherings. Thoughtfully arranged, this level balances style and practicality.
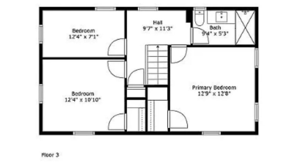
5. Comfortable and Well-Appointed Third Floor

The third floor is designed for rest and privacy, featuring three bedrooms, including a spacious primary suite. A central hallway connects each room, ensuring easy access while maintaining a sense of separation. The shared full bath is conveniently located for all occupants. Large windows in each bedroom allow for natural light, creating bright and airy spaces. Ample storage throughout ensures practicality, making this floor ideal for families or those in need of extra living space.
6. Modern Kitchen with Sleek Elegance

This bright and airy kitchen blends contemporary style with practical design. Glossy white cabinetry extends to the ceiling, maximizing storage while reflecting natural light. A spacious island, complete with a gas cooktop and seating for two, anchors the space. Stainless steel appliances add a polished touch, while soft beige walls and floor-to-ceiling drapes introduce warmth. Nearby, a sleek dining area with mid-century modern chairs rests atop a plush rug, creating a cozy yet refined atmosphere.
7. Sophisticated Spa-Like Bathroom

This sleek bathroom blends elegance with modern functionality. Large-format marble tiles line the walls, creating a seamless, spa-like ambiance. A floating vanity with gold hardware adds a touch of luxury, while an illuminated mirror enhances the space with soft, ambient lighting. The glass-enclosed shower features a rainfall showerhead and pebble flooring, offering a tranquil retreat. Frosted windows provide natural light and privacy, completing this refined, contemporary oasis.
8. Bright and Inviting Multi-Use Living Space

This open-concept living area offers both comfort and versatility. A plush white sectional provides ample seating, complemented by soft blue accent pillows. Natural light filters through a large window, illuminating the built-in daybed with storage below. A sleek workstation blends seamlessly into the design, creating a functional workspace. The floating staircase with glass railings adds a modern touch, while the light wood flooring and neutral tones enhance the airy, welcoming ambiance.
9. Cozy and Minimalist Bedroom

This serene bedroom features a neutral color palette with soft white walls and warm wood flooring. A plush upholstered headboard complements the queen-sized bed, dressed in a patterned duvet cover. Natural light flows in through two windows, adding to the airy ambiance. The modern nightstand, paired with a sleek white lamp, provides a functional yet stylish touch. A geometric-patterned rug introduces subtle pops of color, while a white dresser completes the minimalist aesthetic.
10. Modern Basement Living Space

This inviting basement living area features a neutral color scheme with beige walls and light wood flooring. A cozy sectional sofa with patterned throw pillows provides comfortable seating, complemented by a small round glass-top table on a plush area rug. Open shelving offers organized storage, while recessed lighting brightens the space. The layout seamlessly connects to a kitchenette, creating a functional and stylish multipurpose area. The staircase leads to the upper level, adding depth to the room’s design.
11. Multipurpose Kitchen & Laundry Area

This space efficiently combines a kitchen and laundry area with a modern design. The kitchen features stainless steel appliances, including a gas range, microwave, dishwasher, and toaster oven, set against white cabinetry and marble-look countertops. The washer and dryer are seamlessly integrated into the layout, maximizing functionality. Light-colored flooring and recessed lighting create a bright and open atmosphere. This well-organized space is perfect for convenience and practicality.
12. Cozy and Functional Bedroom

This bedroom has a warm and inviting ambiance with neutral tones and soft lighting. The large bed, adorned with a simple quilt and floral accent pillows, provides a comfortable sleeping space. A white nightstand with open storage holds daily essentials, while a modern dresser adds extra storage. The gray upholstered armchair and matching ottoman create a cozy reading nook. A wall-mounted air conditioning unit ensures comfort. The space is both stylish and practical, with a minimalist design that maximizes functionality.
13. Spacious Covered Patio with Backyard View

This patio offers a relaxing outdoor space with a sturdy metal roof, providing shade and protection from the elements. The black metal railing adds safety while maintaining an open feel. A wooden chair with white cushions offers seating, creating a cozy atmosphere. The patio overlooks a well-maintained backyard featuring a lush green lawn, neatly trimmed bushes, and a small garden shed. A paved walkway leads through the yard, adding functionality and charm. This is a great space for outdoor gatherings or simply unwinding while enjoying the fresh air.
14. Well-Maintained Backyard with Shed and Landscaping

This backyard is beautifully maintained with a lush green lawn, neatly trimmed hedges, and a few small trees. A paved walkway with a slight curve adds charm and leads toward a small wooden shed, which provides convenient storage. The yard is enclosed by a tall white fence, ensuring privacy. The presence of a decorative topiary and potted plants adds a touch of elegance to the space. This backyard is ideal for relaxing outdoors, gardening, or even small gatherings.
Listing Agent – Justin Chew @ Remax 1st Choice via Zillow.