
Nestled in scenic Pleasant View, UT, this stunning 7-bedroom ranch-style home offers 5,462 sq. ft. of spacious living on a 1.88-acre lot. Enjoy breathtaking mountain and valley views from the beautifully landscaped yard, which features lush greenery and fruit trees. The walk-out basement leads to a vast backyard, while the lower-level family room provides the perfect gathering space. A 3-car garage ensures ample storage. With plenty of room to entertain and relax, this exceptional home is priced at $1,150,000.
1. Charming Ranch with Scenic Views

This beautiful ranch-style home boasts charming curb appeal with a well-maintained brick exterior, a large three-car garage, and mature landscaping. A curved driveway leads to the welcoming front entrance, framed by lush greenery and a vibrant tree that adds a splash of seasonal color. Set on a spacious lot in a quiet neighborhood, the home offers scenic views of surrounding nature and farmland, creating a peaceful, country-like atmosphere with suburban convenience.
2. Where Is Pleasant View, UT?

Pleasant View, UT is a small city located in northern Utah, just north of Ogden and about 45 miles from Salt Lake City. Nestled along the Wasatch Front, it offers stunning mountain views and a peaceful suburban atmosphere. The area is known for its spacious homes, family-friendly neighborhoods, and easy access to outdoor recreation like hiking, skiing, and golfing. With nearby schools, parks, and local shops, Pleasant View blends small-town charm with convenient access to urban amenities and natural beauty.
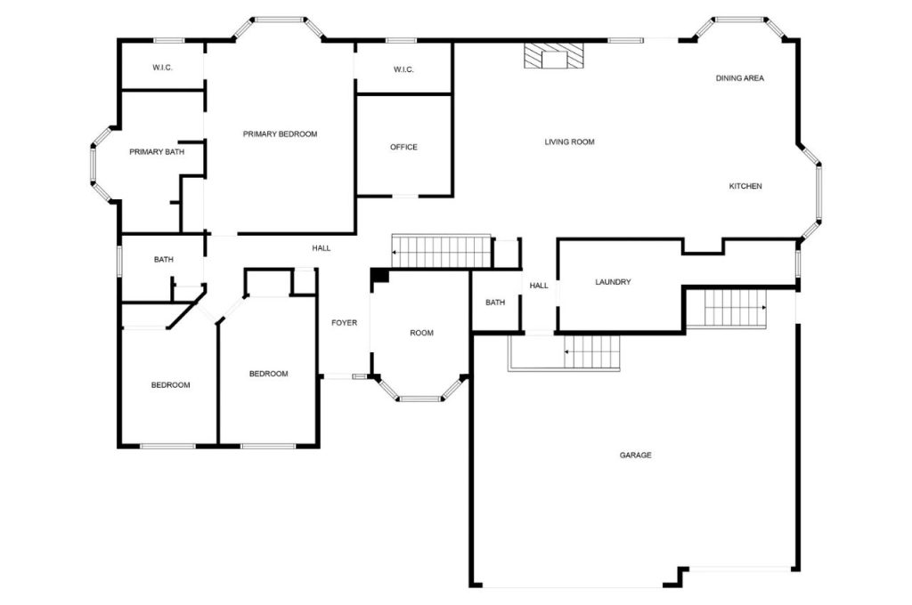
3. Ground Floor Layout

The ground floor of this home features a spacious open-concept layout ideal for modern living. The heart of the home includes a large kitchen that flows into a bright dining area and an expansive living room with a fireplace. The primary bedroom is tucked away with dual walk-in closets, a private bath, and a connected office. Two additional bedrooms share a hall bath, while a separate room near the foyer adds flexible living space. A laundry room, third bathroom, and generous garage complete the functional design.
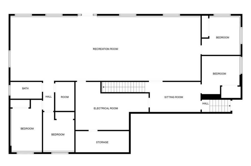
4. upper Floor Layout

The top floor of this home offers a spacious and versatile layout designed for both comfort and entertainment. At its heart is a large recreation room, ideal for games, gatherings, or relaxing. Multiple bedrooms and a full bath provide ample space for guests or family members. A cozy sitting room adds a quiet retreat, while additional rooms and a large storage area offer flexibility for hobbies or organization. With multiple access points and well-defined spaces, this floor is both functional and welcoming.
5. Open-Concept Living Room

This inviting living room features an open-concept layout that seamlessly connects to the dining and kitchen areas, perfect for entertaining. A cozy fireplace framed by rich wood cabinetry and a mounted TV creates a warm focal point. The room is anchored by a spacious sectional sofa atop a large area rug, offering ample seating. Natural light pours in through shuttered glass doors and windows, enhancing the bright and airy feel, while hardwood floors add warmth and timeless style.
6. Elegant Kitchen

This kitchen is a warm and functional centerpiece with rich wood cabinetry, granite countertops, and a large central island featuring built-in seating. The layout offers ample storage and prep space, with upper and lower cabinets lining the walls. A window over the sink provides natural light and a backyard view, while modern white appliances blend seamlessly into the space. Perfect for casual dining or entertaining, this kitchen balances elegance with everyday convenience.
7. Built-In Home Office Workspace

This dedicated home office is designed for productivity and organization, featuring built-in desks, abundant drawer storage, and upper cabinets. Light wood cabinetry and open shelving provide both function and warmth, while dual monitors and a printer setup make it ideal for remote work or study. Neutral walls and soft flooring create a calm atmosphere, and ample counter space ensures there’s room for multitasking or creative projects.
8. Bedroom with Wellness Nook

This spacious bedroom offers a relaxing retreat with plush carpeting, soft gray walls, and a ceiling fan for year-round comfort. A large bed with vibrant bedding anchors the room, while natural wood furniture adds warmth and charm. A cozy nook behind a curtain houses fitness equipment and a massage chair, perfect for wellness routines. Recessed lighting and tasteful decor complete the serene atmosphere, making this space ideal for both rest and rejuvenation.
9. Spa-Inspired Bathroom Retreat

This serene bathroom features a spacious soaking tub set in a bright bay window alcove, which is ideal for relaxing in natural light. Plantation shutters offer privacy while maintaining a clean, elegant look. A separate glass-enclosed shower with gold trim adds a touch of luxury. Potted plants bring a spa-like ambiance to the space, complementing the crisp white walls and deep green flooring. Perfectly blending comfort and style, this bathroom is a tranquil retreat within the home.
10. stylish Guest Bedroom

This cozy bedroom offers a calming atmosphere with soft gray walls, plush carpeting, and a large window with plantation shutters and drapes for privacy and light control. The bed is dressed in a stylish black, white, and gray comforter set, complemented by coordinating accent pillows. A modern floor lamp and bedside table add functional charm, while the overall design makes this room a restful and inviting space for relaxation or guests.
11. Bright Guest Bathroom

This bright and cheerful bathroom features a clean white color palette accented with stylish decor and fresh flowers. A wide vanity with a polished countertop offers generous space, while a large mirror and overhead lighting enhance the room’s brightness. A window above the toilet brings in natural light, complementing the soft tones. The shower-tub combo with a decorative curtain adds functionality, making this space both practical and inviting for guests or family use.
12. Bedroom with Smart Storage

This cozy bedroom features a fun and youthful design with a textured accent wall and playful décor. A raised bed with built-in storage drawers maximizes space, while a large window lets in natural light and offers a view of the outdoors. Soft carpeting adds comfort underfoot, and a compact nightstand provides practical bedside storage. With its blend of function and personality, this room is perfect for a child, teen, or guest.
13. Spacious Laundry Room

This spacious laundry room is both practical and well-organized, featuring a side-by-side washer and dryer, ample cabinetry, and generous countertop space for folding. Bright lighting and tile flooring enhance the functionality, while a rolling laundry cart and hanging rack add efficiency. A plush rug softens the look, and a walk-in pantry or storage nook at the end provides even more utility. This room blends form and function, making laundry tasks a breeze.
14. Multi-Purpose Recreation Room

This expansive recreation room combines comfort and versatility, featuring sleek wood-style flooring and ample natural light from multiple windows. One side is equipped with workout machines for home fitness, while the other includes a dining table ideal for games or casual gatherings. A cozy sitting area adds a spot to relax, and double glass doors provide easy access to the outdoors. With plenty of space and flexibility, this room adapts perfectly to a variety of activities and lifestyles.
15. Scenic Backyard with Deck and Patio

The backyard of this home is a lush, green oasis framed by mature trees and mountain views. A spacious lawn offers plenty of room for play or outdoor entertaining, while a covered patio and upper-level deck provide shaded seating areas. A vine-covered pergola adds charm and privacy, and well-maintained landscaping enhances the serene atmosphere. Perfect for relaxing or hosting gatherings, this backyard blends natural beauty with functional outdoor living.
Listing agent – Annette Francis @ RE MAX Peaks via realtor.com