
This classic brick townhome at 2823 Shelley Rd, Philadelphia, PA 19152, offers 3 bedrooms, 1.5 bathrooms, and 1,652 sq ft of living space. Priced at $299,900, it features a spacious living room, a formal dining area, and a finished basement with a half bath. The property includes a garage and driveway for off-street parking. Located in the Pennypack neighborhood, it provides convenient access to local schools, parks, and shopping centers
1. Classic Townhome Curb Appeal

This twilight view highlights the charming brick-front façade and distinctive gambrel-style roof of this classic Northeast Philadelphia townhome. A single-car garage and adjacent driveway provide convenient parking, while a manicured front lawn and tiered garden bed add a touch of greenery. The home’s welcoming presence is amplified by the warm interior lights, framed by shuttered windows and a curved bay window near the front door.
2. Where is Philadelphia, PA?

Philadelphia, PA, known as the “City of Brotherly Love,” is a historic and vibrant city located in southeastern Pennsylvania. It’s famous for its rich American history, including landmarks like Independence Hall and the Liberty Bell. The city offers diverse neighborhoods, world-class museums, acclaimed universities, and a dynamic food scene. With access to parks, rivers, and major highways, Philadelphia blends urban excitement with historic charm, making it a desirable place to live, work, and explore.
3. Basement with Flex Space

The basement offers a large recreation room ideal for hosting guests, setting up a home theater, or creating a fitness zone. A convenient half bath adds functionality, while an electrical room provides extra utility space. With multiple entry points and open layout, this level is a flexible extension of the home—perfect for entertaining, relaxing, or future expansion possibilities.
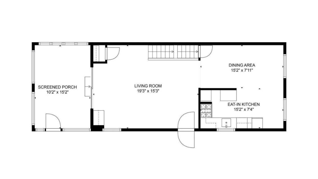
4. Main Floor Layout

The first floor blends functionality and comfort with a spacious living room that connects directly to a screened porch—perfect for enjoying the outdoors in any season. An adjacent dining area and eat-in kitchen offer ideal spaces for meals and gatherings. The open concept enhances natural light and flow, making it a great setting for daily living or entertaining.
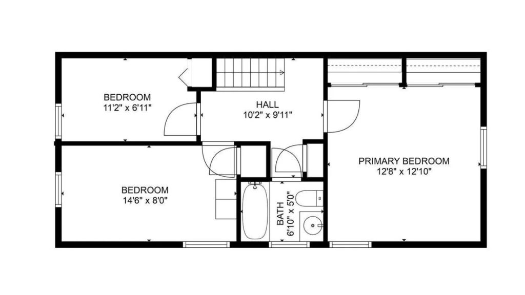
5. upper floor layout

The second floor offers a quiet retreat with three well-laid-out bedrooms, including a spacious primary bedroom with dual windows. Two additional bedrooms sit nearby, ideal for guests, children, or a home office setup. A full hallway bathroom serves all three rooms, while the central hall provides smooth access and flow. This level balances privacy and function, making it perfect for both everyday living and rest.
6. Lower-Level Lounge

This lower-level living space exudes warmth and charm, with neutral walls, plush carpeting, and built-in shelving surrounding sliding glass doors that lead to the screened-in porch. Recessed lighting brightens the area, while classic wood tones in the furniture and trim evoke a sense of comfort. Perfect for relaxing or entertaining, this inviting room seamlessly connects indoor and outdoor living spaces.
7. Vintage-Inspired Galley Kitchen

The kitchen showcases timeless appeal with oak cabinetry featuring detailed trim, soft blue countertops, and walls that add a refreshing pop of color. A vintage-style gas cooktop and matching vent hood provide function with a retro twist. Natural light flows through the shuttered window above the sink, creating a cheerful atmosphere in this efficient and charming culinary space.
8. Traditional Formal Dining Room

This welcoming dining room blends traditional warmth with ample natural light. Wainscoting and paneled wood accents line the lower walls, creating a cozy backdrop for gatherings. A ceiling fan adds comfort, while the neutral palette and layered textures make it easy to personalize. Whether for weeknight meals or holiday dinners, this space is ideal for memorable dining experiences.
9. Serene Primary Retreat

The primary bedroom offers a tranquil retreat with soft carpeting, neutral walls, and large windows that invite gentle light. The classic ceiling fan provides comfort and charm, while the rich wood furnishings bring a stately touch. This generously sized bedroom is perfect for relaxing and recharging after a long day.
10. Cozy Twin Bedroom

This bedroom is thoughtfully designed with twin beds, soft blue accents, and classic wood furniture. The space is bathed in natural light thanks to two windows, while a ceiling fan ensures year-round comfort. Ideal for guests or children, the room balances practicality with charm in a clean, inviting setting.
11. Charming Third Bedroom

This third bedroom adds a playful splash of personality with deep red bedding and floral trim along the ceiling. A textured wall treatment, large dresser, and coordinating nightstand make the space both functional and stylish. A cozy layout and warm tones create a comfortable environment for guests or everyday use.
12. Bright Main Bathroom

Tiled from floor to ceiling, this bright bathroom features a modern vanity with storage, a wall-mounted mirror, and elegant lighting. A window framed by floral curtains adds charm while allowing in soft natural light. The shower-tub combo is perfect for both quick routines and relaxing soaks.
13. Lower-Level Powder Room

Tucked conveniently off the lower level, this half bath features a retro green sink, classic white tile, and nostalgic wallpaper that adds personality. The small window brings in natural light, while the wood-framed mirror and matching cabinetry enhance the vintage vibe. A charming, functional space for guests or daily use.
14. Retro Recreation Retreat

This recreation room combines nostalgic style with versatile functionality. Wood-paneled walls and a brick fireplace create a cozy ambiance, while carpeted flooring ensures comfort. Ideal for gaming, lounging, or movie nights, the space also features built-in shelving, a desk nook, and warm lighting that invites endless possibilities.
15. Screened Porch

The screened porch offers a peaceful extension of the home, enclosed in brick with expansive windows that allow for bug-free breezes and clear backyard views. With green turf-style flooring, ceiling panels, and space for seating, it’s the perfect spot for morning coffee, summer evenings, or relaxed gatherings.
16. Private Fenced Backyard with Shed

The backyard of this home features a spacious, fenced-in area, offering privacy and room for outdoor activities. A large, mature tree provides shade, while the neatly trimmed grass area is perfect for gardening or recreation. A small shed in the corner provides convenient storage for tools or outdoor equipment. The stone pathway leads to the back of the yard, offering easy access to the shed. The overall layout is simple and low-maintenance, ideal for enjoying the outdoors in a quiet and private setting.
Listing agent – William Lynn @ RE MAX Realty Services via Realtor.com