
Nestled on a 0.73-acre corner lot in Webster, NY, this charming 1,762 sq ft home blends comfort and potential. Featuring 3 bedrooms and 2 renovated full baths, the home offers an eat-in kitchen with newer stainless steel appliances, modern lighting, and fresh interior paint throughout. Enjoy an above-ground pool cleverly set underground with a new 2023 liner, and relax on the large deck perfect for stargazing. A cozy family room and a partially finished basement provide added space to customize. Listed at $289,000, this home offers retreat-like living in a prime location.
1. Charming Split-Level on Corner Lot

Set on a lush 0.73-acre corner lot, the exterior of this split-level home offers a classic and welcoming presence with its warm cedar-toned siding, stone facade, and dark shutters. A wide driveway leads to a spacious two-car garage, while a charming front deck and lamp post add curb appeal. Surrounded by mature trees and well-maintained landscaping, the home enjoys a peaceful suburban setting with ample green space perfect for outdoor enjoyment and future customization.
2. Where is Webster, NY?

Webster, NY is a scenic suburb located just east of Rochester, nestled along the southern shore of Lake Ontario. Known for its family-friendly atmosphere, Webster offers a perfect blend of small-town charm and modern conveniences. Residents enjoy easy access to parks, trails, and waterfront activities at places like Webster Park and Five Mile Creek. With top-rated schools, a thriving community center, and shopping at Webster Towne Center, it’s a vibrant area ideal for both relaxation and daily living.
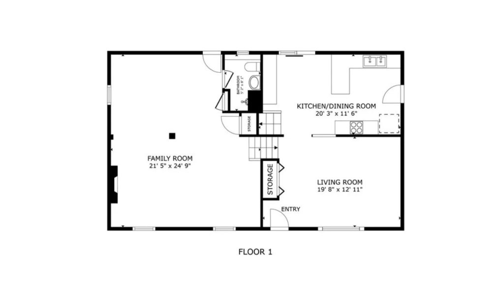
3. ground floor layout

The ground floor of this home offers a spacious and functional layout, ideal for both daily living and entertaining. Upon entry, you’re welcomed into a bright living room that flows seamlessly into the combined kitchen and dining area, creating an open and inviting atmosphere. Toward the rear of the home, a large family room provides additional gathering space, while a full bathroom and convenient storage areas enhance functionality. This level balances comfort and practicality with ease.
4. second floor layout

The second floor of this home features three comfortable bedrooms, each offering ample closet space and natural light. A centrally located hallway connects the rooms and includes additional storage for added convenience. The updated full bathroom is easily accessible from all bedrooms, making daily routines a breeze. This level provides a cozy and functional layout, ideal for restful retreats and organized living.
5. Bright Family Room with Hardwood Floors

Bright and spacious, the family room features rich hardwood floors and large windows that flood the space with natural light. Soft green walls add a calming touch, while the open layout offers a seamless flow into the adjacent dining area and kitchen. A charming pass-through with wood spindles provides a hint of vintage character, and recessed outlets allow for flexible furniture arrangement. It’s a versatile, welcoming space perfect for everyday living or entertaining.
6. Sunlit Living Room with Entry Closet

The living room welcomes you with gleaming hardwood floors and a wide picture window that fills the space with natural light. A warm wood front door and fresh, soft green walls create a cozy yet inviting atmosphere. A double-door closet offers convenient storage near the entryway, while the open layout provides easy access to both the kitchen and lower level. It’s a bright, versatile space ideal for relaxing or greeting guests in comfort and style.
7. Bright Kitchen with Breakfast Bar

This inviting kitchen blends function and style with its clean white cabinetry, modern lighting, and vibrant blue accent walls. Ample counter space and a convenient breakfast bar offer both prep room and casual seating. Newer stainless steel appliances, including a dishwasher and refrigerator, provide everyday ease. The layout ensures a smooth workflow, while natural light from the window keeps the space bright and welcoming throughout the day.
8. Bold and Bright Modern Bathroom

This stylish bathroom combines bold design with modern comfort. A striking blue accent wall contrasts beautifully with the soft-toned vanity and marble-style countertop. The wide mirror cabinet offers ample storage, while sleek black fixtures add a contemporary touch. Natural light pours in through the window, enhancing the room’s fresh feel. A tiled shower with decorative mosaic trim completes the space, offering both functionality and eye-catching detail.
9. Sunlit Bedroom with Soothing Tones

This cozy bedroom features soft green walls that create a soothing atmosphere, complemented by warm wood trim and neutral carpeting. Two large windows let in ample natural light, making the space feel bright and airy throughout the day. Simple plaid curtains add a touch of charm, while the layout offers plenty of flexibility for furniture placement. It’s an inviting space, ideal for a guest room, home office, or personal retreat.
10. Compact Laundry with Barn Door Charm

Tucked behind a stylish sliding barn door, the laundry area offers both function and charm. It features a sleek, modern stacked washer and dryer in a space-saving configuration, ideal for efficient daily use. The natural wood tones of the door add a warm, rustic accent, blending farmhouse flair with contemporary convenience. Conveniently located near the bedrooms, this laundry nook makes household chores feel more streamlined and accessible.
11. Peaceful Bedroom with Natural Light

This bedroom offers a serene and simple retreat with its soft gray walls and warm-toned wood flooring. A large window lets in natural light, enhancing the room’s brightness and offering a peaceful view of the outdoors. Light, airy curtains add a gentle touch of color, while the clean lines and neutral palette create a versatile space perfect for a guest room, nursery, or home office. It’s a tranquil setting ready to be personalized.
12. Cozy Basement with Fireplace

The basement offers a spacious and inviting area perfect for relaxation or entertaining. With cozy carpeting underfoot, multiple seating zones, and a charming brick fireplace, it’s ideal for movie nights or casual gatherings. Bright windows bring in natural light, while colorful blue wainscoting adds personality and warmth. Convenient access to a nearby full bathroom and ample closet storage make this versatile space both comfortable and functional for everyday use.
13. Private Patio with Covered Deck

The patio offers a private and versatile outdoor retreat with a mix of covered and open-air spaces, ideal for year-round enjoyment. Surrounded by a tall privacy fence with decorative lattice accents, it provides a secluded setting for lounging or dining. The wood deck adds rustic charm, while the built-in hose hookup makes it easy to maintain. Whether relaxing under the shelter or soaking up the sun, this patio is a perfect extension of the home’s living space.
14. Sunken Pool with Private Patio

The pool area offers a private and inviting space to relax or entertain, featuring an above-ground pool seamlessly integrated into a sunken patio design. Surrounded by a fenced yard, this setup ensures added privacy and safety. A smooth concrete patio provides plenty of room for lounging, while a nearby covered deck enhances comfort and shade. With its updated liner and pool equipment, this space is ready for effortless enjoyment throughout the warmer months.
15. Expansive Yard with Mature Trees

The outdoor area of this home offers a spacious, park-like setting with a lush lawn and mature trees providing natural beauty and shade. Situated on a large corner lot, the yard offers ample space for recreation, gardening, or simply enjoying the peaceful surroundings. A privacy fence encloses part of the property, ideal for pets or outdoor gatherings, while charming landscaping accents the home’s exterior. It’s a serene and expansive space ready for outdoor living.
Listing Agent – Kimberly Paulene Hogue @ Redfin Real Estate via Realtor.com