
Tucked amid the towering redwoods of Cazadero, CA, this rustic woodland retreat offers 3 bedrooms, 2.5 bathrooms, and 1,529 square feet of charm on a generous 9,100 sqft lot. Priced at $672,000, this real estate gem boasts serene creek frontage, blending cozy cabin vibes with tranquil natural beauty.
1. Woodland Cabin Retreat Nestled in the Redwoods

Surrounded by towering redwoods and lush greenery, this serene two-story cabin blends rustic charm with cozy functionality. The wood-clad exterior and elevated deck invite quiet mornings and evening gatherings, while a spacious lower patio offers direct access to nature. Thoughtfully built to harmonize with its forested surroundings, the home exudes peaceful seclusion just steps from a gentle creek.
2. Where is Cazadero?

Cazadero is a quiet, forested community in Sonoma County, California, tucked between the redwoods and winding creeks of the coastal range. Known for its peaceful, off-the-grid ambiance, it draws those seeking solitude, nature, and rustic charm. Just a short drive from the Pacific coast and wine country, Cazadero offers a retreat-like lifestyle with a close connection to the natural world—perfect for weekend escapes or full-time serenity.
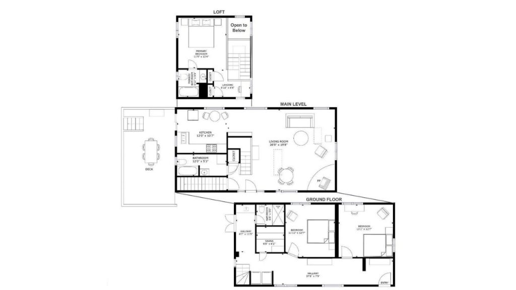
3. Lofted Layout with Open-Concept Comfort

This thoughtfully layered floor plan features a welcoming main level with an airy open-concept kitchen and living room that flows seamlessly to an expansive deck—ideal for indoor-outdoor living. The lofted primary suite offers privacy above, while the ground floor includes two bedrooms, a sauna, and a full bath, creating a cozy retreat with flexible space for guests or relaxation.
4. Woodland Lounge with Cozy Midcentury Charm

Framed by towering windows and natural wood paneling, this serene living space invites the forest in. A vaulted ceiling with exposed beams adds rustic elegance, while soft cream furnishings and layered textures create a soothing retreat. The earthy tones are punctuated by greenery and golden light, casting a gentle glow. With its warm palette and curated decor, the room strikes a perfect balance between retro and refined.
5. Warm Hearth Dining with Forest Views

Nestled beneath a cedar-clad ceiling, this dining nook radiates comfort and casual elegance. A woven pendant light casts a soft glow over a round table set for four, while forest-lined windows frame the space like living artwork. A rustic stone hearth anchors the corner, complete with a black wood stove, blending warmth and tradition. Together, these elements create a tranquil setting for slow meals and cozy evenings.
6. Midcentury Loft with Architectural Warmth

A showcase of thoughtful design, this open-concept space blends midcentury charm with organic textures. Exposed beams draw the eye upward, while a custom open-slat divider adds depth and function. The lofted second level peeks through a brick-patterned screen, offering a cozy contrast to the clean lines below. With natural wood tones throughout, the room feels both expansive and inviting—an ideal balance of structure and serenity.
7. Lofted Bedroom with Mid-Century Charm

This cozy loft bedroom offers a serene escape, wrapped in rich wood tones and natural textures. Vaulted ceilings with exposed beams draw the eye upward, while a geometric screen lends retro flair and subtle separation. Light filters softly through clerestory windows, connecting the space to the lush outdoors. A tailored bed with crisp linens anchors the room, blending comfort with understated style.
8. Bright and Modern Guest Bath

Clean lines and soft neutrals define this inviting guest bathroom. A simple vanity with quartz countertop pairs with warm wood cabinetry for a balanced, modern look. The sleek glass-block accent above the sink reflects natural light from the nearby window, adding a subtle touch of texture. A classic white tile tub and shower surround, paired with a playful patterned curtain, complete this effortlessly fresh space.
9. Tranquil Main Bedroom with Nature Views

This peaceful retreat blends mid-century warmth with contemporary comfort. Framed by natural wood walls and vaulted ceilings, the space is anchored by a plush bed and symmetrical nightstands. A trio of windows frames leafy views, while modern abstract art adds visual interest. The geometric screen and soft lighting enhance the cozy atmosphere, creating a perfect balance of style and serenity.
10. Woodland Kitchen with Nature Views

Brimming with rustic charm, this cozy kitchen strikes a warm balance between simplicity and comfort. Natural wood cabinets with subtle grain patterns bring an inviting, organic texture, while a wide window and sliding glass door flood the space with forest-filtered light. The stainless-steel fridge adds a touch of modernity, and the seamless access to the deck makes indoor-outdoor living feel effortless and refreshing.
11. Tranquil Deck with Forest Backdrop

A serene retreat tucked into nature, this elevated deck invites quiet reflection and scenic enjoyment. Framed by towering trees and vibrant greenery, the space opens to a cozy wooden overlook with built-in benches perfect for morning coffee or twilight chats. Adirondack chairs on the patio add a rustic touch, while the surrounding forest lends a peaceful rhythm to this enchanting outdoor haven.
12. Multi-Level Riverfront Escape

This multi-level porch feels like a secret carved into the woods—a place where mornings begin with coffee on the top deck and evenings wind down by the river’s hush. Weathered wood railings and quiet corners offer room to gather or be still. Every step downward brings you closer to the water, closer to calm. It’s the kind of place that doesn’t just frame nature—it becomes part of it, effortlessly, quietly yours.
Listing Agent – John Genovese, Richard Lester @ Vanguard Properties | Guerneville Office via realtor.com