
This exquisite home is a magical English Tudor manor built circa 1917, located in the heart of the Chagrin Valley in Chagrin Falls, Ohio. The handsome Tudor facade is enhanced by a circular driveway and professional landscaping, alongside a charming stone walkway leading to the front entrance. Inside, the home features a spectacular kitchen with custom cabinetry, high-end professional appliances, granite countertops, and two islands, opening seamlessly into a grand dining area, a vaulted great room with beamed ceilings and a magnificent fireplace, and a screened porch. Additional first-floor highlights include a private library, a scullery (second kitchen), a glass-walled atrium, a billiard room, and a fifth bedroom suite with a private bath. The upper two floors house four luxurious bedroom suites, including an opulent owner’s suite boasting dramatic vaulted and beamed ceilings, a fireplace, a gorgeous bathroom, and two custom walk-in closets. A finished lower level adds a mudroom, exercise room, and additional space. Outside, an expansive stone terrace, hot tub, and a versatile outbuilding with a game/pub room and barn area provide exceptional entertainment and hobby options for car enthusiasts, hobbyists, or horseback riders. Listed at $3,395,000, this unique estate epitomizes elegant luxury living on a grand scale within a serene and private natural setting.
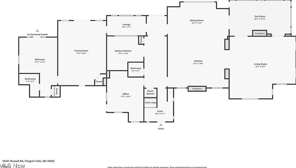
main floor layout

This expansive family room blends comfort and functionality, measuring approximately 17 feet by 23 feet. Walls painted in a neutral, light hue enhance natural lighting streaming through multiple windows, creating an inviting atmosphere. Plush seating arrangements and warm-toned furnishings complement the hardwood floors, bringing a cozy yet elegant touch. Architectural features include a classic fireplace centered along one wall, bordered by built-in shelves that balance style and storage. The open layout allows seamless transition to an adjoining bedroom and bathroom, catering to family living and guest convenience, while maintaining a warm, welcoming aesthetic.
Second Floor Layout

This detailed floor plan displays the upper level of a spacious home, characterized by three bedrooms including a large primary suite with an expansive primary bathroom and multiple closets. The layout balances private spaces and functional rooms, such as a centrally located laundry room and two additional bathrooms. Two staircases provide access to different parts of the home, with one adjacent to an open-to-below area, suggesting high ceilings and visual connectivity to the floor below. The arrangement promotes convenience and privacy, merging well-sized bedrooms, ample storage, and essential amenities in a logical flow.
Living Room

This living room features a grand vaulted ceiling adorned with exposed wooden beams that add warmth and architectural interest. The walls are painted a crisp white, contrasting beautifully with the rich oak wood trim and flooring. A large grey area rug anchors the seating arrangement, which includes a modern white sectional sofa, a black leather armchair, and a tan accent chair, offering a mix of textures and tones. The focal point is a traditional wood-paneled fireplace with intricate carvings, flanked by multiple French doors and windows that invite natural light and provide access to the outdoors, creating an inviting and elegant space.
Modern Kitchen with Rustic charm

This kitchen centers around a large, rectangular island topped with polished granite featuring warm, earthy tones. The island houses a modern, stainless steel sink with a sleek pull-down faucet. The cabinetry throughout the kitchen is crafted from rich, medium-tone wood, complementing the matching hardwood floors. Above, the coffered ceiling displays intricate wood beams, enhancing the room’s architectural character. A set of pendant lights with soft cream shades hang over the island, providing focused lighting. The backsplash behind the stainless steel stove is an artistic mosaic tile with geometric patterns in coordinating warm hues, framed by wooden cabinetry with dark hardware. The whole space exudes a warm, inviting, and classic elegance while maintaining modern functionality.
Screened Porch

This screened porch features expansive floor-to-ceiling windows framed in dark wood, allowing a panoramic view of lush greenery outside. The vaulted ceiling is clad in white painted wood planks, enhancing the airy feel, complemented by a sleek black ceiling fan for comfort. Stone tile flooring grounds the space with a natural, textured element. Furnished with a wooden framed sofa adorned with neutral-toned, patterned cushions and a matching wooden rocking chair, it exudes rustic charm while ensuring relaxation. A uniquely designed round fire pit-style coffee table anchors the seating area, and a dark painted cabinet with subtle detailing adds functional storage, crowned by a small green potted plant for a touch of nature inside.
Kitchen

This kitchen features a U-shaped layout with sage green lower cabinetry paired with white upper cabinets that have glass-paneled doors. The backsplash is an eye-catching mosaic of small square tiles in warm earth tones, creating a vibrant focal point extending vertically behind the white farmhouse sink. Stainless steel appliances, including a dishwasher, oven, and large refrigerator, complement the color palette. The countertops appear to be a polished granite with natural veining that enhances the warm tones. Hardwood flooring grounds the space, while a pendant light above the sink adds a soft, ambient glow. Large windows with decorative mullions bring in natural light, contributing to an inviting and fresh atmosphere.
Powder Room

This powder room combines rustic and contemporary design elements with a striking stacked stone accent wall that adds texture and earth tones of gray, brown, and tan. The adjacent wall is painted a soft muted gray-green, creating a calm backdrop for a sleek, wooden floating vanity topped with a unique multicolored glass vessel sink. A matte black wall-mounted faucet complements two cylindrical industrial-style sconces flanking a metal-framed mirror reflecting vibrant greenery outside or possibly a plant wall feature, adding an organic touch to this compact, stylish bathroom.
Game Room with Pool Table

This inviting game room centers around a striking red-felt pool table resting on a richly patterned area rug. The walls feature exposed dark wood beams against a cream backdrop, adding a rustic yet elegant Tudor-style charm. A plush red sofa provides comfortable seating along one side, complementing the pool table’s vibrant color. On the opposite side, sleek black metal bookcases hold an array of books and decor that add warmth and personality. French doors with glass panes let in natural light and offer views of the outdoors, while a distinctive hanging light fixture with red accents adds character and cozy ambiance to the room.
Home Office

This well-organized home office blends functionality and classic elegance. The room features a richly patterned, large area rug in maroon and navy tones that complements the warm, medium-toned hardwood floors. A wooden desk with clean lines sits centrally, paired with a tufted leather swivel chair for comfort. Above the desk, sleek wooden cabinetry provides ample storage, matching the desk’s finish. The walls are painted a soft neutral shade, framed by gray trim that harmonizes with the gray door and window frames. A modern ceiling fan with wooden blades and recessed lighting enhance the room’s fresh, inviting ambiance. A small bench sits beneath a pair of windows, while a multi-functional wall organizer adds practical detail to the space.
Sunroom

This serene sunroom features a narrow layout with a vaulted, beamed ceiling painted in a soft, warm gray that complements the vertical paneled walls. Large multi-pane windows line one side, flooding the space with natural light and offering expansive views of the stone patio and wooded backyard. Two plush gray armchairs face inward, paired with a small round side table, creating an inviting nook for conversation or relaxation. Exposed red brick on the opposite wall adds texture and warmth. The space is anchored by a cozy white shag rug and subtle string lights, enhancing the tranquil, airy atmosphere.
Master Bedroom

This master bedroom features a vaulted ceiling with exposed rustic wooden beams that add warmth and architectural interest. A wrought iron chandelier hangs centrally, enhancing the room’s cozy yet elegant atmosphere. Neutral tones dominate the space, with soft beige carpeting and pale walls that contrast beautifully against the rich, dark wood bed frame and matching nightstands. Large windows flood the room with natural light, offering serene views of the outdoors. The layout includes a doorway leading to an en-suite bathroom, which continues the light color palette and provides a sense of spaciousness and calm.
Spacious Bathroom Retreat

This bathroom combines luxury and comfort with its open design and high vaulted ceilings that add airiness to the space. Soft beige walls complement the unique marble-patterned floor tiles in shades of gray, cream, and black, adding a natural, artistic element. A modern standalone white bathtub is positioned beneath wide, multi-pane windows that allow plenty of natural light and views of greenery outside. Two separate vanities with marble tops and large mirrors are arranged on opposite walls, along with brushed nickel fixtures, enhancing the serene, spa-like atmosphere. A glass-enclosed shower is partially visible, adding to functionality.
fucntional Bathroom

This bathroom features a serene, coastal-inspired design with a white and light blue color palette. The vanity is topped with a smooth marble countertop housing an under-mount sink with a sleek silver faucet. The backsplash is adorned with mosaic tiles interspersed with blue starfish motifs, adding a unique decorative touch. Adjacent to the vanity is a walk-in shower lined with white subway tiles and a vibrant blue mosaic floor, enhancing the aquatic theme. Hexagonal white tiles cover the main floor, contributing to the bright, clean, and airy feel of the space. Natural light filters in through a window, emphasizing the fresh and tranquil ambiance.
Bedroom

This master bedroom features a soothing neutral palette with soft beige walls complementing the warm, rich tone of the hardwood flooring. Natural light floods the space through white-trimmed windows adorned with white blinds, enhancing the airy atmosphere. A cozy, patterned armchair in deep red and gold tones adds a regal touch in one corner, paired with a delicate side table. Opposite, a vintage-style gold-framed mirror on the wall brings subtle elegance. The bed, dressed in a white quilt with a floral throw, anchors the room, while a ceiling fan with wooden blades provides functional modernity. A double closet and open doorway show continuity to other rooms.
functional Bathroom

This bathroom features a modern, clean design with a striking deep blue countertop and matching hexagonal floor tiles that add a vibrant pop of color against the otherwise neutral palette. A large mirror spans the length of the white vanity, which houses dual sinks and multiple drawers with sleek silver handles for ample storage. Light gray walls complement the minimalist design, while a single window framed in white allows natural light and a view of greenery outside. Simple wall-mounted cylindrical lights flank the mirror, enhancing the contemporary atmosphere of the space.
Upstairs Office Area

This upstairs office area features an angled ceiling that follows the roofline, creating an intimate and cozy workspace. The floor is covered in plush deep blue carpet which complements the neutral gray walls and adds a sense of comfort. A large wooden desk with sleek black metal legs is positioned by a bank of multi-pane windows, allowing natural light to fill the room and offer scenic views outside. The contrasting textured stone wall behind the desk adds architectural interest. A modern light fixture with exposed bulbs hangs overhead, enhancing the contemporary yet warm aesthetic of the space.
Home Gym Area

This dedicated workout space features bold blue walls contrasted with a recessed ceiling trimmed in a deeper shade of blue, enhancing the room’s modern vibe. The floor is covered in interlocking foam tiles in a checkerboard pattern of blues and grays, providing cushioned support for exercise. Central to the space is a multi-functional weight machine in white and black, offering various workout options. A wall-mounted flat-screen TV sits opposite the equipment, perfect for entertainment or guided workouts. The space is illuminated by recessed lighting, contributing to a bright yet focused atmosphere designed for physical fitness.
Cozy Living Room

This inviting living area features exposed wooden beams that add rustic charm and warmth to the space. The walls combine natural wood paneling and painted surfaces, complementing the wood-framed double doors with glass panes that allow natural light to filter in. A modern flat-screen TV is mounted on one wall, opposite a large, comfortable sectional sofa upholstered in a soft, neutral fabric, perfect for lounging. The centerpiece black coffee table displays a subtle wood grain pattern, contrasting nicely against the plush carpeted floor in a muted, dark tone. The overall design blends cozy comfort with cabin-like aesthetics.
Driveway and Outdoor Space

This outdoor view highlights a spacious, clean concrete driveway adjacent to a large brick home featuring a double garage with soft brown doors. A small balcony with black railing extends from the upper floor, providing an appealing architectural detail. The surrounding landscaping incorporates mature evergreen trees, manicured shrubs, and stone retaining walls that blend naturally with the forested backdrop. Beyond the driveway, a well-maintained grassy area extends toward a rustic wooden fence, while a portable basketball hoop adds a touch of active outdoor recreation. The bright blue sky with scattered clouds completes this serene setting.
Listing Agent: Adam S Kaufman of Howard Hanna via Zillow