
This inviting Gibsonia real estate gem offers 3 bedrooms, 3 bathrooms, and 2,577 square feet of thoughtfully designed living space on a generous 1.34-acre lot. Priced at $624,000, the home boasts high ceilings, a dual-sided fireplace, and a spacious main-floor layout perfect for easy living. Enjoy features like a raised vegetable garden, whole-home vacuum, expansive basement with potential, and a 3-car garage. Located near parks, schools, and wineries, this home blends peaceful country charm with modern convenience.
1. classic exterior

This stunning brick home boasts a timeless design with striking architectural details, including arched windows and a grand front door. The manicured landscaping, framed by neatly trimmed hedges and vibrant plantings, creates a welcoming and polished curb appeal. A graceful walkway leads to the inviting entrance, complete with decorative urns flanking the front steps. The home’s rich brickwork, combined with the natural beauty of the surrounding greenery, offers an impressive and sophisticated first impression.
2.Where is Gibsonia?

Gibsonia is an unincorporated community and census-designated place in Richland Township, Allegheny County, Pennsylvania, situated approximately 16 miles north of downtown Pittsburgh. As of 2023, it has a population of around 2,952 residents, with a median age of 46.8 years. Known for its rural charm and family-friendly atmosphere, Gibsonia offers a blend of suburban living and natural beauty. The area features attractions such as the Western Pennsylvania Model Railroad Museum, La Casa Narcisi Winery, and the nearby North Park, providing residents and visitors with a variety of recreational and cultural experiences. With its proximity to Pittsburgh and a strong sense of community, Gibsonia stands out as a desirable place to live in western Pennsylvania.
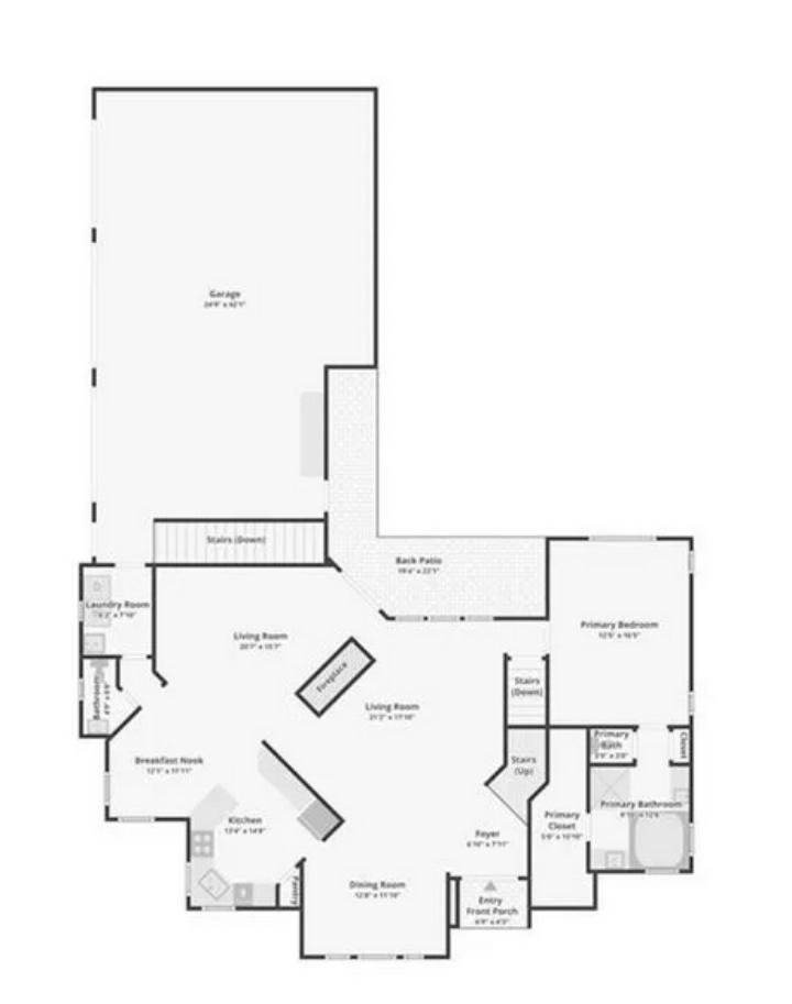
3. Main Floor Layout

This thoughtfully designed main floor combines openness with function, making it perfect for family living and entertaining. The spacious living room offers a welcoming space to relax or gather with family and friends. The adjacent kitchen, with a breakfast nook, provides a well-organized space for meal preparation and casual dining. The dining room, ideal for formal gatherings, leads into the living area. The primary bedroom suite features a private bathroom and generous closet space, offering a retreat-like feel. Additional spaces, such as the laundry room and entry foyer, enhance the convenience of this home. The garage provides ample storage, while the back patio adds a perfect spot for outdoor enjoyment. With easy access to stairs leading up and down, this floor plan ensures both privacy and practicality.
4. Upper Level Layout

This spacious upper level provides ample room for both private and shared spaces. The large bonus room, is perfect for a home office, media room, or play area. Adjacent to it, two generously sized bedrooms offer comfortable living, with ample closet space for storage. The layout includes three well-positioned bathrooms, ensuring privacy and convenience for all occupants. The primary bedroom, provides a relaxing retreat, with easy access to nearby closets. Stairs lead to the lower level, ensuring seamless connectivity between the two floors. With its combination of functional spaces and thoughtful design, this upper level is ideal for modern family living.
5. Basement Layout

This unfinished basement offers vast potential for customization. The larger section of the basement, measuring, provides an open canvas for a variety of uses, whether as a recreation area, home gym, or extra storage space. The smaller basement section, offers additional room for expansion or could serve as a dedicated storage area. Two separate staircases offer easy access to this lower level, providing convenience and flow from the main floors. This basement layout offers flexibility to transform the space according to your needs.
6. Inviting Living Room with Grand Staircase

Step into this charming living room, where a vibrant turquoise carpet sets the stage for a bright, open atmosphere. The space is bathed in natural light streaming through expansive windows, offering serene views of the outdoors. A dazzling chandelier adds a touch of elegance, creating a warm and inviting ambiance. The grand staircase, with its polished wood handrail and crisp white spindles, provides a striking focal point, leading to the upper levels and adding a sense of grandeur to the space.
7. Bright and Elegant Room with Stunning Views

This inviting space boasts a vibrant turquoise carpet, exuding a cozy yet elegant ambiance. The large, arched windows frame beautiful outdoor views, while rich, neutral-toned curtains add sophistication. Above, a dazzling crystal chandelier casts a soft glow, enhancing the room’s charm. The layout offers an ideal setting for relaxation, offering an abundance of natural light while maintaining privacy with tasteful window treatments. This room is perfect for those who enjoy both luxury and tranquility.
8. Living Area with Fireplace and Natural Light

This spacious living area invites comfort and warmth with its striking stone fireplace and elegant double French doors, offering a seamless connection to the outdoors. The vibrant turquoise carpet adds a unique touch of color, while the ceiling fan ensures a cool, relaxed atmosphere. The room is bathed in natural light, enhancing its cozy and inviting vibe. Ideal for both entertaining and unwinding, this space is a perfect blend of functionality and style.
9. Classic kitchen

This cozy kitchen features rich oak cabinetry, complemented by modern black appliances including a gas stove, microwave, and dishwasher. The space is flooded with natural light, thanks to the beautifully arched windows above the sink, offering serene views of the surrounding nature. The warm wood flooring and neutral countertops enhance the inviting, functional atmosphere of the kitchen, making it the perfect spot for cooking and enjoying the outdoors.
10. Spacious Bedroom with Scenic Views

This inviting bedroom boasts large windows that flood the room with natural light, offering peaceful views of the green backyard. The vaulted ceiling and ceiling fan add a touch of openness and comfort. The bright blue carpet provides a bold statement while complementing the warm wood trim, creating a cozy and serene space perfect for relaxation. This room offers a tranquil retreat with an abundance of light and a charming view.
11. Elegant Master Bathroom with Luxurious Features

This spacious master bathroom offers a relaxing escape with a large, elegant bathtub nestled beneath a beautiful arched window, allowing natural light to flood the space. The separate glass shower with dual showerheads enhances functionality and style, while the warm wood cabinetry and tiled surfaces provide a classic, timeless look. Perfect for unwinding, this bathroom combines comfort with sophistication for an indulgent experience.
12. Laundry Room with Ample Storage

This practical and well-organized laundry room features dark, modern appliances that offer efficient washing and drying. The wooden cabinetry provides ample storage space, while a window above the sink adds natural light and ventilation. With a simple yet efficient layout, this room ensures comfort and convenience, making laundry tasks more manageable. The neutral tones and hardwood details create a warm, welcoming atmosphere.
13. Powder Room with Classic Features

This elegant powder room is designed with timeless style, featuring a striking black pedestal sink paired with golden fixtures, adding a touch of luxury. Soft pink towels complement the warm ambiance, while a window above the sink offers natural light and views of the surrounding landscape. The room’s simple yet sophisticated aesthetic is perfect for creating a welcoming space for guests.
14. Bedroom with Ample Natural Light

This inviting bedroom features a ceiling fan and plenty of natural light streaming through a large window, highlighting the soft blue carpet that adds a calming touch. The room is designed for comfort and convenience, with rich wood trim framing the window and doorways, offering a cozy retreat. A neutral backdrop creates a perfect space for personalization and relaxation. The layout also includes a closet area, providing ample storage.
15. Compact Bathroom

This bathroom showcases a clean and practical design, featuring a double sink vanity with ample storage in warm, oak cabinetry. Above the sink, a large mirror reflects the bright lighting provided by two sconces. The bathroom is complemented by a well-maintained shower space with brass fixtures and frosted glass doors. Rich wooden doors add a touch of elegance, while the neutral color scheme offers a serene atmosphere.
16. Inviting Bedroom

This cozy bedroom features vibrant red carpeting, creating a bold and energetic atmosphere. A large, arched window allows natural light to pour in, framing a serene outdoor view of the surrounding trees. The high ceilings with a ceiling fan and the rich wood trim around the window and baseboards add warmth and charm to the space. The room offers a calm and bright retreat, ready for personalization.
17. Versatile Basement

This expansive basement offers an open, unfinished space ready to be transformed into a variety of uses. With exposed beams and steel supports, it maintains a functional and industrial aesthetic. A centrally located wood stove adds warmth and coziness to the area, while the large floor area provides plenty of potential for recreation, storage, or additional living space. Curtains are hung in a few areas to offer privacy and style, making it a versatile foundation for future development.
18. Spacious Garage with Ample Storage

This spacious garage offers both functionality and convenience, featuring a well-organized layout. A blue SUV is parked comfortably, highlighting the ample space available for vehicles and additional storage. The garage is equipped with plenty of cabinetry along the walls, offering excellent storage solutions for tools, cleaning supplies, or seasonal items. With a work surface, skylights for natural light, and easy access through a side door, this garage is perfect for both car storage and home projects.
19. Back Patio Area

This back patio offers a peaceful outdoor retreat with a simple, yet inviting, concrete surface. Surrounded by well-maintained landscaping, the patio extends from the back of the house, perfect for relaxing or entertaining. The space is framed by brick walls and features large windows and a glass door, providing seamless access to the indoor living spaces. Whether for quiet mornings or evening gatherings, this outdoor area offers an ideal spot to enjoy the surrounding views of the backyard and beyond.
20. Spacious Backyard

This large, fully fenced backyard offers plenty of space for gardening and outdoor activities. Two raised garden beds are already in place, perfect for planting vegetables, flowers, or herbs. The beds are set in a gravel area, allowing for easy maintenance and a clean look. The expansive green lawn stretches out beyond the garden, offering a beautiful view of the surrounding area. With its peaceful and private atmosphere, this backyard is an ideal spot for enjoying nature and cultivating your own garden.
Listing Agent – Lauren Shepherd @ Howard Hanna – Fox Chapel via realtor.com