
A stunning 3-bedroom, 3-bathroom single-family home with 2,481 sq. ft. of living area is up for sale at 9113 68th Ave, Forest Hills, NY 11375. The large house provides a perfect combination of comfort and practicality, complete with a contemporary kitchen, spacious recreation room, and private balcony. Situated in a prime location, it offers the perfect combination of convenience and sophistication for $1,448,000.
1. Tudor-Style exterior

Surrounded by verdant greenery, this Tudor-style residence oozes warmth and personality with its brick exterior, steeply pitched roof, and ornate half-timbering. The arched entrance, defined by a wrought-iron awning, provides a touch of sophistication, while leaded glass windows add to the home’s historic charm. A curved brick walkway leads the way to the front door, inviting guests to enter a masterful piece of timeless architecture. With beautifully manicured shrubs and a welcoming front stoop, this house is a picture-perfect combination of old-world charm and comfortable modernity.
2. Where is forest hills?

Situated in the center of Queens, Forest Hills is a quaint and historic community that combines suburban serenity with urban accessibility. Famous for its lined streets, Tudor homes, and active community, it has a distinctive character that is both intimate and integrated. The neighborhood has great transportation, lively shopping areas, and the legendary Forest Hills Stadium, a music and sports landmark. Whatever it is to visit its parks, eat at neighborhood restaurants, or appreciate the classic architecture of the neighborhood, Forest Hills still is a cherished New York City enclave.
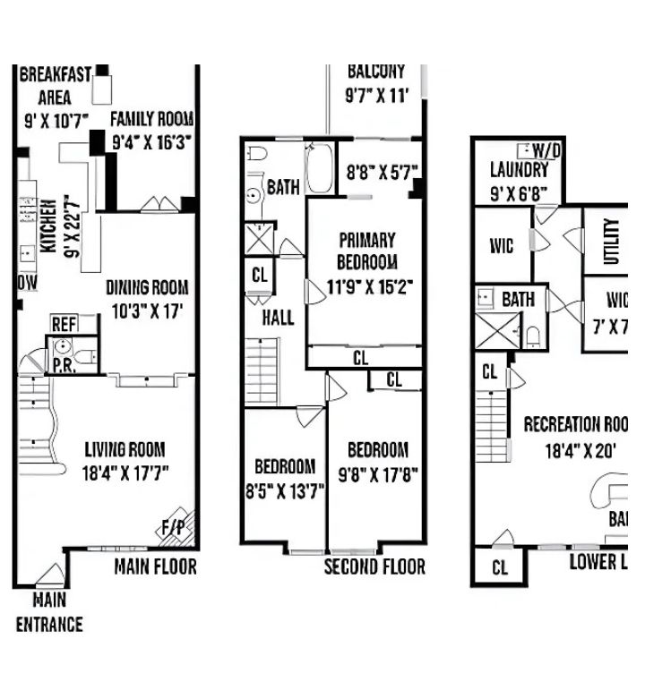
3. floor Plans

Intended for comfort and convenience, this three-storey house is spacious enough to accommodate comfortable living. At ground level, a spacious living room opens up smoothly into dining area and well-planned kitchen with a secluded breakfast nook. On the upper floor, the master bedroom has ample closet space as well as a private balcony, while two other bedrooms share a shared bath. The top floor adds to the home’s functionality with a spacious recreation room, laundry room , two walk-in closets, and a second bathroom, providing ample storage and convenience.
4. Living Room with Elegant Details

Warm and welcoming, this living room combines vintage refinement with contemporary coziness. Pale peach-colored walls harmonize with the detailed woodwork of the staircase, topped by a magnificent chandelier with a touch of sophistication. The sumptuous cream sofas provide a comfortable seating space, thoughtfully positioned around a beautiful marble fireplace with quirky mirrored details. Natural light pours through lovely leaded-glass windows, softly illuminating the room.
5. Seamless flow to Dining Space

A curved, dramatic staircase is a breathtaking focal point, leading the way to this warm, inviting living room featuring warm-colored walls that establish a cozy and welcoming atmosphere. The open floor plan seamlessly opens into an elegant dining area, tastefully separated by an archway with detailed stone ornamentation that introduces a touch of classic sophistication. A large chandelier provides a warm, ambient light, adding to the elegant yet cozy ambiance. Luxurious seating arrangements offer style and comfort, making the room ideal for quiet nights or intimate parties. Carefully selected décor pieces, from refined drapery to stylish accents, round out the timeless elegance of this beautifully designed interior.
6. Classic Dining Room

It’s elegance in the spotlight for this exquisitely decorated dining room, in which rich wood pieces and rich, warm colors set the tone for an elegant atmosphere. Focal to the room, a glossy oval-shaped dining table glows with warm lighting, flanked by high-back cushioned chairs that are decidedly retro-chic. Behind it, a glass-front china cabinet proudly displays delicate glassware and antiques, adding to the room’s classic appeal. Above, a stately chandelier diffuses a soft light, complementing the peaceful mix of grandeur and relaxation. With its open flow into the living room, this room balances perfectly the intimacy and luxury, ideal for quiet dinners and festive celebrations.
7. Sleek kitchen

Highlighting a sleek, streamlined look, the galley kitchen is both elegant and efficient with its high-gloss white cabinetry, smooth countertops, and stainless steel trim. Each component is carefully positioned to achieve maximum functionality, from the gas range and wall ovens to the compactly grouped small appliances that make meal preparation easy. Pendant lighting provides a discreet sense of sophistication, casting a warm light that reinforces the modern look. The open floor plan integrates the kitchen with the dining area with ease, allowing for easy flow and a natural transition between cooking and entertaining. With its ideal blend of functionality and aesthetics, this kitchen is both beautiful and extremely functional.
8. Sunlit Dining Area

Drenched in natural light pouring in through floor-to-ceiling windows, this lovely dining space is a phenomenal combination of elegance and warmth. A minimalist glass-topped dining table, accompanied by intricately designed wooden chairs, forms an open, airy atmosphere for casual meals and formal entertaining. Enhanced by rich greenery, the area appears fresh and vibrant, while a contemporary chandelier sheds warm, ambient light, adding to its cozy but sophisticated ambiance. Thoughtfully selected wall decor and a dramatic showpiece mirror add personality, rendering the space visually interesting. Contributing to its popularity, a built-in workspace harmoniously blends functionality with flair, rendering this space as beautiful as it is useful.
9. Opulent Bathroom

Warm colors and sophisticated finishes provide this bathroom with a sophisticated yet intimate ambiance. The double vanity, featuring cream cabinetry and glossy countertop, offers plentiful storage while being bang-up-to-date. A soaking tub beckons relaxation, edged by luxurious brown tiles that complement the lighter shades on the walls. The window, draped with printed curtains, brings in natural lighting, a soft illumination that permeates the area. An elegant chandelier above adds to the room’s timeless charm, providing an ideal balance of elegance and warmth.
10. functional bath

Crisp white cabinetry and glossy tiled walls provide this bathroom with a fresh and clean atmosphere. The intelligent use of space is apparent in the over-the-toilet storage unit, which provides both closed cabinets and open shelving for convenient organization. Soft lighting and strategically placed decorative accents, such as candles and a vase of fresh flowers, bring warmth to the room. A framed piece of art on the wall adds a touch of personality, and clean fixtures and a big mirror add to the brightness, making the room even more spacious and welcoming.
11. Charming Bedroom

Warm colors and refined details form a nostalgic, welcoming ambiance within this bedroom. The rich red wallpaper, bearing delicate patterns, complements the dark wooden furnishings, creating a classic look. A wrought-iron bedstead, covered by a patterned bedspread, contributes to the vintage look. Soft lighting provided by a chandelier and matching bedside lamps makes the ambiance all the more inviting. Natural light pours through a grand window, providing a peaceful view and a refreshing tone for the room. Thoughtfully arranged artwork and decorative touches finish the room’s refined yet warm atmosphere.
12. Warm Retreat

Soft, golden walls and rich, wooden furniture contribute to a warm and cozy feeling in this snug bedroom. A plush bed, covered in a soft brown velvety blanket, is paired with a towering shelving unit that is full of books, trinkets, and personal keepsakes, giving the room a personal and intimate feel. A chic chandelier with beautiful glass globes gives off a soft light, complemented by the natural light coming through deep purple curtains. A framed abstract piece of art and an orderly nightstand finish the cozy setting, rendering this room both restful and lived-in.
13. Entertainment Lounge

An ideal combination of relaxation and entertainment, this cozy lounge area boasts comfortable seating and a chic home bar. The rich colors of the wooden staircase and furniture are matched by the soft, neutral walls, creating a warm atmosphere. A fully stocked bar with decorative touches is the centerpiece, while the seating around it including a large couch with striped cushions and a daybed provides comfort for visitors. A patterned rug brings the room together, and the carefully positioned speakers suggest raucous get togethers. Soft curtains diffuse natural light, contributing to the warm but lively ambiance.
14. Versatile Space

Combining work, leisure, and some exercise, this welcoming room has a little something for everyone. A home office area, well lit, resides close to the big glass doors, which extend to an outdoor deck, and receive ample natural light. A couch is a nice place to lounge around, and the wooden storage cabinet provides both functionality and coziness to the room. A plush area rug and potted plants introduce a cozy touch, allowing the room to be balanced and inviting. With an exercise bench hidden away, this room really has it all about being versatile.
15. Layered Backyard Oasis

Outdoor living is elevated with this multi-level backyard deck, meant for relaxation as well as entertaining. The bottom level has a glass-top dining set, ideal for everyday meals under the stars. A built-in grill station is also present, which further adds to the appeal, enabling outdoor cooking. Wooden stairs rise to the upper deck, part of which is covered in green turf, offering a comfortable spot for relaxation. The rich wood grain of the railings and deck is a nice contrast to the surrounding foliage, and the lattice fencing provides an element of seclusion. At the base of the structure, a covered parking area smoothly integrates functionality into the design.
Listing Agent – Olga Mayayeva @ EXP Realty NYC 718-781-3074 via Zillow