
This Colonial-style home in Chittenango, NY, listed at $289,900 offers 4 bedrooms, 2.5 bathrooms, and 1,726 sq. ft. of living space on a 0.28-acre lot. The main floor features a kitchen with an island, a formal dining room, and a spacious living room. Upstairs, the primary suite includes a private bath, with three more bedrooms and a full bath. A dry basement adds potential for extra space.
1. Charming Colonial Home

This inviting Colonial-style home in Chittenango, NY, exudes warmth and character. Featuring a traditional facade, it boasts a spacious front yard and a well-proportioned structure that blends classic design with modern functionality. Large windows provide ample natural light, while the welcoming entry leads to a thoughtfully designed interior. Set on a 0.28-acre lot, this home offers both indoor comfort and outdoor space to enjoy.
2. Where is Chittenango?

Chittenango is a charming village in central New York, known for its rich history and small-town appeal. Best recognized as the birthplace of L. Frank Baum, author of The Wizard of Oz, it embraces its literary heritage with themed attractions and annual celebrations. The village offers a welcoming community, scenic parks, and convenient access to Syracuse. With local shops, outdoor recreation, and a connection to history, Chittenango blends charm with modern convenience.
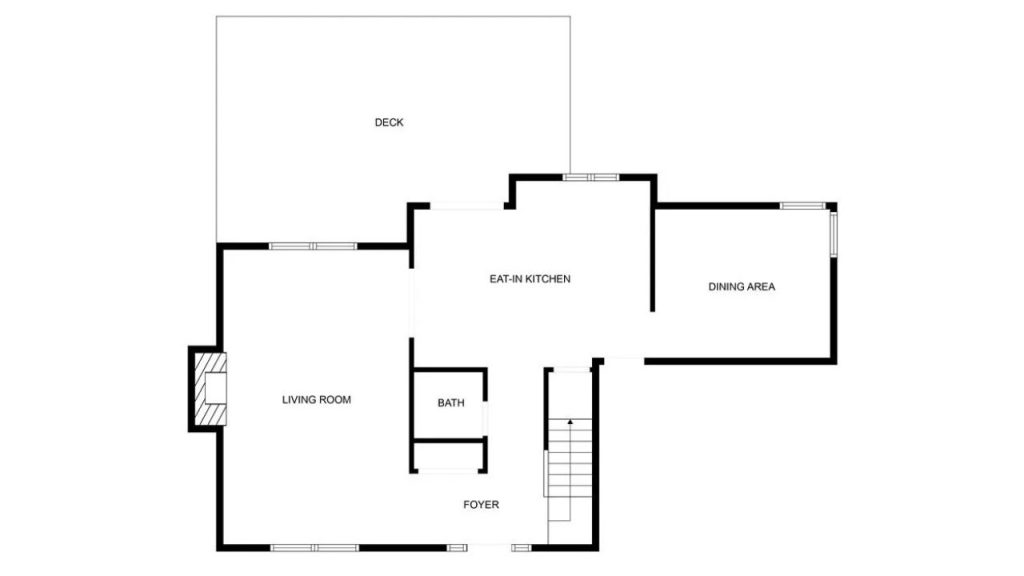
3. Ground Level layout

Open and inviting, the main floor of this home is designed for effortless living. A spacious living room welcomes guests, flowing seamlessly into the eat-in kitchen with easy access to the dining area. A convenient half bath is tucked near the foyer, while sliding doors lead to a generous deck, perfect for outdoor entertaining. With thoughtful design and natural light throughout, this level balances functionality and comfort for everyday living.
4. Upper Level layout

This well-planned second floor features four spacious bedrooms, offering privacy and relaxation for all. The primary suite boasts a generous walk-in closet and an en-suite bath, creating a private retreat. A shared hall bath ensures convenience, while the open layout enhances flow between rooms. Large windows invite natural light, fostering an airy ambiance. Ideal for families, this level balances functionality and comfort for a welcoming home.
5. Welcoming Front Porch

This charming front porch offers a warm and inviting entryway, blending classic details with cozy elegance. A decorative glass storm door, framed by sidelights, enhances the curb appeal while allowing natural light to filter into the home. Two vintage-style lanterns cast a soft glow, creating an inviting ambiance. A quaint white bistro set provides the perfect spot to enjoy a morning coffee, while the wreath-adorned door adds a touch of seasonal charm to this welcoming space.
6. Inviting Living Room

This sunlit living room blends timeless charm with cozy sophistication. A large picture window bathes the space in natural light, complementing the warm tones of the traditional furnishings. A floral-patterned sofa and vintage-inspired wooden accents create a refined yet welcoming atmosphere. The rich blue area rug adds depth, while soft lighting from classic table lamps enhances the inviting ambiance. Perfect for relaxation or entertaining, this space offers comfort with timeless appeal.
7. Bright Kitchen

This charming kitchen blends warmth and functionality, featuring honey-toned cabinetry and crisp white appliances for a timeless appeal. A spacious island provides ample prep space, while recessed lighting enhances the airy ambiance. The dining area, bathed in natural light from sliding glass doors, offers serene backyard views. Soft checkered curtains and delicate floral accents add a touch of country charm, making this space feel both cozy and welcoming.
8. Dining Room with Vintage Charm

This inviting dining room exudes classic elegance, featuring a rich oak table surrounded by matching high-back chairs. A stately hutch with stained glass panels and brass accents adds character, while framed landscape prints lend a sense of tradition. Soft natural light enhances the warm wood tones, creating a cozy yet refined atmosphere. A centerpiece of fresh flowers in a delicate porcelain vase completes this space, perfect for intimate gatherings and cherished meals.
9. Serene Bedroom

This tranquil bedroom blends elegance and comfort with soft neutral tones and classic furnishings. A stately wooden bed, adorned with layered linens and decorative pillows, anchors the space, while a deep blue settee adds a refined touch. Sheer curtains filter natural light through large windows, enhancing the airy ambiance. A vintage dresser with brass hardware and a framed mirror completes the look, creating a timeless sanctuary perfect for rest and relaxation.
10. Vintage Bedroom

This inviting bedroom blends classic elegance with cozy charm. Soft natural light filters through sheer curtains, illuminating the warm neutral tones of the space. An antique wooden bed with a curved headboard takes center stage, dressed in a paisley-patterned bedspread and plush pillows. Ornate bedside tables hold vintage-inspired lamps, while framed artwork adds a touch of nostalgia. The thoughtful details create a serene and timeless retreat.
11. Guest Bath with Earthy Tones

This well-appointed bathroom balances functionality with inviting warmth. A sleek white vanity with a speckled countertop offers ample space, complemented by a large mirror that enhances the room’s brightness. The shower curtain’s patchwork of neutral hues ties seamlessly with coordinating towels, adding depth and texture. Subtle decor, including framed artwork and ceramic accents, brings charm to the space, making it a comfortable and stylish retreat.
12. Reading Nook with Vintage Charm

This intimate retreat invites relaxation with its mix of classic and contemporary elements. A tufted leather lounge chair and ottoman create a perfect reading spot, complemented by a mid-century swivel chair with plaid cushions. Soft natural light filters through checkered drapes, enhancing the warm, neutral tones. Framed artwork and a delicate inlaid table add timeless character, while a wooden armoire provides storage. This thoughtfully curated space exudes comfort and charm.
13. Spacious Backyard Retreat

This inviting backyard blends simplicity with functionality, offering a generous deck ideal for outdoor gatherings. The light gray wood planks contrast beautifully with the lush green lawn, while a well-placed hot tub promises year-round relaxation. A sliding glass door seamlessly connects indoor and outdoor spaces, enhancing natural flow. Nearby, a bird feeder adds charm, creating a peaceful setting perfect for unwinding or entertaining in a quiet suburban enclave.
Listing agent – Susi Dickson @ NextHome CNY Realty via realtor.com