
Nestled on a beautifully landscaped 0.51-acre lot in Philadelphia, PA, this timeless stone ranch offers 3 bedrooms, 2 bathrooms, and 2,302 square feet of thoughtfully designed living space. Priced at $1,280,000, this elegant single-story residence blends classic charm with modern real estate luxury.
1. Charming Stone Ranch with Inviting Curb Appeal

This picturesque single-story home blends rustic charm with refined details, featuring a classic stone exterior and a welcoming covered porch. A gently sloping roofline and crisp white garage doors complement the soft earth tones of the stonework. Neatly manicured hedges and flowering beds frame the front yard, while mature trees provide a serene backdrop, creating a peaceful and polished suburban retreat.
2. Where is Philadelphia?

Philadelphia is a historic and vibrant city in southeastern Pennsylvania, rich in culture, architecture, and community charm. Known as the birthplace of American democracy, the city blends old-world character with modern living. Tree-lined streets, stately homes, and a variety of green spaces make it appealing for families and professionals alike. With its deep-rooted history and dynamic neighborhoods, Philadelphia offers a lifestyle that’s both timeless and evolving.
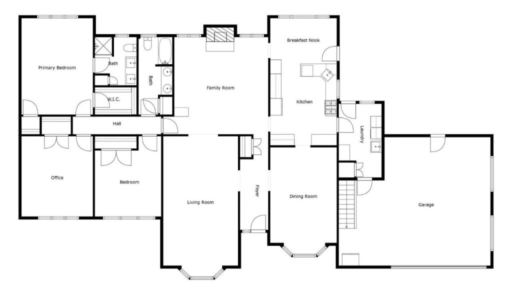
3. main level layout

The main level is a harmonious blend of elegance and practicality. Anchored by a spacious family room, this floor also features a formal living and dining room perfect for entertaining. The open kitchen with adjacent breakfast nook flows seamlessly to the backyard. A serene primary suite, additional bedroom, office, and two full baths offer flexible living. With a laundry room and direct garage access, daily life is both easy and refined.
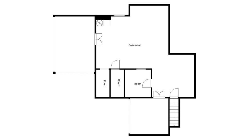
4. Lower Level layout

The basement offers a spacious open area ideal for recreation, a home gym, or media lounge. Three additional rooms provide flexible options for guest quarters, storage, or hobbies, while a private entry adds convenience and potential for a separate suite. This lower level enhances the home’s versatility, making it a valuable extension of the main living spaces.
5. Warm Kitchen with a Garden View

This inviting kitchen combines timeless style with everyday functionality. Rich wooden cabinetry complements the soft sheen of stainless steel appliances, while recessed lighting casts a warm, even glow. A diamond-patterned backsplash adds texture and charm behind the sleek cooktop. At the far end, a breakfast nook overlooks the lush backyard through wide picture windows, creating a peaceful space to start the day.
6. Formal Dining Room with Refined Simplicity

This elegant dining space pairs traditional warmth with modern polish. Muted beige walls and honey-toned hardwoods set a serene tone, while a crystal chandelier adds a delicate sparkle above the oval table. Flanked by matching sideboards in rich wood tones, the room is anchored by a soft, patterned rug. A bay window welcomes in light and nature, enhancing the room’s calm, curated charm.
8. serene Living Room

Soft sage walls and a muted vintage rug create a tranquil foundation for this inviting living room. Plush seating in earthy tones surrounds a glass-top coffee table, offering an ideal space to gather or unwind. A large picture window frames garden views while bathing the room in natural light. Touches like a sculptural plant, curated artwork, and warm wood accents infuse the space with comfort and quiet charm.
9. Bedroom with Garden Views

This inviting bedroom balances simplicity with charm, bathed in natural light streaming through a wide window that frames lush greenery beyond. The soft gray walls create a soothing backdrop for the deep navy bedding and patterned rug below. A white ceiling fan adds a gentle breeze, while light wood furniture brings warmth. It’s a peaceful retreat, perfect for morning light and quiet evenings.
10. Bright Bathroom with Garden Glimpse

This cheerful bathroom pairs crisp white tile with soft gray walls, creating a clean and calming aesthetic. A frosted glass shower door adds privacy without sacrificing light, while a small window brings in the outdoors, framing a peek of green foliage. The sleek vanity offers understated elegance, and a touch of life comes from a leafy plant in a heart-trimmed pot—a charming detail in this serene space.
11. Hearth-Centered Living Room

Anchored by a commanding floor-to-ceiling stone fireplace, this inviting living room radiates rustic charm. Golden flames flicker behind glass doors, framed by warm tones of leather armchairs and a rich area rug. Natural light streams through twin windows, balancing the rugged stone with airy brightness. A simple wood mantel displays personal mementos, grounding the space in both comfort and character.
12. Versatile Home Office with Warm Finishes

Blending function with classic charm, this sunlit home office offers a quiet retreat for productivity. Rich wood cabinetry with built-in shelving and a hidden Murphy bed maximizes storage and flexibility. A large window draws in natural light, highlighting the red geometric rug and polished hardwood floors. Two desks accommodate work and creativity, making the space ideal for both business and hobbies.
13. Tranquil Backyard Retreat

This beautifully landscaped backyard offers a peaceful escape with lush greenery, manicured hedges, and mature trees. A stone retaining wall adds rustic charm while creating distinct garden tiers. The cozy patio area, complete with outdoor furniture and a shade umbrella, is ideal for al fresco dining or relaxing with a book. Perfectly private and serene, this space invites outdoor living year-round.
Listing Agent – Tabitha Heit @ BHHS Fox & Roach Blue Bell via realtor.com