
This exquisite patio home, located in Loveland, Ohio, offers low maintenance living combined with stunning golf course views of the Oasis golf course. Recent updates include fresh interior paint and newer roof and mechanical systems, ensuring modern comfort and efficiency. The home features gleaming hardwood floors throughout the first floor, and an impressive vaulted screened porch plus a large deck to enjoy tranquil outdoor living. The community is popular and well-serviced, including landscaping and snow removal covered by HOA fees. While the year built and plot area were not specified, the asking price for this well-appointed home is $650,000, reflecting its quality, location, and premium golf course setting.
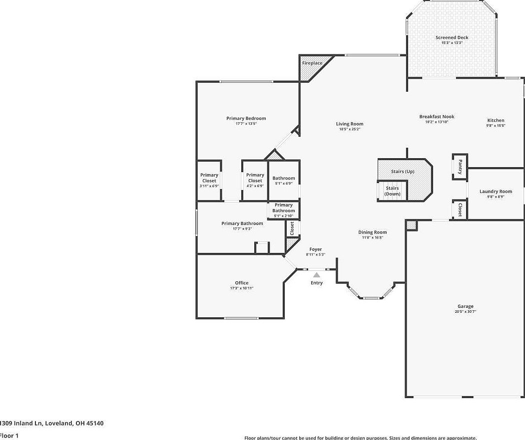
main Floor Layout

This floor plan offers a clear and efficient layout balancing private and social zones. The spacious primary bedroom occupies one corner, featuring two closets and an attached primary bathroom. Adjacent to it is a dedicated office space, ideal for remote work or study. The central living room, distinguished by a corner fireplace, connects seamlessly to the breakfast nook and kitchen, facilitating easy flow and interaction. A formal dining room near the entry enhances entertaining possibilities. The garage and laundry room are grouped together for practical household management. The screened deck off the breakfast nook extends outdoor living options. Overall, the design focuses on functionality with ample storage and varied room sizes.
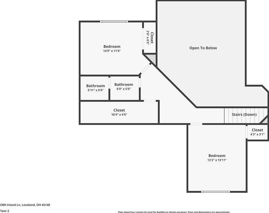
Upper Floor Layout

This upper floor plan features two bedrooms with differing dimensions, designed for privacy and comfort. The larger bedroom, measuring about 14’9″ by 11′, includes a small closet while the smaller bedroom, approximately 12’2″ by 13’11”, offers an adjacent closet space. Two compact bathrooms, one 5’11” by 5′ and the other 6′ by 5′, serve the bedrooms. A significant open space labeled “Open To Below” provides an airy architectural element overlooking the lower floor, adding depth and openness to the home’s design. Stairs connect the levels, and ample closet storage is integrated thoughtfully.
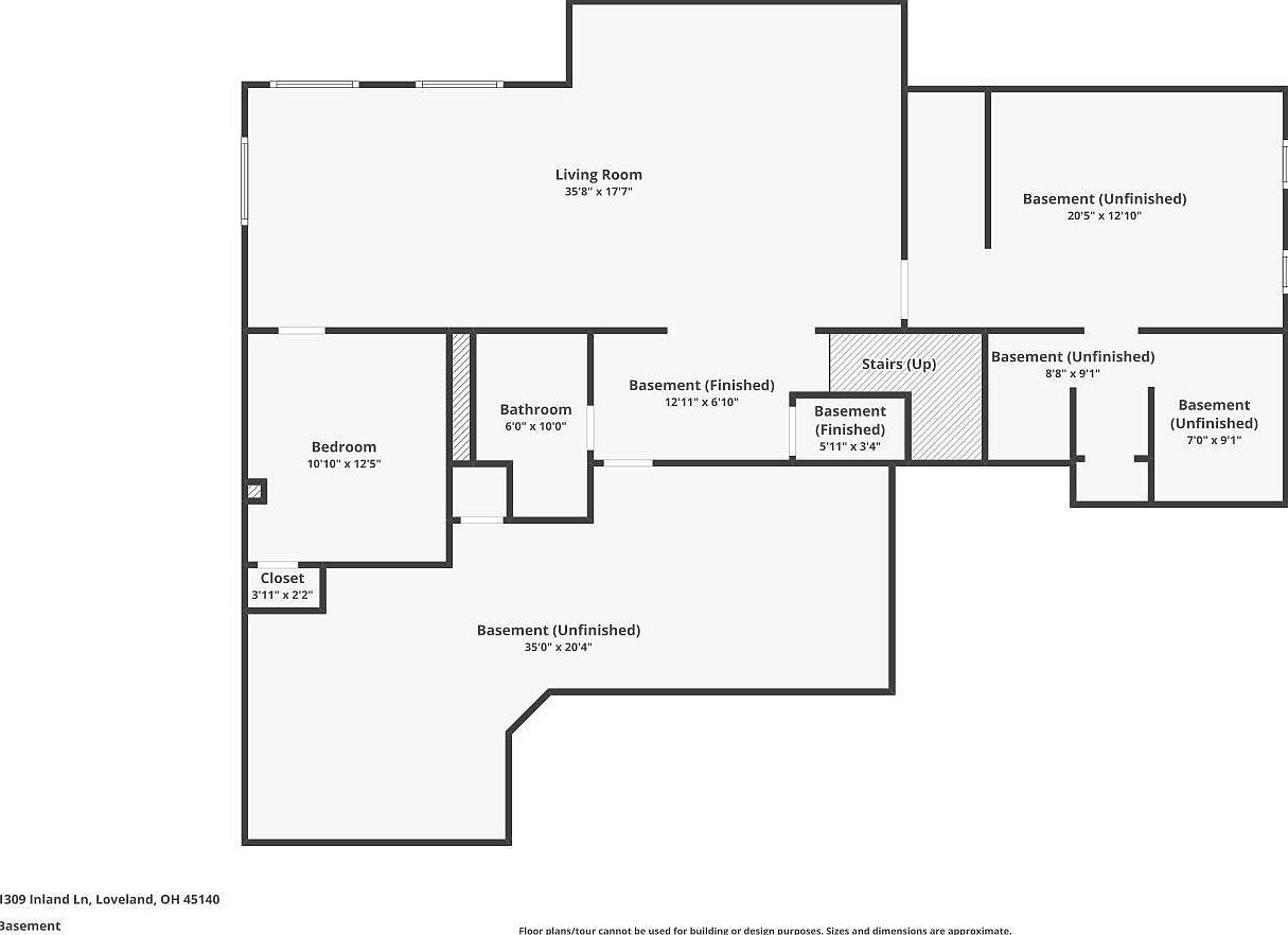
Basement Floor Plan

This basement layout features a combination of finished and unfinished spaces, creating versatile areas for various uses. The largest portion is an expansive unfinished basement measuring 35’0″ x 20’4″, ideal for storage or future development. There are multiple finished basement sections, including a narrow 12’11” by 6’10” area and a smaller 5’11” by 3’4″ space, offering potential cozy living or recreational rooms. A bedroom and bathroom are located on one side, adding comfort and functionality. The design incorporates practical flow from the stairs leading up and various access points to different basement zones.
open Living Room

This spacious living room features a high vaulted ceiling and large windows that flood the space with natural light while offering serene outdoor views. The centerpiece is a stone fireplace with a rustic hearth that adds warmth and texture. A plush beige sectional sofa with a mix of decorative pillows faces a pair of rich brown leather armchairs, creating a cozy yet open seating area around a round coffee table. The neutral palette of soft creams, browns, and earthy tones complements the hardwood floors, while the adjacent kitchen, visible through an arched opening, features white cabinetry and a casual dining nook, enhancing the open-concept design. Subtle art pieces and soft drapery contribute to a welcoming, family-friendly atmosphere.
Formal Dining Room

This formal dining room features a rich wood rectangular table with six carved chairs, two of which are slipcovered in white fabric, creating an elegant contrast. The space is illuminated by a classic chandelier hanging from the tray ceiling, highlighting the room’s architectural details. Soft gray walls with white wainscoting complement the warm wood floor and antique chest of drawers adorned with lamps and decorative glass pieces near the bay window. Natural light filters in through plantation shutters, enhancing the room’s inviting and refined ambiance, while framed artwork and a bench with decorative pillows add personalized touches.
Kitchen Island

This bright kitchen centers around a spacious, multi-angled island with beige countertops that complement the warm wood flooring. White cabinetry with dark hardware offers a classic, clean aesthetic, while stainless steel appliances—including a dishwasher, microwave, double oven, and refrigerator—add a modern touch. The backsplash features a subtle beige mosaic tile pattern that harmonizes with the overall neutral palette. Two pendant lights with clear glass shades hang over the island, providing focused illumination. A window above the black fauceted sink brings natural light and a view outdoors, enhancing the airy and inviting atmosphere.
Laundry Room

This laundry area features a practical and clean setup with a top-loading washer and front-loading dryer side by side. Above, matte black cabinets with brass knobs provide ample storage, contrasting sharply with the white lower cabinets beneath a neutral-toned countertop. A stainless steel faucet and sink offer functionality for handwashing or pre-treating clothes. Natural light filters through the door with built-in blinds, leading to an outdoor space, enhancing the room’s airy feel. The tiled floor and decorative blue and white rug add subtle warmth and texture, balancing utility with a cozy aesthetic.
Master Bedroom Retreat

This serene master bedroom features soft blue walls contrasted with white trim, creating a calming ambiance. A black metal canopy bed serves as the centerpiece, dressed in crisp white linens accented with subtle patterned pillows. On either side, white nightstands with matching lamps provide balanced symmetry and warm lighting. The room’s floor is rich hardwood, partially covered by a large, cream-colored rug with muted, intricate patterns adding softness underfoot. Large windows along one wall invite natural light while framed with simple white curtains. A tufted black storage bench at the foot of the bed adds functionality and style, complementing the bed frame’s dark finish. A ceiling fan with wooden blades completes this inviting, comfortable sleeping space.
Bathroom Vanity and Tub

This bathroom features a soothing, pale mint wall color creating a calm atmosphere. The white cabinetry under the double-sink vanity offers ample storage, topped with a sleek marble countertop and dual brushed nickel faucets. Above the vanity, a large frameless mirror reflects light from the elegant five-light fixture. The soaking tub, accented with decorative tile trim and a built-in panel, sits beneath a frosted glass block window draped with sheer curtains, adding privacy and softness. Gray ceramic floor tiles ground the space with a modern touch, while tasteful art pieces and a classic chandelier above the tub enhance the room’s refined aesthetic.
Cozy Bedroom Retreat

This bedroom features a calm, inviting layout with a central queen bed dressed in a textured white quilt and soft pink accent pillows, including a “LOVE is LOVE” decorative cushion. Behind the bed, an artful sage-green half-circle wall detail adds subtle character to the white walls. To the left, a simple wooden chair with plush cushions provides extra comfort. The room is brightly lit with natural light streaming through a large window draped in light beige curtains. The neutral carpet and white ceiling fan complement the restful, cozy ambiance, while minimal framed artwork adds a touch of sophistication.
Basement Living Area

This spacious basement living area features a neutral color palette with beige carpeting and off-white walls, creating a bright and welcoming atmosphere. The focal point is a pair of comfortable, cream-colored sofas adorned with mix-and-match cushions, arranged around a warm wooden coffee table atop a vibrant, patterned area rug in shades of red, blue, and gold. Built-in bookshelves line one wall, filled with books and media, enhancing the room’s cozy, inviting feel. Natural light filters in through three small windows, balanced by recessed ceiling lights for ample illumination. A polished wooden column adds architectural interest and warmth to the open layout.
Basement Family Room

This spacious basement family room features a neutral color scheme with soft beige carpeting and off-white walls, highlighted by natural wood trim around the two modest-sized windows and baseboards, adding warmth. Recessed ceiling lights create an even, inviting illumination throughout the space. Furnishings include comfortable white slipcovered sofas arranged around a wall-mounted flat screen TV, and a cozy reading area with a wooden rocking chair and built-in bookshelves. The room is further accented by a rich wooden chest serving as a coffee table, along with a cream armchair and a burgundy leather recliner with matching footrest, blending comfort and traditional charm.
Cozy Bedroom

This intimate bedroom features a tucked-in sleeping area framed by a striking deep green accent wall behind the bed, adding warmth and a nature-inspired tone. A wooden paddle mounted above the bed brings a rustic, outdoorsy charm. The bed itself is dressed in black, white, and gray patterned linens, complemented by solid black pillows and a textured black throw. Light tan carpeting softens the space underfoot, while wood trim and matching honey-tone wooden door add natural warmth. Art on the side wall introduces subtle color and personality, with black nightstand and lamp providing functional bedside details.
Bathroom

This bathroom offers a clean and functional layout with a neutral palette centered on soft beige walls contrasted by white fixtures. A spacious glass-enclosed shower with black metal framing anchors one side, bringing a modern industrial touch. The white toilet sits neatly beside a towel rack holding green and white towels, adding a subtle pop of color. A simple, white vanity cabinet with black hardware complements the black faucet and a large, oval mirror above, enhancing the sense of space. A serene landscape painting adds a gentle artistic accent, rounding out the calm and practical design.
Screened Porch

This inviting screened porch blends indoor comfort with outdoor beauty. The dark wood plank flooring contrasts warmly with white shiplap walls and a vaulted ceiling, accented by exposed wood beams. Large floor-to-ceiling windows and a screened door provide an expansive view of lush greenery and distant homes, flooding the space with natural light. The seating area includes cushioned wicker furniture in deep navy blue, complemented by patterned throw pillows and a distinctive round rug featuring a blue and white ornate design. Subtle string lights and wall sconces add a cozy ambiance for evening relaxation. A mounted flat-screen TV and compact mini-fridge complete the functional yet serene atmosphere perfect for social gatherings or quiet moments.
Outdoor Deck

This expansive outdoor deck features weathered gray wooden planks arranged in a distinct pattern, extending across the backyard. Two white Adirondack chairs face inward near the screened-in porch, which has clean white framing and a vaulted ceiling inside, visible through the mesh panels. Adjacent to the porch, a black metal dining table with cushioned chairs provides a comfortable space for outdoor meals, complemented by a grill nearby. Two lounge chairs rest on a small round outdoor rug, perfect for sunbathing or relaxing. Lush greenery, including tall evergreens, creates privacy and adds a natural, serene touch to this inviting outdoor living space.
Backyard Patio and Garden

This garden space showcases a well-maintained lawn bordered by neatly trimmed shrubs and small conifer trees, creating a lush and inviting outdoor area. The home’s exterior combines red brick with light gray siding for a subtle yet classic contrast. A raised stone planter adds texture and structure to the space. The patio features comfortable outdoor furniture arranged around a parasol, perfect for relaxation or social gatherings. A screened porch extends from the main house, offering a sheltered retreat to enjoy nature with protection from insects. Large windows and a central chimney add architectural charm, while mature trees provide natural privacy and shade.
Listing Agent: Eleanor D Kowalchik of Keller Williams Pinnacle Group via Zillow