
This elegant home in Fallbrook, California, is perched atop a hill in the Rainbow area, offering breathtaking panoramic views extending as far as Mount Palomar, visible dusted with snow in the winter. The property exudes a serene Southern California ambiance, blending tranquil seclusion with proximity to Old Town Temecula and downtown Fallbrook, both just 10 miles away—providing convenient access to shopping, dining, and renowned wineries. Architecturally, the home features a Mediterranean style evidenced by its earthy stucco exterior, terracotta roof tiles, and a distinctive rotunda entrance, evoking timeless elegance and warmth. The house was built with high-end finishes including a gourmet kitchen equipped with Viking appliances and a wine bar, complemented by a spacious open-concept living area rich in natural light. The interior showcases a sophisticated mix of wood flooring, slate, and travertine stone, enhancing the home’s luxurious feel. A remarkable 12-foot wall of glass with dual sliding doors opens to an outdoor patio, creating a seamless indoor-outdoor living experience—iconic of Southern California lifestyle. Notable recent renovations include the addition of a brand new 10-foot panoramic window in the kitchen nook to maximize the stunning landscape views. The outdoor space boasts a luxurious infinity-edge pool accompanied by a cascading waterfall, perfect for relaxation and entertaining. While the exact year built and plot area are not specified in the overview, the home’s price is competitively set at $1,300,000.
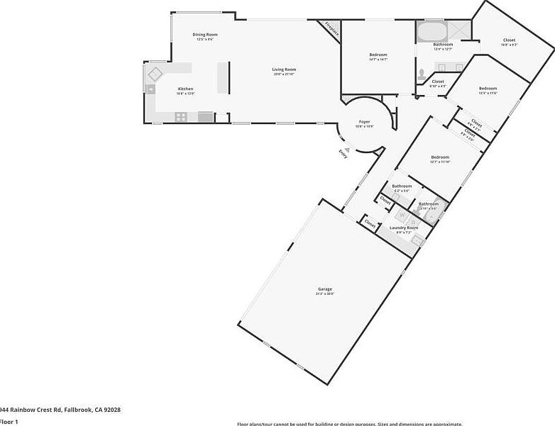
Floor Plan

This detailed floor plan reveals a well-organized single-level home layout emphasizing spacious communal areas and private bedrooms. The main living space combines a large living room adjacent to a dining area and kitchen, creating an open flow for entertaining and daily living. The kitchen is positioned in a corner with countertops arranged in an L-shape. Three bedrooms are clustered in one wing, each with closets and immediate access to bathrooms, including an en-suite master. Additional functional spaces include a laundry room, multiple closets for storage, and a sizeable garage positioned separately but connected through a hallway. The overall design balances practicality and privacy with a modern, angular footprint.
Living Room with Fireplace

This cozy living room boasts rich, dark hardwood flooring complemented by cream-colored walls that create a warm and inviting atmosphere. A stone-tiled fireplace anchors the space, adorned with a modern abstract painting adding a splash of bright color. Seating includes a comfortable beige armchair, a dark wood framed sofa with cushioning, and a plush black leather couch arranged around a glass-top coffee table with intricate ironwork legs. Large sliding doors with neutral curtains open to a scenic outdoor view, offering abundant natural light and seamless indoor-outdoor living. Ceiling fans and recessed lighting complete this comfortably elegant setting.
Kitchen

This spacious kitchen features a warm and inviting color palette with honey-toned wooden cabinetry providing ample storage. Polished granite countertops complement the cabinetry, creating a cohesive, elegant look. The kitchen is equipped with modern stainless steel appliances, including a large double-door refrigerator, built-in microwave, gas stove, and dishwasher. The backsplash is tiled in neutral earthy shades with subtle diamond accents, adding texture and interest to the walls. Natural light floods in through large corner windows, offering scenic views outside, while recessed ceiling lights and a pendant light over the sink enhance brightness and functionality. Dark slate flooring grounds the space with a rustic touch.
Dining Area with Scenic View

This dining area is beautifully situated to maximize natural light through large corner windows showcasing an expansive view of distant hills and palm trees. The space features a warm, neutral color palette with soft beige walls that complement the dark slate floor tiles. A solid wood dining table with six matching chairs upholstered in light fabric provides a sturdy yet elegant focal point. Overhead, a black metal chandelier with exposed bulbs adds a modern industrial touch. Adjacent to the dining set, a cozy seating area with wooden-framed armchairs and a decorative console with a purple orchid brings a fresh, inviting feel to the space.
Master Bedroom with Patio Access

This spacious master bedroom features soft beige walls paired with rich, warm hardwood flooring, creating a cozy yet elegant atmosphere. A large bed with a white headboard that includes built-in shelving serves as the room’s focal point, flanked by matching nightstands. The bed is adorned with neutral-toned linens that complement the room’s calm palette. A full-length mirror stands near the sliding glass door, which opens to a private outdoor patio with scenic mountain views. Complementing the space, a striped cushioned armchair offers a comfortable reading nook, while a ceiling fan overhead ensures a pleasant climate year-round.
Bathroom

This bathroom features a spacious dual-sink vanity with rich wooden cabinetry that provides ample storage. The countertop is a light beige marble, complementing the soft cream walls for a warm, inviting ambiance. Above the vanity, a large rectangular mirror framed in dark wood reflects the space, adding depth. Three classic light fixtures with frosted glass shades sit atop the mirror, casting a soft, warm glow. To the right, a white toilet rests against a recessed wall niche adorned with a delicate white orchid arrangement in a gray vase. Matte black faucets and hardware enhance the room’s modern yet timeless aesthetic, while a small potted plant on the counter adds a touch of greenery and freshness.
Bathroom with Walk-in Closet

This bathroom features a spacious layout with a large, built-in bathtub finished in neutral-toned tiles that extend to the floor and surrounding surfaces, creating a cohesive look. Adjacent to the tub is a glass-enclosed shower, highlighted by a dark bronze faucet and shower fixtures that add contrast to the light beige and cream color scheme. A large window allows abundant natural light while providing exterior views. The room opens into a walk-in closet filled with organized shelving and hanging clothes, blending practicality with comfort in a warm, inviting atmosphere.
Bedroom

This serene bedroom corner centers on a medium-sized bed with a dark upholstered headboard, dressed in crisp white bedding that creates a clean, inviting feel. The walls are painted a soft beige, lending warmth and neutrality to the space. Natural light filters through a single window with a simple white roller blind, brightening the room and highlighting the warm honey-toned hardwood floors. A patterned gray-and-white rug under the bed adds subtle texture. On one side, a dark wood nightstand topped with a classic lamp adds functional charm, while a black wooden chair and a tall leafy plant fill corners, enhancing comfort and balance in this minimalist retreat.
Cozy Bedroom Retreat

This bedroom features a warm, inviting atmosphere with soft, neutral wall colors that bring a calm and restful ambiance. A metal and wood bed frame serves as a focal point, combining rustic charm with classic design. The bed is dressed in crisp white bedding accented by patterned throw pillows, adding subtle texture and color. On one side, a dark wooden nightstand holds a lamp with a beige shade, creating cozy lighting. The opposite nightstand is adorned with a modern lamp and decorative branches, enhancing the room’s simplicity. A ceiling fan with dark blades adds contrast and functionality, while a window allows natural light and views of the dry landscape outside, complementing the room’s serene aesthetic. The wooden floors and light area rug finish the space with a natural, grounded feel.
Bathroom

This bathroom features a spacious vanity with warm terracotta tile countertops and rich wooden cabinetry, creating a cozy yet practical design. A large mirror stretches across the wall above the sink, amplifying light and space. The color palette blends earth tones, seen in the cabinetry and tiles, with soft cream walls enhancing brightness. Decorative touches include a small greenery arrangement and art pieces near the towel holders. Visible to the side is a bathtub enclosed by white tiles with a decorative border, complemented by a unique circular window that adds character and natural light.
Laundry Room

This cozy laundry room combines functionality and subtle elegance with warm oak cabinetry lining both sides, offering ample storage above and below the granite countertop. The countertop features a rich blend of browns and creams, complementing the honey-toned wood and providing plenty of space for folding clothes or placing essentials. A white front-loading washer and dryer sit side by side on one end, blending seamlessly into the light, neutral walls. A small window above the stainless steel sink lets in natural light, brightening the space and enhancing the fresh, organized ambiance. Decorative accents include a charming laundry-themed wall sign and a vase with fresh flowers, adding a homely touch to this practical workspace.
Garage Storage and Workspace

This spacious garage features a clean, utilitarian design with a smooth concrete floor and white walls that brighten the space. Overhead fluorescent lighting ensures ample illumination. On the left, a double-wide garage door facilitates vehicle access, complemented by a standard pedestrian door in the rear for ease of entry. Shelving units along the back wall hold a variety of organized household and outdoor items, including storage bins and tools. A sturdy wooden cabinet with glass panels adds a touch of warmth and functionality. A grill and large trash bins are neatly placed, emphasizing the space’s dual use for storage and practical home maintenance tasks.
Covered Patio Overlooking Pool

This serene covered patio offers a comfortable outdoor dining area with a dark metal table and cushioned swivel chairs arranged over a striped red and beige rug. The ceiling is smooth with recessed lighting, while a series of elegant arches frame breathtaking views of the infinity pool and mountainous landscape beyond. Natural stone tiles extend throughout the space, blending seamlessly with large boulders near the pool. Palm trees and greenery add a tropical touch, enhancing the tranquil atmosphere. The soft beige walls and neutral tones reflect a warm, inviting Mediterranean-inspired aesthetic that balances indoor comfort with the natural outdoor beauty.
Infinity Pool

This outdoor space features a stunning infinity pool that seamlessly blends into the vast natural landscape beyond, creating an uninterrupted water-to-sky horizon. The pool is framed by large natural stone accents and a matching elevated spa area with stone cladding, adding both texture and an organic feel. The spacious light beige tiled deck surrounds the pool, providing ample room for lounging and enjoying the panoramic views of rolling hills and distant mountains. The presence of a few strategically placed palm trees enhances the tropical ambiance, while clear blue skies and lush greenery complete the serene, resort-like atmosphere.
Listing Agent: Virginia Gissing of RE/MAX Connections via Zillow