
This exquisite custom-built ranch home with a loft and full walkout basement is located in Cumberland, Indiana, within the highly desirable New Palestine school district. The home boasts 5 large bedrooms, with three on the main level and two in the walkout basement. Notably, the oversized fifth bedroom is highly versatile, serving either as a large recreational area or convertible into separate spaces to suit a variety of family needs. The residence includes 3 full bathrooms and 2 half baths, enhancing comfort for family and guests. The walkout basement is designed as an entertainer’s haven, featuring a cozy wood-burning fireplace, a full wet bar, and direct access to the backyard. Additional features include a spacious 4-car garage with abundant storage and a full attic space that holds potential for future finishing or additional storage. This home masterfully combines thoughtful design elements and custom features, making it an exceptional opportunity in an unbeatable location. Listed at $675,000, this property offers outstanding value for its size, amenities, and prime location, promising a comfortable and stylish lifestyle in Cumberland, IN.
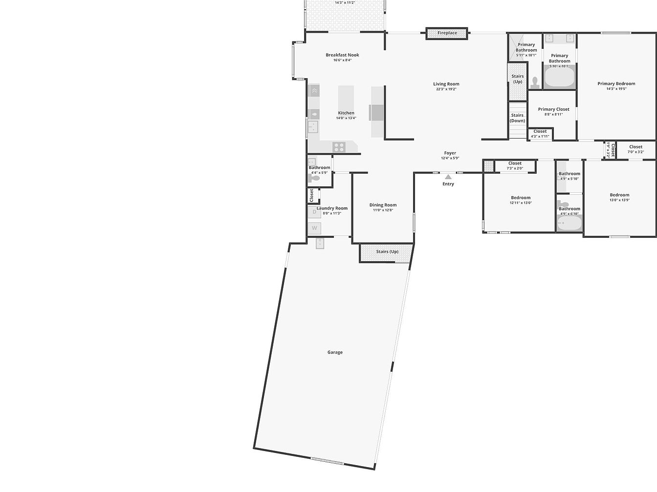
Floor Plan

This spacious floor plan is designed with a thoughtful flow connecting the primary living areas and bedrooms. The entry opens into a foyer, leading to a large living room anchored by a fireplace, ideal for relaxation. Adjacent is an open kitchen and breakfast nook, complete with a convenient island and direct access to the outdoors. The dining room sits near the kitchen, creating a seamless dining experience. Three bedrooms, including a primary suite with a walk-in closet and en-suite bathrooms, offer private retreat spaces. A laundry room, additional closets, and a two-car garage maximize functionality and storage throughout the home.
Loft Plan

This spacious loft area measures 23 feet 3 inches by 28 feet 8 inches, offering a versatile open floor plan ideal for a variety of uses such as a family room, office, or entertainment space. The layout includes an adjacent cozy bathroom measuring 4 feet 2 inches by 4 feet 10 inches, providing convenience without compromising privacy. The loft overlooks the open space below via a cut-out section that enhances natural light and a sense of airiness. Stairs leading down are centrally located, making the loft easily accessible from the lower level of the home.
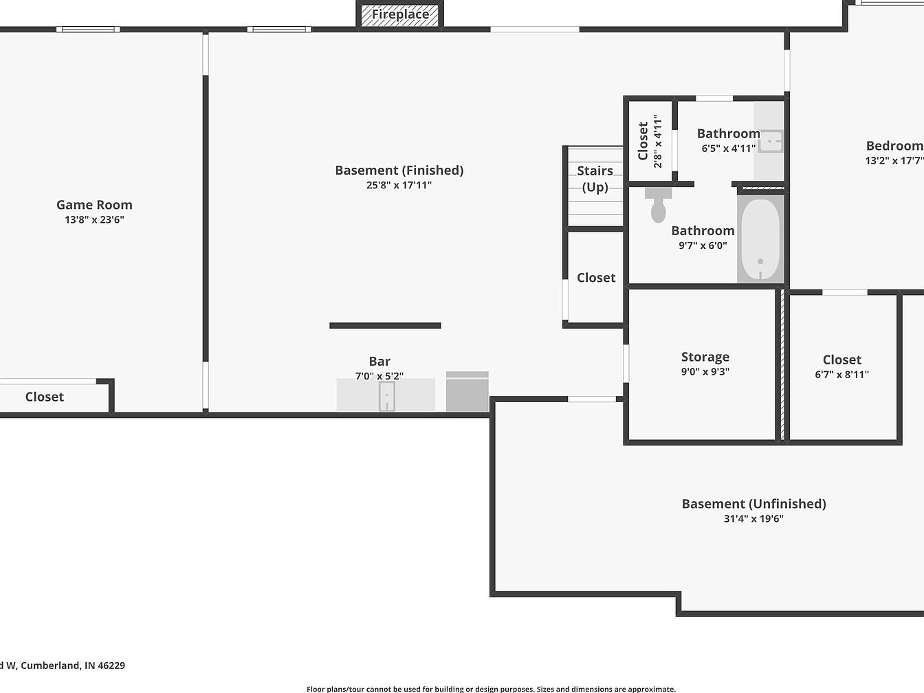
Basement Layout

This basement features a well-planned finished area measuring approximately 25’8″ by 17’11”, designed for versatile use. It includes a cozy bar space around 7’0″ by 5’2″ for entertaining, positioned conveniently near a game room spanning 13’8″ by 23’6″. The layout also offers two bathrooms, with one having a bathtub and the other a shower. There are multiple closets and a storage area providing ample room for organization. The basement’s design balances functionality with leisure, making it ideal for family gatherings or hosting guests, while an adjoining unfinished section allows for future customization.
vaulted Living Room

This living room boasts a spacious and inviting layout featuring two large beige sofas adorned with a mix of patterned and solid pillows that complement the neutral carpet flooring. The seating arrangement centers around a sturdy wooden coffee table and matching side table, each showcasing turned legs and a warm finish. The room is illuminated by brass lamps with cream shades, adding a cozy glow. Architectural details include high vaulted ceilings with wooden beams, large upper windows allowing ample natural light, and wood-trimmed double front doors integrating stained glass. Adjacent rooms, including a dining area and kitchen, flow seamlessly through wide, open doorways, emphasizing an open floor plan with soft earthy tones throughout.
Kitchen and Breakfast Nook

This spacious kitchen features warm wooden cabinetry complemented by beige marble countertops that extend to a central island with additional storage. Hardwood floors run seamlessly throughout, enhancing the natural warmth of the space. Exposed wood beams on the vaulted ceiling add rustic charm while recessed lighting provides a bright and welcoming atmosphere. Stainless steel appliances, including a double oven and dishwasher, blend modern convenience with classic style. The breakfast nook at the far end offers a cozy dining space with a round wooden table and chairs under a stained-glass pendant lamp, next to French doors leading to a sunlit porch. Soft blue walls and lightly patterned window treatments contribute to a fresh, airy feeling.
Dining Room

This dining room features a warm, inviting aesthetic with classic wooden furniture as the focal point. A rectangular wooden table sits at the center, surrounded by eight matching chairs with cushioned seats. The walls are painted in a soft pastel blue, contrasting gently with the dark wood trim around windows, doorframes, and baseboards. The ceiling has a vaulted design with a rustic chandelier hanging overhead, adding a touch of elegance. Vintage touches include a grandfather clock and a china cabinet filled with fine dishware. Artwork on the walls contributes to a homely, timeless ambiance. A round braided rug anchors the furniture, complementing the natural wood flooring.
Master Bedroom

This spacious master bedroom features a warm and inviting atmosphere accentuated by soft pastel walls and plush beige carpeting. The large window, framed by floral-patterned curtains, lets in ample natural light and offers a view of lush greenery outside. The room’s focal point is a metal-framed bed adorned with a floral comforter and colorful throw pillows in pastel tones, harmonizing with the walls. Classic wooden furniture, including a vintage dresser with an oval mirror, nightstand with a lamp, and a small seating area with a loveseat and a wooden chair, add traditional charm. A ceiling fan with light fixtures enhances comfort and functionality.
functional Bathroom

This bathroom features a large, light wood vanity with a smooth white countertop and dual sinks, complemented by brushed nickel faucets. A full wall mirror spans the length of the vanity, enhancing the spaciousness and light. The walls are painted a soft sage green, providing a calm and fresh ambiance. To the left, a doorway with a natural wood frame leads into a shower area enclosed by sliding glass doors. The shower walls are tiled in crisp white with decorative beige accents. The floor is tiled in neutral stone-look ceramic, tying together the natural, clean aesthetic. A small white towel hangs on a metal ring beside the vanity, under soft recessed ceiling lighting.
Walk-in Closet

This spacious walk-in closet features a practical, U-shaped layout designed for efficient storage. Light wood shelving and hanging rods populate the walls, offering ample space for a variety of clothing and accessories. The color palette is warm with pale green walls contrasted by beige carpeting and natural wood trim, creating a cozy yet functional atmosphere. Multiple shelves neatly display shoes and smaller items, while rods hold shirts, jackets, and pants organized by type and color. Handbags are hung on the inside panel, allowing easy access. A fluorescent ceiling light brightens the space, making the closet inviting and user-friendly.
Master Bedroom

This master bedroom features a classic, cozy aesthetic with warm wooden furniture and neutral tones. The focal point is the ornately carved wooden bed with turned posts, dressed in a delicate, pastel-patterned quilt and accented with blue and white pillows. To the left, a pair of vintage-style table lamps provide soft lighting over matching wooden nightstands and dressers. A wooden bookcase sits in the corner near a double window framed with natural wood trim, allowing ample daylight to brighten the space. A wooden rocking chair with plaid and blue cushions adds a charming, homey touch. The ceiling fan with wood blades enhances comfort, while the beige carpet and light walls keep the ambiance calm and inviting.
Bedroom

This cozy bedroom corner features a classic brass bed frame adorned with a blue and white floral patterned bedspread complemented by red and blue accent pillows, including one with a stars and stripes motif. A rich red throw blanket adds warmth and patriotic flair. The walls are painted a soft beige, accented by natural wood trim around the three-panel bay window, which bathes the room in natural light. Simple furnishings include a wooden chair and a small side table with a white lamp, creating a welcoming, vintage-inspired ambiance. Wall decor emphasizes Americana with framed artwork and a “God Bless America” sign.
spacious Bathroom

This bathroom features a spacious vanity with a long, smooth, white countertop and an integrated sink. The cabinetry is crafted from warm-toned wood, accentuating the natural grain, and offers ample storage beneath. A large mirror spans the entire length of the vanity, enhancing the light and space in the room. Neutral beige walls complement the earthy wood tones, and coordinating trim frames the doorways and shower area. White tile flooring in the shower and toilet section contrasts with the natural wood floors outside, while simple decor including two framed art pieces and neatly hung white towels add subtle charm.
Laundry Room

This compact laundry room features a light blue wall color complemented by natural wood trim around the door and baseboards, creating a warm contrast. A white door with six panels anchors the space visually, next to a matching set of white Maytag washing machine and dryer. Above the appliances, a wooden cabinet offers practical storage, while an adjacent wooden rod provides space for hanging clothes. The flooring appears to be a smooth, light brown concrete or vinyl, adding to the room’s functional, clean aesthetic with an understated, rustic charm.
Loft Living Area

This loft space exudes a warm, inviting atmosphere with its exposed wooden beams and angled ceiling creating architectural interest. Neutral carpeting softens the space underfoot, complementing the light walls framed by honey-toned wood trim. A cozy seating area features a blue upholstered sofa and matching armchair with ottoman, paired with a solid wood coffee table that anchors the space. A desk setup sits in the back corner, ideal for a home office, illuminated by lamps for task lighting. The ceiling fan with light fixture adds functionality and charm, while the open railing overlooks the floor below, maintaining an airy flow.
Open Living in basement

This spacious living area combines casual seating with a dining corner, creating an inviting and multi-functional space. Light wood flooring complements the neutral beige sofa accented with soft throw pillows in muted tones. The dining table, made of natural wood, is paired with cushioned chairs on casters offering comfort and mobility. The wooden staircase with simple railings and matching wood trim frames the living space, while recessed ceiling lights illuminate the room with soft, even brightness. In the background, a small bar area with wood cabinetry and dark countertop adds character. A touch of greenery and framed wall art bring warmth and personality to the clean, understated design.
Home Bar Area

This cozy home bar blends rustic charm with practical comfort. A rich wood bar with a polished countertop anchors the space, accompanied by four tall black metal bar stools with subtle cushioning. Behind the bar, cabinets with glass-paneled doors and a built-in wine rack provide both storage and display. Soft recessed lighting above invites a warm ambiance. The walls are painted a light neutral shade that complements the medium wood tones of the doors, bar, and trim. A comfortable, upholstered chair featuring a humorous throw pillow creates an inviting spot to relax nearby, enhancing the welcoming atmosphere of this entertainment nook.
Recreational Basement Room

This spacious basement room is designed for casual entertainment, prominently featuring a ping pong table set up at the center. Neutral light gray carpeting with a subtle pattern covers the floor, complementing the white walls and ceiling, which has a textured finish. Natural light filters in through two small wooden framed windows, matching the warm wood tones of the baseboards and door. The room’s clean lines and simplicity make it a versatile space, perfect for recreation or relaxing activities, with a practical and inviting ambiance.
Screened Porch

This screened porch offers a cozy, light-filled environment perfect for casual meals or gatherings. The natural wood flooring and light beige walls create a warm and inviting atmosphere, while the vaulted ceiling adds spaciousness. Large windows on two sides provide unobstructed views of the peaceful wooded area outside, with delicate touches of spring blossoms visible in the distance. A sturdy metal mesh table and six matching chairs present a classic outdoor dining set, spaced comfortably for easy conversation. The rustic wooden console table along the wall adds charm and offers additional space for decorative items or serving ware. The screened door leads to a wooden deck, connecting this sheltered spot to the outdoors seamlessly.
Back Deck and Porch View

This spacious wooden back deck features natural wood planks and a wooden railing, offering a warm, natural aesthetic. The deck leads to stairs descending to a lush green yard with trees and an American flag visible in the distance. Adjacent to the deck is a screened porch with a sloped shingled roof and beige horizontal siding, providing an inviting sheltered outdoor space. The surrounding landscape includes tall deciduous trees and vibrant greenery, emphasizing a serene, nature-connected environment perfect for relaxation and outdoor gatherings.
Backyard

This spacious backyard features a lush, green lawn extending across a gently sloped terrain, perfect for outdoor activities or gardening. The home’s exterior combines natural stone on the lower level with light beige siding above, creating a harmonious blend of rustic and contemporary styles. A wooden deck, accessible via stairs, includes a pergola-covered section ideal for shaded outdoor seating. Adjacent to the deck is a screened porch, providing a cozy sheltered spot to enjoy fresh air while protected from insects. Mature trees border the yard, adding character and seasonal interest to the serene setting.
Listing Agent: Mollie Fraley of F.C. Tucker Company via Zillow