
This charming country home located in Pendleton, Indiana, showcases a blend of traditional and rustic architectural styles, highlighted by its stone and siding exterior paired with a welcoming front porch featuring rocking chairs. The home is custom-built with meticulous attention to detail, featuring beautiful hardwood floors throughout. Gathering spaces include a spacious great room with a stone fireplace that flows into a large kitchen equipped with elegant cabinetry, built-in shelving, and an expansive dining area. Enjoy peaceful mornings on the screened porch overlooking a babbling creek and stunning landscaped grounds, perfect for relaxation and nature appreciation. A versatile sewing room offers potential as an office, playroom, or music room, while the primary suite boasts a huge walk-in closet, a well-appointed en suite bathroom, and lovely views of the property. The upper level includes a flexible bonus room designed for a TV area, reading nook, play space, or a possible fourth bedroom option. The walkout lower level expands living and entertaining options with an additional bedroom, full bath, office, and game room, along with a finished oversized garage that is ready to serve as a workshop, she shed, or man cave. Situated on a 2-acre plot, this peaceful property offers ample room for outdoor enjoyment and country living. The home is listed at $749,900, making it a beautiful and spacious retreat for any family.
Basement Layout

This basement floor plan reveals a spacious, multifunctional area designed for practical living and storage. It includes a large unfinished basement space measuring 16’6″ by 39’2″, ideal for future customization. Adjacent rooms include an office spanning 13’3″ by 14’1″, a bedroom of 11’11” by 14’3″, and a bathroom with an attached closet. Two additional closets by the stairs and a smaller 3’5″ by 4’2″ closet maximize storage. The covered patio at 19’4″ by 15’9″ offers outdoor access. The layout is well-planned for flexibility and utility, with a garage connected for convenience.
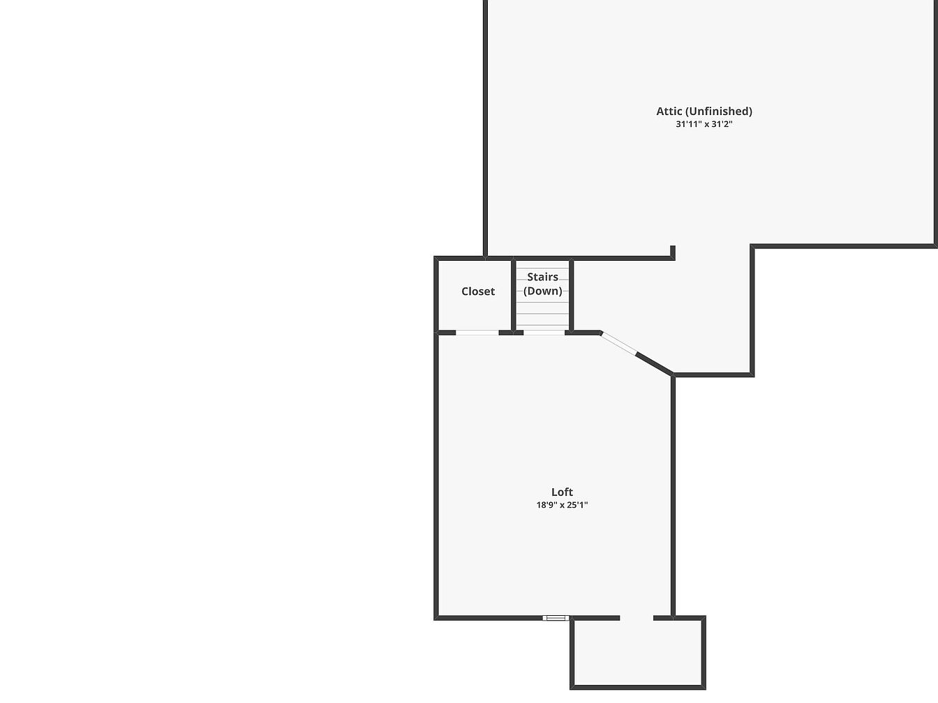
Loft and Attic Layout

This floor plan highlights the upper level featuring a spacious loft area measuring 18’9″ by 25’1″, ideal for a flexible living space such as a family room or home office. Adjacent to the loft is an unfinished attic space of 31’11” by 31’2″, offering abundant storage or potential for future development. A conveniently located closet near the staircase provides added storage. The layout shows a straightforward design with practical usage of space, optimizing both living and storage areas on this upper level, accessed via a central staircase.
main floor layout

This floor plan presents a spacious and thoughtfully designed single-level home with a clear division of functional areas. The layout includes a primary bedroom with two adjacent closets and a large primary bathroom, emphasizing privacy and comfort. Central to the home is the living room, which connects to a back deck and screened patio featuring a fireplace, perfect for indoor-outdoor living and entertaining. The kitchen, generously sized, sits close to a den or office and a guest bedroom with nearby bathroom access. A mudroom, laundry room, and garage enhance utility, while the foyer and front porch provide a welcoming entry sequence. The design balances open living spaces with private, practical areas.
Cozy Family Living Room

This inviting living space features a harmonious blend of warm brown tones and neutral shades. Plush, brown leather reclining sofas and chairs create a comfortable seating arrangement around a wooden coffee table set on a patterned area rug. A white fireplace with beige tile accents anchors the room, topped by a mounted flat-screen TV and a vase with floral decor adding sophistication. The space is well-lit naturally through glass windows and a door. Rustic elements include a sliding barn-style wooden door and rich hardwood floors, while a ceiling fan with wooden blades adds both function and charm.
Kitchen and Breakfast Area

This open kitchen features rich cherry wood cabinetry paired with a contrasting black fridge, adding warmth and depth to the space. The countertops are polished in a light stone pattern, complementing the neutral beige walls. Above the center island, three pendant lights with stained glass designs add character and enhance the room’s cozy ambiance. Hardwood floors span the entire kitchen and adjacent breakfast area, where a wooden dining table is paired with a bench and chairs in a dark finish, echoing the kitchen bar stools. A large arched opening connects this space to the rest of the home, promoting an open and inviting layout.
Dining Area

This dining space features a blend of rustic and contemporary styles with its natural wood plank dining table and bench seating supported by matte black legs. The chairs add contrast with black frames and neutral gray cushions. Walls are painted a soft cream, complementing the warm hardwood flooring beneath. Large double windows on two walls flood the room with natural light and showcase leafy outdoor views, creating an inviting atmosphere. A wrought iron chandelier with five cylindrical glass shades hangs centrally, adding a classic touch. Through a doorway, a cozy sunroom with wicker furniture and red cushions is visible.
Open Kitchen and Dining Area

This open-concept kitchen and dining space features warm wooden cabinetry complemented by stainless steel appliances, including a stove and microwave. A large central island with shelves faces the dining area, providing storage and extra prep space topped with smooth, light countertops. Above the island, three pendant lights with decorative shades create a cozy atmosphere. The dining table, made of polished natural wood, pairs with four black chairs, enhancing the room’s rustic-modern style. An elegant chandelier hangs centered over the table. A built-in shelving unit on the right displays decorative items against a soft, pale wall color, tying the space together with warmth and inviting charm.
Master Bedroom Details

This spacious master bedroom features a serene color palette dominated by light cream walls and soft gray carpeting. The tray ceiling adds architectural interest, complemented by a ceiling fan with dark wooden blades and warm light fixtures. A large arched window floods the room with natural light, framed by rich burgundy and patterned beige curtains. The bed is dressed in crisp white bedding, accented with navy and gray pillows and a scenic throw blanket. Antique-style wooden furniture, including a chest at the foot of the bed, a dresser, and a blue upholstered armchair with floral pattern, bring warmth and classic charm to this comfortable retreat.
Bathroom with Stained Glass Window

This bathroom blends classic and vibrant design elements, featuring a spacious layout with a bathtub and separate shower stall. The bathtub is bordered with neutral beige tiles complementing the floor’s marble-like appearance. A bold cobalt blue accent wall draws attention to the large stained glass window, showcasing intricate floral patterns in various colors, allowing natural light to filter through beautifully. The vanity includes a white marble countertop with dual sinks and rich wood cabinetry. Dark towels, a small framed quote, and practical fixtures offer a subtle contrast, creating a warm and inviting atmosphere.
Walk-In Closet

This walk-in closet boasts an efficient use of space, featuring a double-tiered hanging system for clothes with a variety of colorful garments neatly arranged on wooden rods. White shelving units border the closet, providing organized storage for shoes, accessories, and folded items. The carpeted floor adds warmth and comfort underfoot, while the chair with a floral upholstered seat offers a convenient place to sit. Neutral wall colors keep the area bright and open, complemented by practical plastic bins atop the upper shelf for additional storage. Overall, the closet balances functionality with a clean, inviting aesthetic.
Bedroom Cozy Corner

This inviting bedroom features a classic wooden bed frame with a detailed quilt showcasing blue and white geometric patterns. Deep blue curtains frame a large window that floods the room with natural light, offering a calming view of lush greenery outside. A comfortable armchair with a subtle floral pattern sits beside the window, adding a touch of elegance and relaxation. The carpeted floor enhances warmth and comfort, while a striped lamp on the nightstand provides soft lighting. The ceiling fan with dark blades is both functional and stylish, complementing the room’s clean and cozy aesthetic.
Craft Room Workspace

This cozy craft room is bathed in natural light from two large, multi-pane windows offering tranquil views of lush greenery outside. Walls painted in a soft pastel lavender create a calming atmosphere, complemented by a beige textured carpet. Two light blue, upholstered chairs with subtle patterns sit at a long wooden desk, ideal for detailed projects, accompanied by a peg-mounted thread storage rack and an iron with a floral print ironing board for sewing needs. A built-in wooden bench beneath the windows includes storage drawers and a floral cushion with decorative pillows, providing extra seating and functionality. The ceiling fan with wooden blades adds warmth while maintaining airflow and comfort.
Bathroom

This bathroom features a compact layout with a combination bathtub and shower along one wall, enclosed by a decorative shower curtain in rich bronze, gold, and gray tones with a floral pattern. The walls are painted a neutral off-white, providing a clean backdrop. There is a vanity with a marbled countertop including an under-mount sink and oil-rubbed bronze faucet that complements the shower fixtures. Above the sink is a large oval mirror and two soft-glowing wall-mounted lights. Dark brown towels and a small wicker basket on the toilet add warmth and texture to the space.
Cozy Attic Lounge

This intimate attic space is designed as a cozy lounge and workspace, with slanted white ceilings contrasting against light wooden wall panels that enhance warmth and charm. Plush carpeting underfoot adds softness and comfort. On the left, rich brown leather recliners invite relaxation, while the right side features a beige upholstered sofa adorned with textured, patterned cushions for visual interest. A simple wooden desk with a classic chair is centered beneath a small window, supplemented by a decorative table lamp producing a homely glow. A small wall-mounted TV adds entertainment, and a nook with colorful pillows hints at a playful reading or play area.
Cozy Bedroom Details

This bedroom offers a welcoming and intimate ambiance with soft, neutral wall colors enhancing natural light from the large window overlooking a lush green lawn. The bed is dressed in an intricate patterned comforter and matching pillows in hues of purple and gray, coordinated with a textured purple headboard for a cohesive look. Complementing the bed are classic wooden furnishings, including a tall chest of drawers and a small bedside table with a charming stained glass lamp. A cozy armchair with striped upholstery and a plush area rug with geometric designs complete the inviting space. The ceiling fan combines brushed metal and dark wood blades, adding a functional yet stylish ceiling element.
Bathroom Vanity Area

This bathroom features a stylish vanity with a broad marble countertop in soft white and gray veining, paired with classic white cabinetry below. The walls are painted lavender, accented by a horizontal aqua blue stripe that adds a refreshing contrast. A large mirror spans the countertop’s length, bordered above by modern, square light fixtures offering bright, even illumination. Decorative elements include a unique wall art piece with circular reflective and colored segments, two towel bars holding white towels, and a small bowl holding neatly rolled towels. The black faucet and accessory fixtures add a sleek touch to the design.
Combined Bedroom and Workspace

This multifunctional room features a cozy bunk bed with a dark wooden frame against a light grey wall, creating a subtle contrast. The lower bunk is dressed in a deep blue cover with a playful floral pillow and stuffed horse toy, adding a child-friendly touch. Adjacent, a large rustic wooden desk occupies the corner, supporting dual monitors and office essentials, indicating a dedicated workspace. The wall behind the desk is painted a darker grey, accentuating two minimalist floating shelves holding books and caps, contributing to the room’s organized yet personal vibe. Light wood flooring and modern ceiling fixtures complete the clean, practical space.
Basement Recreation Area

This spacious basement area is currently used for both recreation and storage. The unfinished ceiling exposes wooden beams and ductwork, giving an industrial, raw vibe. Walls are a mix of unfinished drywall and concrete. A ping pong table dominates the foreground, suggesting a casual entertainment space. Various household items and decor sit on wooden shelving against one wall, alongside numerous packed boxes stacked neatly, indicating ongoing organization or recent moving activity. The far end houses exercise equipment and a piano, highlighting multi-functional use. A white door opens into an adjacent room covered in patterned carpet, enhancing warmth in part of the basement.
Sunroom

This cozy sunroom seating area is designed for relaxation and socializing, featuring expansive windows framed in warm wood tones that invite ample natural light while offering serene views of lush greenery outside. The walls and ceiling, finished in a soft beige with beadboard detailing, create a subtle, inviting ambiance. Dark woven wicker furniture with vibrant red cushions adds warmth and contrast to the space. A matching ottoman and a patterned red area rug with floral motifs further unify the seating arrangement. The black ceiling fan with leaf-shaped blades brings a touch of nature indoors and adds comfort.
Backyard Deck Seating

This outdoor deck area offers a cozy spot for relaxation or entertaining, featuring a set of high-back bar stools around a compact, circular table. A vibrant blue umbrella provides shade and a pop of color against the neutral tones of the beige siding and white railing. The flooring is a warm, reddish-brown wood composite that adds a natural, inviting feel. The deck overlooks an expansive, lush green lawn dotted with mature trees, creating a serene landscape view. The white railing encloses the deck while complementing the house exterior, blending comfort and nature seamlessly.
Covered Patio Seating Area

This inviting covered patio offers a tranquil outdoor dining space with a rectangular glass-top table and four metal-frame chairs featuring mesh backs and seats in a neutral tone. The patio floor is a warm-toned concrete that complements the soft beige siding of the home. The ceiling is finished with white corrugated metal panels, providing a modern yet practical cover overhead, along with a decorative hanging lantern-style light in the center. Two vibrant hanging flower baskets add pops of color, while the expansive green lawn and mature trees surrounding the area create a serene, park-like atmosphere perfect for relaxing or entertaining.
Backyard view

This outdoor perspective showcases the rear elevation of a traditional two-story home featuring cream-colored horizontal siding and a dark shingled roof. The layout presents an elevated deck accessible by a centered staircase, with seating shaded by a blue umbrella, offering a cozy spot for relaxation or outdoor dining. Below the deck, a covered patio area contains additional seating, partially enclosed by supporting pillars. Large windows accentuate the upper floors, allowing natural light to fill the interior. The surrounding green lawn is lush and expansive, bordered by mature trees that create a serene, private backyard environment.
Listing Agent: Danielle Robinson of F.C. Tucker Company via Zillow