
A modern 4 bedroom, 4 bathroom townhouse with 1,900 sq ft of interior space is located at 2020 Walnut St Unit 2018, Philadelphia, PA 19103. This interior row/townhouse layout offers multi level living in the heart of the city, with bay windows, private entries, and thoughtfully designed spaces. Its prime Rittenhouse Square location brings you close to top restaurants, shops, and cultural hotspots. Listed at $875,000, it’s a rare blend of urban convenience and well planned functionality in one of Philadelphia’s most sought-after neighborhoods.
1. Contemporary High-Rise Entrance with Urban Charm

Nested along a vibrant city street, the door to Wanamaker House at 2020 is sleek yet inviting. A broad canopy with crisp lines offers shelter as residents enter the building through smooth glass sliding doors. The pale cream-colored walls on either side of the entrance radiate softly, with unadorned signage that softly states the building’s name and address. A custom mat bearing the building number and name provides a sophisticated finish, while upraised planters filled with freshly trimmed greenery and seasonal blooms provide a touch of nature amidst the city landscape. The architectural touches of the outside, such as the cantilevered bay windows and dark brick façade, foreshadow a contemporary yet earthy residential environment above.
2. where is Philadelphia?

Situated between major Northeastern cities, Philadelphia has the excitement of a large city with the hospitality of a tight knit community. It’s famous for its deep historical heritage, thriving arts scene, and multicultural food scene imagine cobblestone streets in Old City, murals covering South Philly, and food trucks offering everything from cheesesteaks to vegan soul food. Public transportation is good, and its close proximity to New York and Washington, D.C. makes it easy to make weekend outings. Whether visiting Fairmount Park or watching a game at Citizens Bank Park, Philly effortlessly pairs tradition and city living.
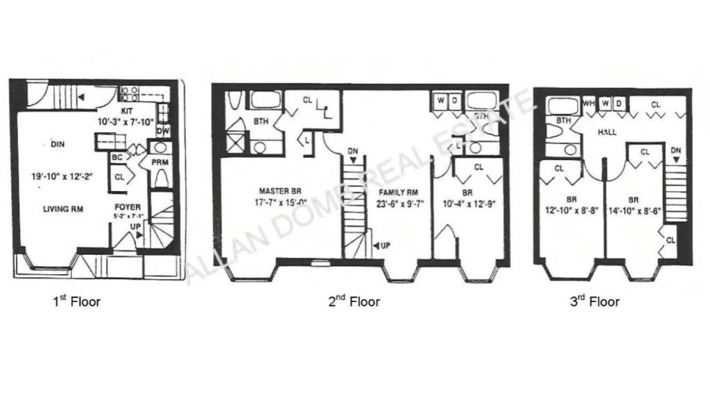
3. floor plans

Home has expansive first floor living and dining space, beautifully designed kitchen, and convenient powder room. On the second floor, there is private second floor with huge master bedroom with its own bathroom, versatile family room, and second bedroom and bathroom. Third floor has two additional bedrooms, full bath, washer/dryer, and plenty of storage throughout.
4. Open-Concept Living with Urban Charm

Stepping into the main living space, you’re greeted by rich hardwood floors and a flood of natural light from the corner window nook, which doubles as an airy dining area overlooking the street. The flow between the living room and dining zone makes it ideal for relaxed entertaining or quiet evenings in. Bright white walls, recessed lighting, and streamlined furniture ensure the aesthetic remains crisp and contemporary, while considerate details such as the wall mirror and globe inject warmth and character. Hidden around the corner is a small staircase that quietly invites you to come up and see what’s above.
5. Skyline Social Lounge

Overlaid with floor to ceiling windows, filling the high rise lounge with natural light, is a sophisticated but relaxed environment ideal for informal socializing or solitary relaxation. Soft green ottomans provide a fun contrast to gray upholstered armchairs and sofas, which are set around minimalist circular tables. Wall art provides an organic element, reinforcing the understated textures of the room. A rounded table and central chairs tuck into the back corner, perfect for a peaceful game night or spontaneous meeting. Light wood flooring and paneled walls add warmth to the space without dominating the cool toned color scheme, and recessed lighting adds a polished, modern feel to the room.
6. Compact Contemporary Kitchen

Efficiently laid out and polished to perfection, this U shaped kitchen makes smart use of every inch. White shaker cabinets keep the space feeling open and airy, while the cool toned glass tile backsplash adds texture and depth. Stainless steel appliances, including a French door fridge, built in microwave, and sleek oven, provide a modern touch and mirror the subtle gray in the backsplash. A niche above the sink doubles as a stylish display shelf, bringing personality to the otherwise minimal space. Warm wood floors ground the room, lending contrast and a touch of coziness to the crisp design.
7. Compact Coffee Bar Kitchenette

Snug and cleverly fit into a hall alcove, this small kitchenette overachieves in both form and function. Matte finish espresso cabinetry makes a dramatic pop against the crisp white walls and doors, and the stacked stone tile backsplash provides just a touch of texture without overwhelming the area. A high gloss undercounter drink fridge and spartan configuration with kettle and Bluetooth speaker imply that this nook doubles as a morning coffee bar or evening wine bar. Warm cherry finished hardwood floors unify the entire room with a sheened, welcoming ambiance.
8. Corner Dining with Urban Views

Nestled into a sunny corner bounded by floor to ceiling windows, the dining space is simply chic and welcoming. A rich wood table centered with white Eames style chairs provides crisp, mid century appeal, and the wraparound windows allow in gentle daylight and city street glances. The warm cherry colored flooring brings in warmth and sophistication, drawing the eye naturally to the stairs and hallway mirror that further open up the room. It’s a perfect place for relaxed morning coffees or cozy evening dinners, all with a front row view of the city just beyond.
9. Rooftop Conference room with a View

A chic meeting area enjoys panoramic views of the rooftop from floor to ceiling windows. The mesh backed chairs surround the long table, which provides a sleek, minimalist design for team meetings or brainstorming workshops. Geometric pendant lighting above contributes a modern nuance without dominating the room. An open-air patio with lounge seating and planters just outside the glass encourages fresh-air breaks and casual conversation. The smooth transition between indoor efficiency and outdoor serenity makes this room both professional and invigorating.
10. Contemporary Workspace with City Views

A modern synthesis of function and style, this office has smooth lines, monochromatic shades, and more than a dash of sunlight from large windows opening onto panoramic city views. Seated at a long, table style conference center are minimalist desks, ideal for teamwork or immersion. Built ins along the back wall provide solitary workstations complete with trendy pendants, topped by a three in one printer in its own alcove, ready to do its job. Subtle fabrics in the rug and wall surfaces provide visual detail without overwhelming the serene, businesslike atmosphere in the room.
11. Bright, Minimalist Bathroom

Soft white walls and polished white vanity provide this bathroom with a clean, contemporary appearance, while softer accents such as the grey hand towel and coordinating tiled shower contribute a touch of soft contrast. A glass enclosed walk in shower creates a sleek, expansive feel, accompanied by a wall mounted towel rack and a plain piece of framed art for the perfect touch of personality. Slim yet effective, the design places all the essentials at hand, ranging from the sink side essentials to the tidily stowed away trash can.
12. Marble-Finished Primary Bathroom

Stepping into this primary bathroom feels like entering a boutique spa, where soft lighting and marble finishes create an elegant, calming retreat. Dual under mount sinks stretch along a polished vanity, framed by modern mirrors and chrome fixtures. The spacious glass shower, clad in smooth marble tile, features a subtle bench and built-in shelving. Storage is thoughtfully included with a tall cabinet that blends seamlessly into the white palette, while layered rugs keep things cozy underfoot without disrupting the clean lines of the space.
13. Contemporary Studio Bedroom

Natural light seeps through uncommon window shapes, creating a modern yet inviting atmosphere in this open plan studio bedroom. A richly colored bed with textured throw pillows grounds the sleeping space, while soft armchairs create a casual reading area beside the large corner window. A small workspace fits onto the far side, with shelving that also serves as useful storage and an added touch of personal flair. Sleek lines, gentle fabrics, and dark wood flooring bring the whole room together in a balance of comfort and functionality.
14. Bedroom with Corner Workspace

Nestled discreetly into the corner of the house, this bedroom is peaceful and utilitarian with its minimalist design and warm lighting. A low platform bed with warm, neutral bedding makes a peaceful centerpiece, and the nearby workspace is enhanced by floor to ceiling corner windows that fill the space with light. A narrow mirror rests carelessly against the wall, reflecting the natural light, and one ocean inspired painting brings a splash of color and personality to an otherwise monochromatic scheme.
15. Cozy Bedroom with Urban Views

Clean, minimalist style characterizes this small bedroom where comfort and simplicity reign. The low to the ground bed is set beside the corner window to reap the benefit of a panoramic view of historic city buildings. Soft natural light spills in through sheer roller shades, reflecting off the crisp white walls to create an airy, open feel. Without visible furniture beyond the bed, the room has a serene minimalist style ideal for unwinding.
16. Rooftop Pool with Panoramic City Views

High above city street activity, this rooftop pool is a serene oasis with horizon views in every direction. It is surrounded by a sculpted concrete building that combines urbanity with relaxation and provides a contrasting setting for leisure or lounging. Sun beds run along the edge for catching some rays in the open air, and pops of color provided by planters bring a burst of nature’s freshness. It’s a unique combination of privacy and openness, ideal for relaxing with the city at your doorstep.
Listing Agent – Allan Domb @ Allan Domb Real Estate via realtor.com