
Welcome to a one-of-a-kind architectural gem located in the prestigious North Beverly neighborhood of Chicago, Illinois. This historic mid-century modern home was designed in 1949 by the renowned Chicago architect S. Richard Klarich as his personal family estate. The residence boasts 5 bedrooms and 3.5 bathrooms, sitting proudly on a rare oversized lot that enhances its charm and character. Inside, you will find elegant crown molding and beautifully preserved original parquet flooring, which highlight the exceptional craftsmanship throughout. The home features an open and intentional layout ideal for both entertaining and quiet evenings, with a seamless flow between the chef’s kitchen, dining area, and inviting living room. Priced at $850,000, this home is more than just a residence.
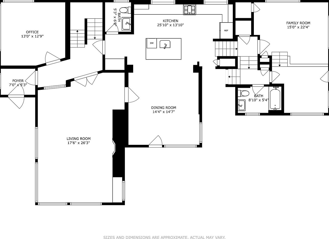
Main floor plan

This layout features a spacious living room measuring 17’6″ by 26’3″ with ample wall space for furniture and large windows providing natural light. Adjacent is a formal dining room, 14’4″ by 14’7″, perfect for gatherings. The kitchen, at 25’10” by 13’10”, hosts a central island with a sink and dishwasher, alongside a fridge nook. A compact bath and an office are situated near the entry foyer, which measures 7’0″ by 5’3″. The family room, at 15’0″ by 22’4″, includes a nearby bathroom with a bathtub, highlighting functional flow and distinct living zones within the home.
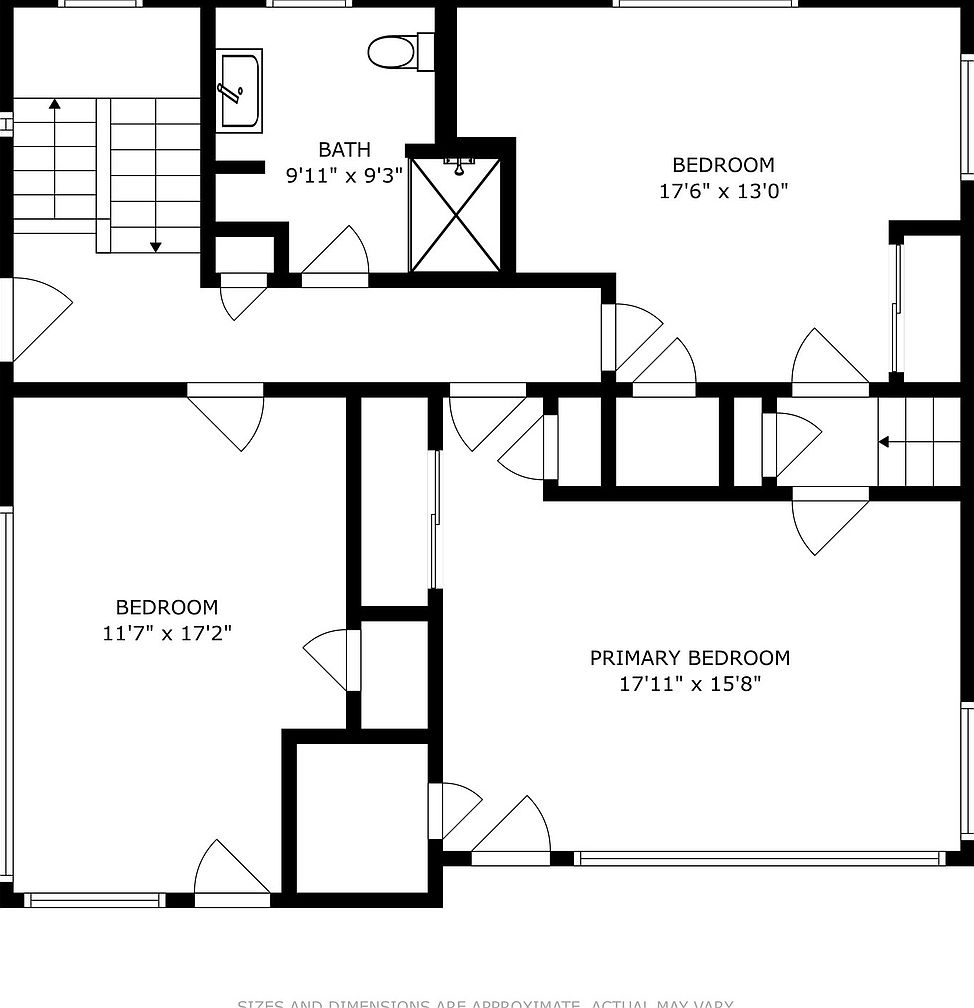
Second Floor Layout

This floor plan reveals a thoughtfully arranged second story featuring three bedrooms and a full bathroom. The primary bedroom, spacious at nearly 18 by 16 feet, is located at the lower right corner, offering ample room for a suite setup. Adjacent to it are two additional bedrooms, one notably larger at 11’7″ by 17’2″ and the other measuring 17’6″ by 13′. The centrally placed bath includes both a sink and a shower enclosure, optimized for comfort and practicality. Multiple doors and closets are strategically positioned to maximize flow and storage, with staircases on both sides facilitating easy access between floors.
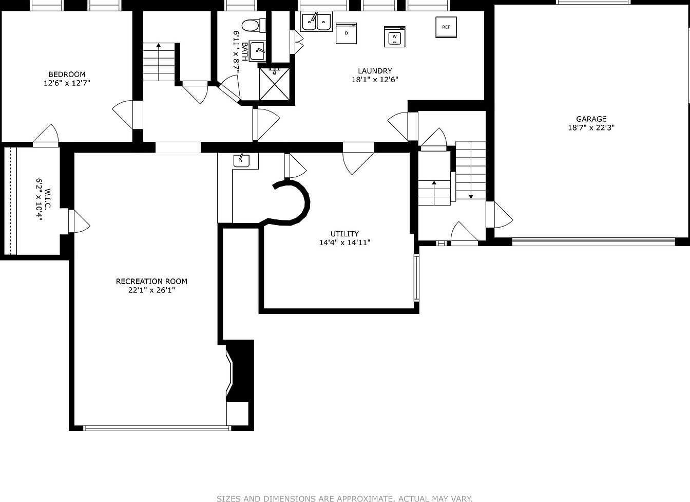
Basement Floor Plan

The basement layout includes a spacious recreation room measuring 22’1″ by 26’1″, adjacent to a walk-in closet connected to a bedroom sized at 12’6″ by 12’7″. Near the bedroom, there’s a compact bathroom with a shower. The large laundry room, measuring 18’1″ by 12’6″, is equipped with a washer, dryer, sink, and refrigerator. A utility room occupies a central position with access to hallways and stairs. The garage on this level measures 18’7″ by 22’3″ and connects internally through the stairwell area. The layout maximizes practical living and storage space.
Living Room

This corner living room features a warm and inviting ambiance enhanced by large wood-framed windows that flood the space with natural light and offer lush green views. A rich, brown leather sectional sofa anchors the seating area, complemented by colorful and patterned throw pillows adding a touch of vibrancy. Two plush, retro-style mustard armchairs set by the window create a cozy nook. The floor is adorned with a traditional Persian-style rug in deep red and blue hues, contrasting with the parquet wood flooring. A minimalist glass coffee table centers the arrangement, while a sleek stone fireplace with a mounted TV above provides a modern, functional focal point. Green plants add a fresh, natural element to the otherwise warm-toned, stylishly mid-century decor.
Modern Kitchen Island

This kitchen features a large central island with a smooth white countertop that contrasts beautifully with rich wooden cabinetry below. Four sleek black bar stools line one side of the island, creating an inviting seating area. The faucet has a modern, industrial design with a black finish, complementing the two striking black pendant lights hanging above. Walls are lined with geometric-patterned white tiles adding texture and visual interest. Two windows with wooden frames bring natural light into the space, while open wooden shelves display decorative accents and storage. Hardwood floors add warmth and cohesiveness to the design.
Dining Room Ambiance

This dining area is designed with a mid-century modern flair, highlighted by a sturdy wooden table surrounded by six matching chairs with black upholstered seats. The natural wood flooring with a herringbone pattern adds warmth and texture, while a geometrically patterned rug anchors the space. Light gray walls create a neutral backdrop, framed by rich wood trims around the window, doorway, and baseboards. A contemporary brass chandelier with spherical bulbs hangs overhead, offering a stylish focal point. The room captures ample natural light from a large window and geometric glass-paneled sliding doors, which open into an adjoining living area. A vintage audio console with large speakers and a globe add subtle character, making the room both functional and inviting.
Living Room Details

This cozy living room features rich wood-paneled walls and a warm parquet floor that harmonize with the natural wooden stair railings and trim. A large grey sectional sofa dominates the space, accented by colorful geometric pillows that add a touch of contemporary style. The room is anchored by a round glass coffee table with dark wood legs and a patterned area rug in muted blues and soft peaches, complementing the earthy tones. Large windows with sheer white curtains and heavier grey drapes allow a flood of natural light, highlighting the inviting and well-defined seating area. The raised section beyond the wooden half-wall includes windows and a ceiling fan, enhancing the layered layout and comfortable atmosphere.
Master Bedroom Corner

This bright master bedroom corner features a large bed with a crisp white comforter and two muted pink pillows, positioned on a bold black-and-white rug with abstract patterns, creating a focal point against the warm wood parquet flooring. Floor-to-ceiling windows with natural wooden frames line two walls, welcoming abundant natural light and offering verdant views. Light beige curtains add softness and privacy when drawn. A mid-century style wooden dresser with art pieces and a small lantern lamp adds a vintage charm. Neutral, earth-toned hues, minimal décor, and natural textures blend for a relaxing, modern atmosphere.
Cozy Bedroom Details

This intimate bedroom features a warm and inviting space with natural wood accents on window frames and lower wall panels, complemented by a rich parquet floor. Soft beige curtains frame large windows that allow abundant natural light and views of lush greenery outside. The bed is dressed in calming sage green bedding, adding a subtle touch of color. A vibrant Persian-style rug with intricate geometric patterns in red, navy, and gold highlights the room’s center, enhancing the overall warmth. A framed poster and a small side table with a wall-mounted lamp bring personality and functionality to the room.
Bedroom Corner Detailing

This cozy bedroom corner features warm wood parquet flooring paired with soft white walls that brighten the space. A large picture window framed in natural wood welcomes ample daylight and offers lush greenery views, subtly softened by sheer white curtains. The space contains a beige upholstered chair next to a modern black side table adorned with a potted plant and decorative camera, emphasizing simplicity. A sleek black chest of drawers adds contrast below a horizontally-set window with framed artworks, while a ceiling fan with dark wood blades complements the natural and understated aesthetic throughout the room.
Modern Bathroom Details

This bathroom features a sleek, streamlined design with a neutral color palette that combines soft gray walls and dark hexagonal floor tiles, adding depth and texture. The vanity presents a wood-grain finish with modern drawer hardware, topped by a clean white countertop and a contemporary chrome faucet. Above the vanity, a large round mirror with a thin black frame enhances the space, complemented by a minimalist pendant light with a frosted glass shade. A window with natural wood trim allows natural light to brighten the room, adding warmth and balance to the overall modern aesthetic.
Basement Lounge Area

This cozy basement lounge features a warm and earthy color palette dominated by terracotta floor tiles and textured brick walls, creating a rustic yet inviting atmosphere. A large gray sectional sofa frames a striking black square coffee table centered on a neutral rug, anchoring the seating area. The space incorporates wood paneling on one wall, contributing to the retro aesthetic, with a built-in narrow shelf beneath it. Three wooden bar stools with blue cushioned seats line a serving window that opens to an adjacent room, enhancing social interaction. Ceiling lighting combines modern recessed fixtures and a wood-framed semi-flush mount, providing balanced illumination throughout the space.
Kitchen Pass-Through Counter

This cozy kitchen pass-through counter features a warm terracotta brick surround and a wooden-framed opening with folding shutters, allowing an open connection between the kitchen and the adjacent room. The countertop surface is a smooth, glossy orange-red, complemented by three cushioned bar stools with light blue upholstery and natural wooden legs, adding a casual yet inviting vibe. Inside the kitchen, white rounded walls contrast the rich wood door and shelf, which holds a collection of glassware and beverages. The design blends rustic brick, natural wood, and soft pastel tones for a charming, retro-modern aesthetic.
Cozy Bedroom Retreat

This bedroom features a mid-century modern vibe with an inviting orange upholstered platform bed as the central focus, complemented by matching orange pillows. The walls have a two-tone design: the lower half is finished with white brick-textured paneling, while the upper portion is painted in a warm charcoal gray, creating depth and contrast. Light hardwood flooring adds warmth beneath a subtle, fringed rug. Two small windows provide natural light above the bed. A sleek, minimalist sideboard with muted beige and wood tones sits under a wall-mounted flat-screen TV. A potted plant and soft lighting from bedside lamps enhance the room’s cozy atmosphere.
Bathroom Details

This bathroom features a compact yet functional layout with a soft green wall color that adds a calming and fresh atmosphere. The space includes a white toilet positioned under a moderately sized wooden-framed window that allows for natural light while maintaining privacy. Adjacent is a modern vanity with light gray cabinetry topped with a white countertop and a sleek, silver faucet. A large, mirrored medicine cabinet above the sink offers storage and reflects light. The shower is tiled in white with a walk-in design, equipped with a handheld showerhead on a flexible hose, complementing the clean and minimalist aesthetic. The bathroom floor uses dark wood-look tiles, adding contrast and warmth to the overall bright and airy design.
Outdoor Patio with Built-In Grill

This cozy outdoor patio space is designed for relaxed dining and entertaining. It features a sleek, black metal dining table paired with four matching chairs that have light beige, mesh-style seats and backs, offering a balance of comfort and durability. The brick walls add warm, earthy tones, while a built-in brick grill with a stone ledge serves as the focal point for outdoor cooking. Black-framed windows and a door provide contrast and a modern touch, and the overhanging black roof offers shelter. Mature greenery and neighborhood views complete this inviting alfresco area.
Backyard Lawn and Garden

This spacious backyard features a lush, well-maintained green lawn bordered by a variety of shrubs and small trees, adding privacy and natural beauty to the area. A concrete pathway runs along the left side beside the home’s exterior, providing functional access to the yard. The wooden fence surrounding the garden offers a classic and secure boundary, complemented by carefully arranged greenery in different shades of green and a touch of yellow foliage. Overhead, utility lines stretch across a partly cloudy, bright blue sky, contributing to a suburban outdoor ambiance perfect for relaxation or play.
Want to see more from Remodr?

Drop a comment below, share this with your friends and family, and don’t forget to follow us for more fresh ideas, updates, tips, and home trends.
Listing Agent: Frankie DaPonte of @properties Christie’s International Real Estate via Zillow