
This beautiful home, located in the highly desirable Wynfield subdivision in Huntersville, NC, presents a classic architectural style characterized by its stately brick exterior, symmetrical façade, and grand columns framing the entryway. Built with timeless appeal, the house offers over 3,600 square feet of living space, featuring 3 bedrooms, 2.5 baths, an office, and a loft, providing plenty of room for comfortable family living and personal use. The home has undergone several thoughtful updates and renovations over the years to maintain and enhance its charm and functionality. These include a new roof with 50-year shingles installed in 2022, brand-new kitchen appliances added in 2024, granite countertops installed in 2016, and stunning marble flooring in the kitchen and foyer also from 2016. Additional improvements include modern tiled bathrooms, updated carpets, improved insulation, vinyl siding, and upgraded sinks. Offered at $650,000, the property is a fantastic opportunity with a seller credit of $25,000 available with an acceptable offer, which can be applied toward cosmetic updates, rate buy down, or closing costs. The home sits on a well-maintained plot, complemented by manicured landscaping and access to excellent community amenities such as a clubhouse, pool, playground, sidewalks, and tennis courts. Conveniently close to top shopping, dining, and an easy commute to Charlotte, this residence is a blank canvas ready for your personal touch.
main level Floor Plan

This detailed floor plan highlights a spacious main living level with a gross living area of 3,655 sq ft. The layout includes a large family room measuring 19’6″ by 15’7″, adjacent to a breakfast nook and a kitchen with an attached pantry for ample storage. A dining area and living room provide elegant open spaces ideal for gatherings. A conveniently placed laundry room connects to the garage, sized at 20’5″ by 27’2″. A deck extends from the family room, offering outdoor living space. The foyer and hallways provide practical flow through the home, with a small bath easily accessible from multiple rooms.
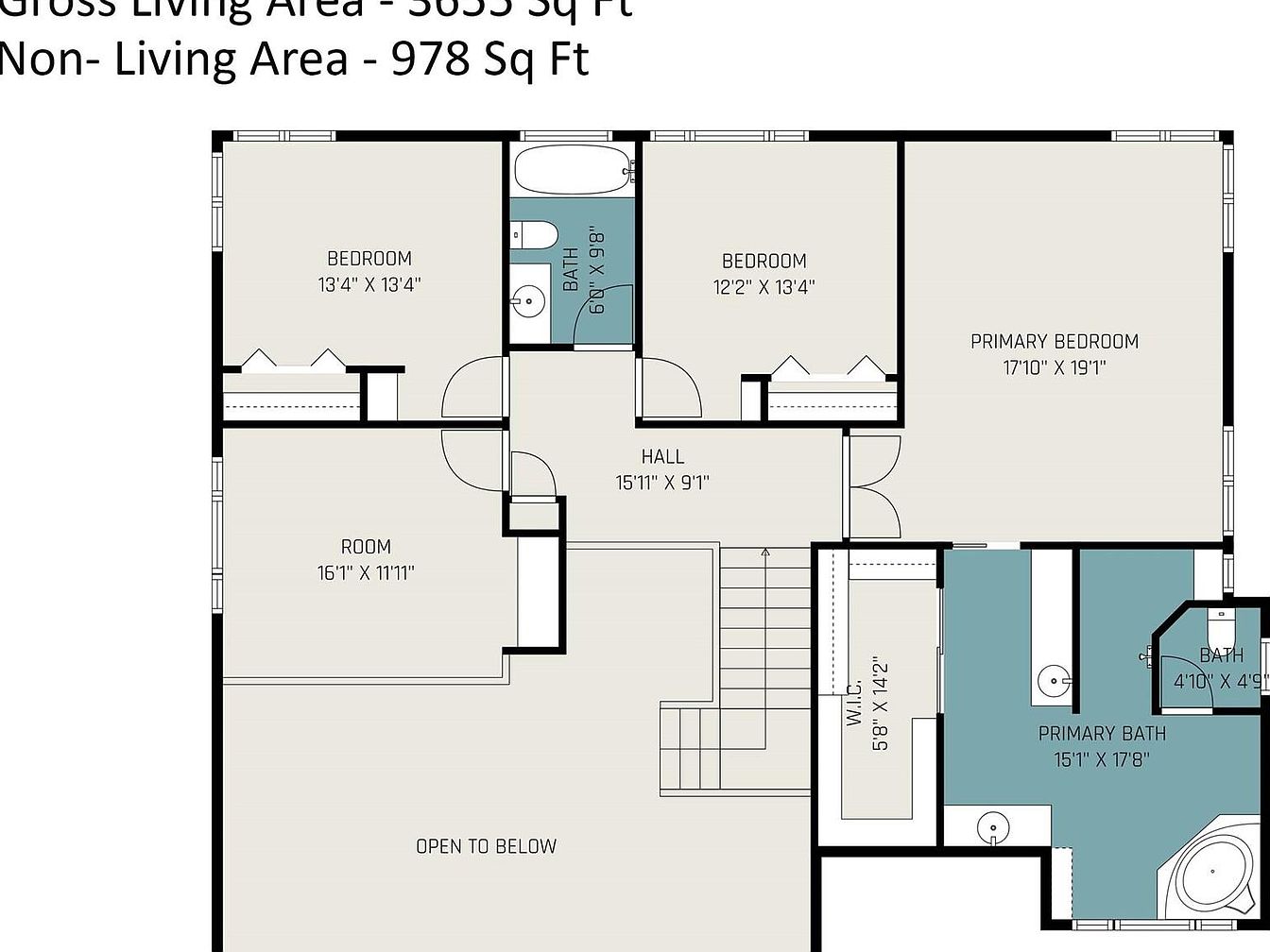
Upper level floor plan

This upper floor presents a thoughtful and spacious layout featuring three bedrooms and two bathrooms. The primary bedroom, notably the largest at 17’10” by 19’1”, connects directly to an expansive primary bath and walk-in closet, providing a private retreat. Two additional bedrooms share a conveniently located bathroom. A hall measuring 15’11” by 9’1” links all rooms and stairs descending to the open area below, which enhances the sense of openness. The layout balances communal and private spaces effectively, blending functionality with comfort for family living.
open- concept living

This space presents a welcoming entryway transitioning into a spacious living area. Polished black and white marble tiles define the foyer, while the living area features light carpeting for a softer feel. Natural wood elements stand out with a classic railing and staircase ascending to an upper floor, adding warmth against white walls. Large windows with blinds invite natural light, enhancing the open and airy layout. A ceiling fan with wooden blades and recessed lighting contribute to a functional yet understated design, balancing traditional architectural details with a neutral color scheme.
Entryway and Living Room View

This area features a two-story entryway with double front doors in dark wood accented by oval glass inserts, creating a welcoming focal point. The floor by the entrance is finished with a polished dark marble tile in a checkerboard pattern with white diamond accents, contrasting sharply with the beige carpet that covers the adjacent living space and stairs. The natural wood banister of the staircase introduces warmth to the space. Two sets of windows with white blinds allow natural light to filter in, brightening the white walls. A classic ceiling fan with wooden blades hangs from the high ceiling, enhancing the open, airy feel.
Dining Area

This dining space is characterized by a large, rectangular marble table with a sturdy central base, creating a clean and modern focal point. The surrounding walls are painted in soft neutral tones, complemented by a beige carpet that adds warmth. A distinctive pendant light with a rustic, metal and wood design hangs centrally, adding a unique vintage touch to the otherwise minimalist room. Mirror panels on one wall significantly enlarge the perception of space and reflect light throughout. The wooden banister stairs with classic spindles peek into the room, blending traditional and modern elements.
Kitchen

This spacious kitchen features a classic U-shaped layout with light wood cabinetry that adds warmth against the cool-toned granite countertops. The backsplash incorporates a mosaic tile design in neutral browns and beiges, harmonizing with the granite and wood tones. Stainless steel double ovens are built into the cabinetry, providing modern functionality without disrupting the aesthetic flow. The floor is adorned with patterned marble tiles in grey and white, complementing the overall light and earthy palette. Large windows bring abundant natural light, while a coffered ceiling with grid lighting creates a soft and even illumination. The kitchen offers an inviting balance of traditional charm and contemporary amenities.
Living Room with Fireplace

This spacious living room features a warm, inviting fireplace as its focal point. The fireplace is accented with stacked stone and capped with a light wooden mantel, complemented by a large mirror above that enhances natural light. Neutral beige carpeting covers the floor, contributing to a cozy atmosphere. Off-white walls create a clean, fresh backdrop, while contrasting black trim around the double glass doors and windows adds a modern edge. Three similarly styled tables with stone tops and black twisted legs provide subtle decorative elements, highlighting the room’s understated elegance and functional potential.
Bedroom

This spacious bedroom corner features a high vaulted ceiling with a ceiling fan, enhancing air circulation and brightness. The walls are painted a crisp white, accentuating natural light from three large windows with black frames that provide a modern contrast and frame serene views of the wooded outdoor surroundings. The beige carpet flooring adds warmth and softness to the space, maintaining a clean and neutral aesthetic perfect for personalization. Dark baseboards complement the window frames, defining the room’s edges and balancing the light walls, creating a fresh and inviting atmosphere ideal for rest and relaxation.
Master Bathroom

This spacious master bathroom features a dual vanity setup with natural wood cabinetry finished in a light stain, providing ample storage. The countertops are striking granite with a warm, earthy palette of browns and golds, complemented by two unique vessel sinks in a dark, glossy finish and matching black faucets. The flooring is composed of large stone tiles in varying shades of gray, green, and tan, enhancing the natural, organic feel. Large mirrors extend across the walls, reflecting light from the overhead recessed fluorescent lighting panels. A window with wooden shutter accents in the background brings in natural light, contributing to the room’s airy and calm atmosphere.
Bathroom Jacuzzi Area

This spa-inspired bathroom features a spacious corner jacuzzi tub surrounded by earthy, multicolored stone tiles that cover both the floor and halfway up the walls, creating a seamless natural aesthetic. The mix of grays, browns, and rust tones in the stone adds texture and warmth, while the upper walls contrast in a smooth, white finish. An arched window with white blinds allows natural light to softly brighten the space. Dark trim around the doorways and functional elements like towel bars and ventilation add definition. The angled ceiling light creates a cozy ambiance for relaxation.
Upstairs Loft Area

This upstairs loft features a spacious open layout with neutral-toned carpeting, providing a soft and warm foundation. The walls are painted a crisp white, enhanced by black baseboards that add a subtle modern contrast. Large windows with horizontal blinds allow natural light to fill the space while offering privacy control. A wooden railing with a smooth handrail lines the loft’s overlook, partially revealing a ceiling fan in the room below. Recessed lighting fixtures in the textured white ceiling illuminate the area, creating a bright, airy ambiance perfect for a versatile living or office space.
Home Office Nook

This home office nook blends functionality with subtle style, featuring built-in shelving and storage in a light wood finish that complements the beige carpet. The shelving unit includes a small work surface and multiple open shelves for organizing books or decor, while a set of tall cabinets with glass doors offer additional display and concealed storage. The walls are painted a soft off-white, contrasted by darker trim around the doorway and baseboards, lending depth to the space. Recessed ceiling lights provide ample illumination, creating a practical and welcoming work corner within the home.
Bathroom

This bathroom features a warm, earthy color palette with extensive use of tan and brown stone tiles that cover the walls and floor, creating a cohesive and natural look. The vanity is topped with a granite countertop exhibiting a mix of beige, brown, and cream colors, paired with a unique vessel sink that has a metallic, iridescent finish. Black matte faucets and hardware provide a modern contrast to the wooden cabinetry below. The white toilet sits beside a bathtub-shower combo enclosed by sliding glass doors with metal trim. A large mirror above the sink amplifies the light from the recessed ceiling panels, offering a bright and inviting atmosphere.
Laundry Room

This laundry room features a practical layout with light wood cabinets both above and below the countertop, offering ample storage space. The neutral beige tiled floor adds warmth and complements the off-white walls, creating a bright, clean atmosphere. A built-in utility sink is integrated into the lower cabinetry, providing a convenient space for handwashing or pre-soaking clothes. The white door with dark trim and matching baseboards adds a subtle contrast, while a fluorescent ceiling light ensures the room is well-illuminated. The overall aesthetic is functional yet inviting, ideal for household chores.
Backyard Deck

This spacious backyard deck features warm-toned wooden flooring complemented by sturdy black railing that adds a touch of modern contrast. Positioned adjacent to the house’s brick exterior, the deck provides an inviting outdoor area perfect for gatherings and relaxation. A covered grill sits at the center, highlighting the space’s function for outdoor cooking and entertaining. Beyond the deck, a wooded backyard area with tall, leafless trees creates a natural, serene view, enhancing privacy while mingling with the neighboring homes visible in the distance. The overall design offers a seamless blend of nature with functional outdoor living.
Listing Agent: Jon House of Allen Tate Mooresville/Lake Norman via Zillow