
Nestled in the serene landscape of Washington, CT, this charming single-family home at 16 Orchard Ln offers a harmonious blend of classic design and modern comfort. Spanning 2,143 square feet, the residence features three spacious bedrooms and two well-appointed bathrooms. Set on a generous 2.71-acre lot, the property provides ample outdoor space for recreation and relaxation. Priced at $1,995,000, this home presents a unique opportunity to experience tranquil living in a picturesque setting
1. Modern Home with Natural Elegance

This striking mid-century modern home showcases a dynamic blend of natural stone, wood, and expansive glass. Featuring a gently sloped roofline with exposed beams, it invites natural light through floor-to-ceiling windows and glass doors, seamlessly connecting interior spaces with the lush surroundings. A stone chimney adds rustic charm, while the wraparound deck provides a perfect spot for outdoor dining and enjoying the serene, tree-filled landscape.
2. Where is Washington?

Washington, CT is a picturesque town nestled in Litchfield County in northwestern Connecticut. Known for its rolling hills, historic charm, and vibrant arts scene, it’s a favorite retreat for those seeking tranquility and natural beauty. Surrounded by nature preserves, hiking trails, and farmland, it offers a peaceful lifestyle just two hours from New York City. Notable features include the Institute for American Indian Studies, Steep Rock Preserve, and quaint shops and eateries in the charming town center.
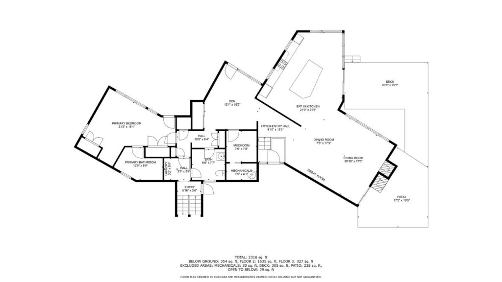
3. First Floor layout

The first floor of this home features a spacious open-concept layout designed for comfort and flow. The great room connects seamlessly to the living and dining areas, which open to a large deck and patio, perfect for indoor-outdoor living. A modern eat-in kitchen serves as the heart of the home, while a private wing houses the primary bedroom with an en-suite bath. Additional spaces include a den, mudroom, laundry, and two full bathrooms, offering both functionality and flexible living.
4. Second Floor layout

The second floor of this home features two well-sized bedrooms, offering comfort and privacy ideal for family or guests. A central hall connects the rooms and overlooks the level below, adding a sense of openness to the layout. Each bedroom enjoys natural light and convenient access to the main living areas via a nearby staircase. This upper-level setup is perfect for creating a peaceful retreat, home office, or flexible space to suit a variety of needs.
5. Basement layout

The basement layout features a generous recreation room designed for versatility and comfort. Ideal for use as a game room, home theater, or fitness area, the space is well-lit with natural light from multiple windows and includes easy stair access to the main living areas. Its open design allows for flexible furniture arrangements and customization, making it a perfect extension of the home’s living and entertaining spaces.
6. Rustic Living room

This inviting living space blends rustic charm with modern flair, featuring a striking floor-to-ceiling stone fireplace that anchors the room. Exposed wood beams and a warm wood-paneled ceiling add natural texture and character, while expansive windows and a glass door flood the space with light and forest views. Eclectic furnishings and colorful accents give the room a cozy, artistic vibe, making it the perfect retreat for relaxing or entertaining in style.
7. Stylish Nook with Outdoor Connection

This cozy sitting nook exudes charm with its blend of natural materials and mid-century modern flair. Floor-to-ceiling windows frame serene views of the outdoors, while a stone accent wall and wood-paneled ceiling add warmth and texture. Rattan furniture with plush cushions invites relaxation, and playful décor elements create a laid-back, welcoming vibe. It’s the perfect corner for reading, sipping coffee, or soaking in the peaceful natural surroundings.
8. Warm Wood and Stone Kitchen

This beautifully designed kitchen blends natural materials with modern functionality. Rich wood cabinetry and a textured stone wall add rustic warmth, while sleek countertops and stainless steel appliances bring a contemporary edge. The spacious island doubles as a prep space and casual dining area, accented by stylish pendant lighting. Exposed beams and wood-paneled ceilings create a warm, inviting atmosphere that connects effortlessly with the surrounding living space.
9. Dining Space with Natural Light

This stunning dining area combines organic textures with panoramic views, creating a warm and inviting space. Surrounded by floor-to-ceiling glass, it opens directly to a deck and scenic landscape beyond. Natural light pours in, highlighting the wood ceilings, exposed beams, and stone accents. The seamless flow from kitchen to dining and living areas makes it perfect for entertaining, while cozy furnishings and greenery add to its relaxed, modern-rustic charm.
10. Serene Bedroom with Forest Views

This serene bedroom blends natural warmth with modern simplicity. Exposed wood beams and a wood-paneled ceiling add rustic elegance, while full-height windows flood the space with natural light and wooded views. Neutral tones and minimalist furnishings create a calm, relaxing atmosphere. An en-suite bathroom offers added convenience, making this bedroom a peaceful retreat that connects effortlessly with the natural surroundings just outside.
11. Light-Filled Room with Wood Beams

This cozy bedroom offers a minimalist yet warm design, with exposed wood ceiling beams that add rustic charm. Two large windows bring in abundant natural light and offer peaceful wooded views, creating a serene retreat. Neutral walls and soft-toned carpeting provide a clean, calming backdrop, while thoughtful touches like modern lighting and layered bedding enhance the space’s inviting atmosphere, perfect for rest, relaxation, or a peaceful guest room.
12. Bathroom with Clean Lines

This beautifully designed bathroom combines rustic charm with contemporary finishes. Earth-toned vertical tiles line the walls, complemented by a warm wood ceiling and terrazzo-style flooring. A spacious double vanity with sleek fixtures and ample storage sits beneath two modern mirrors, while a frameless glass shower adds a clean, sophisticated touch. Natural light from the window enhances the serene, spa-like ambiance, making this space both stylish and functional.
13. Contemporary Bathroom with Natural Tones

This modern bathroom offers a clean, minimalist aesthetic with a warm organic twist. Textured green tiles wrap around the lower half of the walls, adding depth and a natural tone. A floating wood vanity with a sleek countertop and under-storage pairs perfectly with the soft lighting and rounded mirror. The glass-enclosed shower features contemporary fixtures, while the terrazzo-style flooring ties the space together, making it both functional and stylish with a spa-like feel.
14. Versatile Lower-Level

This lower-level lounge offers a casual, inviting atmosphere with a touch of industrial style. Exposed wood ceiling beams and polished concrete floors create a raw, modern aesthetic, while built-in bookshelves add function and character. Large, comfortable chaise lounges provide space to relax or read, and natural light streams in through multiple windows. With direct outdoor access, this flexible space is perfect for a cozy retreat, creative studio, or entertainment zone.
15. scenic patio

This outdoor deck offers a serene extension of the home’s modern design, blending wood and glass with the surrounding nature. Framed by tall trees and lush greenery, the deck features a smooth wood surface perfect for outdoor dining or relaxing in the sun. Large windows seamlessly connect the interior living space to the outdoors, allowing natural light to pour in. Ideal for gatherings or peaceful solitude, this space invites you to unwind and enjoy the beauty of the landscape.
Listing agent – Stacey Matthews @ W. Raveis Lifestyles Realty via realtor.com