
This 4-bedroom, 3-bath real estate gem in Lake George offers 3,302 square feet of living space on a sprawling 27.59-acre lot, priced at $874,900. Tucked in a wooded setting just minutes from town, this Colonial features hardwood floors, a cozy family room with wood-burning fireplace, and an eat-in kitchen with island and breakfast bar. Extras include a bonus game room, office, 3-car garage, and whole-house generator. Enjoy private trails, gardens, fruit trees, and stone walls—perfect for outdoor living or future subdivision potential.
1. classic exterior

Nestled in a tranquil wooded setting, this timeless Colonial-style home captivates with its symmetrical façade, crisp white siding, and traditional dormer windows. The expansive layout includes a charming covered entryway and multiple double-hung windows that flood the interior with natural light. Gray shutters and a gabled roofline lend elegant contrast and curb appeal. Surrounded by mature trees and lush landscaping, the home’s serene outdoor environment enhances its sense of privacy and retreat. A true New England-inspired design that blends classic form with quiet forest charm.
2.Where is Lake George?

Lake George is a picturesque town in northeastern New York, nestled in the southern Adirondack Mountains along the shores of the lake that shares its name. With a population of just under 4,000 as of 2025, Lake George is known as a beloved vacation spot and a gem of upstate New York. Often called the “Queen of American Lakes,” the area offers crystal-clear waters, scenic mountain views, and a rich history dating back to the French and Indian War. Popular attractions include Fort William Henry, Million Dollar Beach, and boat cruises on the lake. With its charming small-town feel, seasonal festivals, and abundant outdoor recreation, Lake George is a tranquil yet vibrant community that appeals to both homebuyers and nature lovers alike.
3. Main Floor Layout

This thoughtfully planned main floor blends spaciousness with functionality. At its heart, the kitchen serves as a central hub, complete with a center island and easy access to the breakfast nook, perfect for casual dining. Flanking the kitchen are two expansive living rooms—one ideal for cozy family gatherings, the other perfect for formal entertaining. A separate dining room provides a designated space for larger meals and celebrations. The primary bedroom offers a peaceful retreat, complemented by a conveniently located full bathroom. A generously sized laundry room is tucked away for practicality, and multiple hallways enhance flow and accessibility throughout the home. With a welcoming entry and seamless transitions between rooms, this layout is ideal for both everyday living and hosting guests.
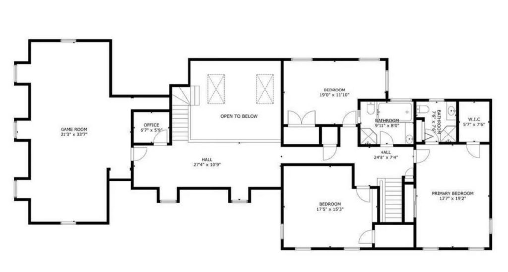
4. Upper Floor Layout

This expansive upper floor is designed to offer both privacy and versatility, perfect for growing families or multi-use needs. The highlight is a vast game room, ideal for entertainment, fitness, or creative pursuits, with multiple entry points enhancing accessibility. Adjacent to it, a compact home office provides a dedicated space for remote work or study. The open-to-below area brings in natural light and visual connection to the main level. Three well-proportioned bedrooms include a luxurious primary suite complete with an en-suite bath and walk-in closet, creating a tranquil retreat.
5. Bright Living Room with Charm

This inviting living room blends classic design with natural elegance, featuring vaulted ceilings and a skylight that fills the space with soft daylight. Centered around a warm brick fireplace with a white wood mantel, the room is perfect for cozy evenings or casual entertaining. Large arched windows frame peaceful forest views while adding architectural interest and enhancing the airy ambiance. A traditional staircase with white spindles and wood handrail adds character, complemented by antique-inspired furnishings and refined detailing throughout. A timeless space that feels both grand and welcoming.
6. Sunlit Sitting Room Retreat

This serene sitting room offers a peaceful blend of elegance and comfort, enhanced by natural light streaming through French doors that open to a wooded view. The space features warm hardwood floors, soft neutral walls, and an inviting layout centered around a modern sectional and vintage-inspired seating. Classic artwork and a soft area rug add a touch of sophistication, while potted plants bring in freshness and life. Ideal for quiet mornings, afternoon reading, or intimate conversation, this room balances charm and functionality with effortless grace.
7. Elegant Dining with Garden Views

This refined dining room offers a classic setting for memorable gatherings, anchored by a stunning crystal chandelier that adds timeless glamour. Crown molding and chair rail detailing enhance the traditional aesthetic, while oversized windows invite in natural light and frame lush views of the surrounding landscape. The warm wood tones of the table and sideboard create a welcoming ambiance, perfectly balanced by neutral walls and soft accents. Ideal for both formal dinners and everyday meals, this space brings together elegance, comfort, and scenic charm.
8. Bright Chef’s Kitchen Hub

This spacious kitchen blends form and function with classic white cabinetry, sleek marble-style countertops, and a central island featuring a built-in gas cooktop. A large picture window bathes the space in natural light, while a ceiling fan ensures year-round comfort. Modern appliances, including a black French-door refrigerator, complement the room’s neutral palette. With an extended breakfast bar and ample storage, this kitchen is perfect for both everyday living and entertaining. The adjoining dining nook and display cabinetry add charm and practicality to this inviting culinary space.
9. Charming Breakfast Nook Overlooking Woods

Start your day in this cozy breakfast nook, where floor-to-ceiling windows bring in serene views of the surrounding forest and abundant natural light. The space features a warm wood dining set under a classic brass chandelier, creating a welcoming spot for coffee, casual meals, or reading. A vintage wall clock and soft leather armchair add character, while white curtains gently frame the peaceful scenery. Seamlessly connected to the kitchen, this nook offers both charm and functionality in a bright, inviting corner of the home.
10. Peaceful Bedroom with Woodland Views

Wake up to nature in this sun-drenched bedroom, where large picture windows frame serene woodland scenery and fill the space with soft, natural light. The room features warm hardwood floors, a deep blue accent rug, and classic furnishings that lend an air of quiet sophistication. A spacious double-door closet offers ample storage, while neutral wall tones create a calm, restful ambiance. Whether relaxing with a book or starting your day with peaceful views, this bedroom is a welcoming retreat that balances comfort and simplicity.
11. Classic Bath with Ample Storage

This bright and functional bathroom combines traditional charm with everyday convenience. A large mirror enhances the sense of space, reflecting light from the soft ivory walls and complementing the crisp white countertop and sink. Gold-tone fixtures and cabinet hardware add a subtle touch of elegance, while the dark wood vanity offers generous storage below. A glass-enclosed shower, built-in shelving, and double-door linen closet complete the layout, making this bath a practical and inviting space for daily routines.
12. Bright and Functional Laundry Room

This sunlit laundry room is designed for practicality and ease, featuring a large window that fills the space with natural light and offers a refreshing view of the garden. Equipped with a full-size washer and dryer, utility sink, and hanging rod for air-drying garments, the room is tailored for efficient daily use. Clean white walls and simple décor create a crisp, tidy atmosphere, while wall-mounted storage keeps essentials close at hand. A well-planned space that makes chores feel less like work.
13. Expansive Primary Bedroom Escape

This oversized primary bedroom offers a calming retreat with its airy layout and soft natural light streaming through multiple large windows. Crisp white walls and hardwood flooring provide a fresh backdrop for traditional furnishings, including a stately wood dresser and vintage-style accent chairs. The room’s generous proportions easily accommodate a king-sized bed and additional seating or storage. Blue valances and sheer curtains frame wooded views, creating a serene and private atmosphere ideal for rest and relaxation. A ceiling fan adds comfort and charm to this elegant, light-filled space.
14. Cozy Bath with Wood Accents

This charming bathroom pairs warmth and functionality with classic design elements. A dark wood vanity provides rich contrast to the soft cream walls and crisp white countertop. Gold-tone fixtures and lighting add a vintage touch, while the large mirror and side sconces ensure a bright, practical space. A window with woodland views brings in natural light, softened by ruffled valances for added charm. Thoughtfully arranged towel bars and a built-in wall mirror complete this inviting and efficient bath.
15. Luxurious Bath with Forest View

This elegant bathroom invites relaxation with a marble-wrapped soaking tub set beneath a wide picture window overlooking serene woodland. Soft natural light brightens the space, complemented by crisp white cabinetry and brushed nickel fixtures. A large vanity with a built-in makeup station offers generous counter space and storage, while dual mirrors and sconce lighting ensure function meets style. Thoughtful decorative accents and framed wall art add warmth, making this bath a peaceful retreat for daily unwinding.
16. Versatile Bedroom with Built-Ins

Ideal for both relaxation and productivity, this spacious bedroom features custom built-in shelving perfect for books, décor, or collectibles. A large wood desk enjoys plenty of natural light from twin windows that overlook the wooded landscape, creating an inspiring workspace. The room includes generous closet storage, a ceiling fan for comfort, and hardwood flooring that adds warmth throughout. With its flexible layout and thoughtful design, this space effortlessly accommodates work, study, and rest in a single cohesive setting.
17. Expansive Bonus Room with Flexibility

This light-filled bonus room offers endless possibilities, from a vibrant game area to a spacious home office or creative studio. Architectural charm comes through in the angled ceilings and dormer-style windows, while hardwood flooring runs throughout the space for a polished look. Currently outfitted with a ping pong table and multiple workstations, the room easily adapts to entertainment, fitness, or focused productivity. With generous proportions and serene forest views, this versatile upper-level retreat is a true extension of the home’s livable charm.
18. Cozy Gaming or Media Nook

Tucked away for privacy, this compact bonus room is perfectly suited for a gaming setup, home office, or focused media space. With sloped ceilings and soft overhead light, it offers a comfortable, distraction-free environment. The layout accommodates a desk or entertainment unit with ease, and there’s space for a gaming chair or cozy seating. Simple yet functional, this niche space is ready to support creativity, play, or productivity in a quiet, dedicated corner of the home.
19. Secluded Estate Near Lake George

Nestled in a canopy of vibrant autumn foliage, this private estate offers unmatched serenity just moments from the shores of Lake George. Surrounded by miles of unspoiled woodland, the property provides breathtaking panoramic views of the lake and the rolling Adirondack Mountains beyond. Whether enjoyed year-round or as a seasonal retreat, this location combines peaceful seclusion with proximity to outdoor adventure, boating, and scenic hiking trails—an extraordinary opportunity to own a piece of nature’s splendor.
Listing Agent – Nabil Eldib @ Davies-Davies & Assoc Real Est via Realtor.com