
This charming custom-built home is a blend of rustic and modern architectural styles, nestled on a spacious 5-acre plot in the serene Willamette Valley, near Junction City, Oregon. Designed for both relaxation and entertainment, the home offers a warm and inviting atmosphere with its dark wood siding and green roof, complementing the natural surroundings. Built with careful attention to detail, it features vaulted ceilings allowing abundant natural light, a chef’s kitchen equipped with a high-end 6-burner Wolf range, granite countertops, and an eat-in bar perfect for gatherings. The residence includes a primary bedroom on the main level and two additional ensuite bedrooms on the lower level, ensuring privacy and comfort for family and guests. Recent improvements include a newer composite roof and radiant floor heating for enhanced comfort throughout the home. Outdoor living spaces are ample, with an upper deck, a lower patio, and a welcoming front porch that overlooks the beautiful landscape. Additional amenities include a large 1000 sq. ft. versatile shop with ductless heating, a tool shed, Generac generator for power security, and convenient RV parking. Priced at $795,000, this unique property offers the best of Oregon’s tranquil countryside living with functional luxury and ample storage space.
Floor Plans

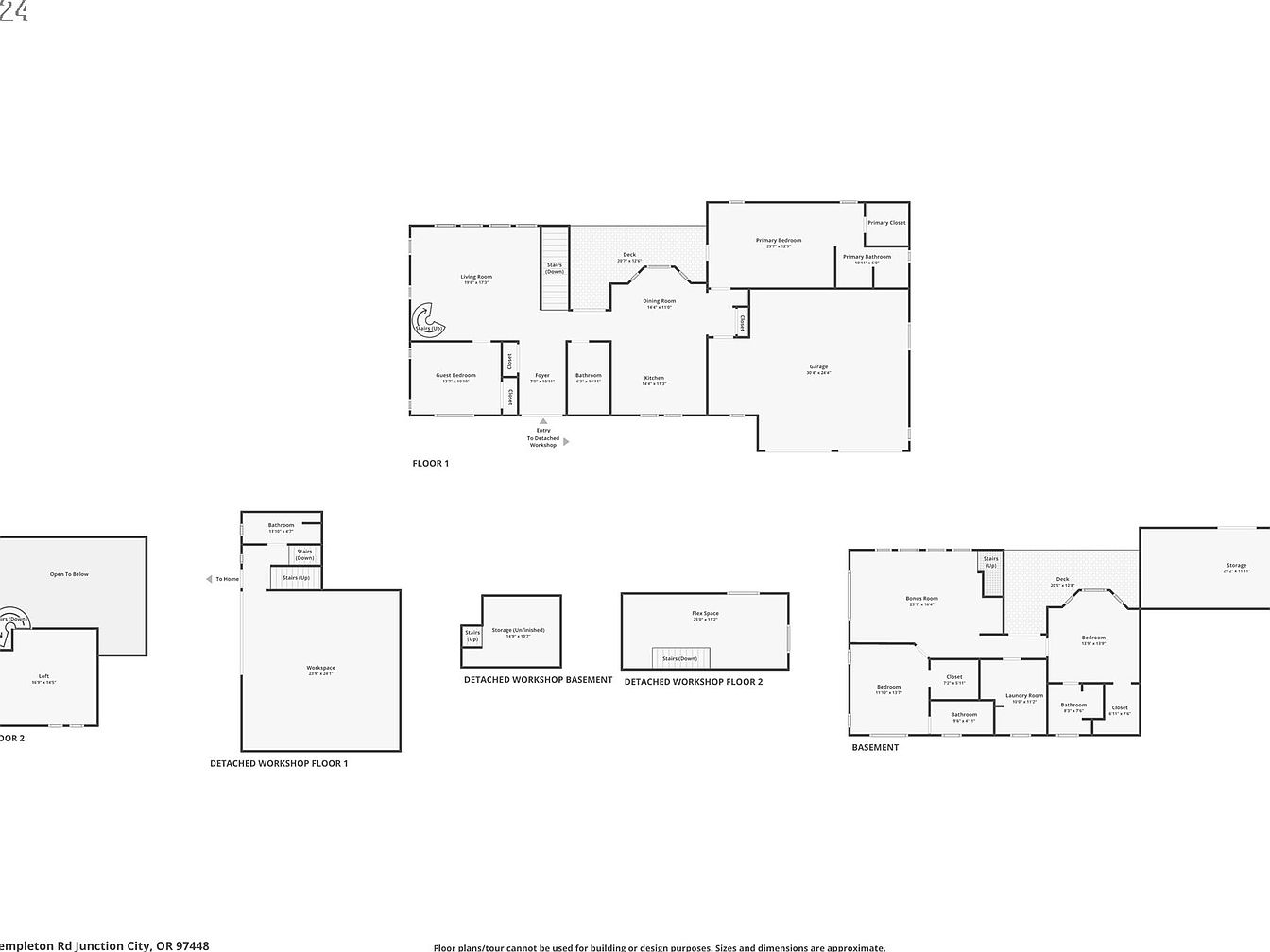
This comprehensive floor plan reveals a multi-level home featuring an open layout on the main floor, including a spacious living room, dining room, kitchen, and guest bedroom. The primary bedroom with an en-suite and closet is positioned for privacy near the garage. The basement houses additional bedrooms, bathrooms, and a laundry room, connected by hallways for convenience. There’s also a detached workshop with three floors, including unfinished storage and a workspace. The upper level boasts a loft area for added flexibility. The layout prioritizes functionality, clear zoning between living and utility spaces, and ample storage.
Entryway and Hall View

The entryway leads into a spacious hallway with high vaulted ceilings that create an airy, open feel. The floor features large, beige-toned tiles that extend throughout the visible space, complementing the natural wood trim around doorways and baseboards. A rustic wooden console table against the white wall adds warmth and farmhouse charm with decorative items and a rectangular mirror above it. Double white doors with glass inserts let in natural light. Off the hallway, a kitchen area with light wood cabinetry and a small breakfast bar with stools is visible, highlighting a casual and welcoming atmosphere.
Living Room with Spiral Staircase

This spacious living area features a striking double-height wall of large, triangular and rectangular windows framed in natural wood, flooding the room with daylight and showcasing lush forest views. The vaulted ceiling and exposed wood beams add rustic charm, harmonizing with the wood-paneled upper walls. A wooden spiral staircase curves upward to an unseen second level, adding architectural interest. Soft gray carpeting offers warmth and texture underfoot, complementing the neutral-toned sofas and armchairs arranged around a simple wooden coffee table. Muted throw pillows and a draped knit blanket enhance comfort, while decorative signage and plants add inviting, homely touches.
Breakfast Nook

This cozy breakfast nook is bathed in natural light from three large windows framed with warm wooden trim, complemented by a skylight overhead. The high ceiling enhances the open, airy feel, while two wrought iron chandeliers add rustic charm and soft illumination. A rectangular wooden dining table with a contrasting dark top and white legs is surrounded by matching chairs, creating an inviting spot for casual meals. The neutral tiled floor extends into an adjacent hallway with a large round wall clock and a peek into a carpeted bedroom, uniting functionality with inviting home warmth.
Kitchen Island and Cabinets

This kitchen features a spacious layout centered on a large island with a dark countertop, perfect for meal prep or casual seating with three white bar stools. Natural wood cabinets with black hardware extend along the walls, adding warmth and rustic charm against crisp white walls. A stainless steel stove with a modern hood is integrated into cabinetry, balancing functionality and style. The tiled floor in neutral tones complements the overall design while two large windows above the sink illuminate the space with natural light, enhancing the open, airy feel.
Loft Bedroom with View

This cozy loft bedroom features a warm, rustic aesthetic dominated by natural wood elements. The vaulted ceiling and one wall are clad in rich pine planks, creating a cabin-like ambiance that contrasts beautifully with the smooth white painted wall. Large geometric windows flood the space with natural light and present a serene view of surrounding trees. The floor is covered in modern gray wood-look vinyl planks, adding a sleek touch to the room. Furnishing includes a white bed with a decorative pillow and a large textured gray bean bag, offering both comfort and casual relaxation. The wooden railing provides safety while preserving the open feel of the loft space.
Cozy Loft Space

This loft area features a charming A-frame ceiling clad in warm, natural wood planks, contrasting softly with crisp white walls that brighten the space. The medium-toned wood flooring complements the ceiling’s warmth, creating a cohesive look. A pair of plush, cushioned chairs invite relaxation on a subtle patterned rug. Storage is functional and playful, with a modular white shelving unit that holds board games and fabric bins, adding a casual, family-friendly touch. Twin windows bring in natural light and a view of the outdoors, while simple wall decor with directional arrows adds personality. A comfortable bed tucked into the right corner completes this cozy retreat.
Bathroom Vanity and Tub

This bathroom features a well-lit vanity area with a large mirror bordered by four white light fixtures, creating a bright atmosphere. The vanity has warm wood cabinetry topped with a speckled granite countertop, integrating natural textures and neutral tones. An undermount sink with a modern black faucet complements the look. The adjacent shower/tub combination has a white surround with subtle curved detailing, paired with a simple cream and gray striped shower curtain. A skylight above adds generous natural light, enhancing the crisp white walls and pale gray tile floor. Decorative touches include greenery and small accent signs, contributing to a cozy yet clean aesthetic.
Cozy Master Bedroom

This master bedroom offers a warm, inviting ambiance with its neutral color palette dominated by soft whites and earthy tones. A rustic wood bed frame and matching nightstand anchor the space, complemented by linens in calming beige and green shades. The plush, textured throw blanket adds a layer of comfort and style. Light filters gently through two tall windows dressed with sheer and patterned curtains, enhancing the airy feel. A cozy armchair with a knitted pillow sits beside a full-length mirror, while a ceiling fan with wooden blades blends functionality with a natural aesthetic, completing the tranquil retreat.
Master Bedroom Details

This cozy master bedroom combines rustic charm with modern comfort. A large wooden headboard anchors the space, complemented by soft green bedding layered with beige linens and plush pillows, creating a soothing color palette. Above the bed, framed inspirational quotes and a decorative green wreath add subtle personality. Opposite the bed sits a wooden dresser topped with a flat-screen TV and a practical coat rack. The room features textured cream-colored walls and a ceiling fan with warm wood blades. Sliding barn doors in natural wood finish enhance the rustic aesthetic, opening to adjoining areas while maximizing space.
Bathroom Vanity and Shower Area

This bathroom features a clean and functional layout with light-colored walls and natural wood cabinetry. The granite countertop adds elegance, complemented by dark bronze fixtures on the undermount sink. A large rectangular mirror overhead reflects bright light from a modern four-bulb vanity fixture with glass shades, ensuring ample illumination. The compact shower enclosure is tucked neatly beside the toilet, outfitted with a neutral beige shower curtain. Positioned near a window with frosted glass blocks, the space receives natural light, while minimalist metal storage baskets mounted beside the mirror maximize organizational efficiency. Decorative touches add warmth and charm.
Family Room and Staircase

This cozy family room features a warm, neutral color palette dominated by beige carpeting and soft cream walls with natural wood trim. A wooden staircase with vertical spindles and a natural finish draws attention as it leads upstairs, with its underside cleverly utilized for storage, including cubbies and a small dark wood cabinet. Large windows framed in wood bring in abundant natural light and showcase the green nature outside. A soft beige area rug anchors the space alongside comfortable seating. The room blends simplicity with practical storage and family-friendly design, highlighted by understated, natural materials.
Family Room View

This cozy family room features a spacious brown sectional sofa adorned with a colorful bench cushion, positioned to face a wall-mounted flat-screen TV. The walls are painted crisp white, creating a bright and fresh atmosphere. A large window offers a scenic view of lush greenery outside, inviting natural light to complement the modern ceiling lighting panels. Wood trim around doorways and windows adds warmth, while decorative greenery and simple wall art enhance the inviting and comfortable feel. Plush carpeting underfoot ties the space together, perfect for family relaxation or entertainment. An adjoining room with playful decor suggests a family’s thoughtful layout.
Children’s Bedroom Corner

This cozy children’s bedroom corner features a light and airy palette with soft white walls and warm wood trim around the windows, complementing the dark hardwood flooring. A twin-sized metal bed with wheels is neatly made with pastel bedding and adorned with a collection of colorful stuffed toys. Adjacent to the bed, a whimsical small teepee sits on a lavender crocheted rug, creating a playful nook. Natural light floods the space through three rectangular windows, offering picturesque views of greenery outside. Additional touches include a small wooden rocking chair and a fluffy mint green area rug, creating a cheerful, inviting atmosphere.
Bathroom Vanity and Shower

This bathroom features a compact yet thoughtfully arranged layout, with a sleek vanity topped by a white and gray marbled countertop paired with a rectangular under-mount sink. The dark wood cabinetry adds a rustic touch, accentuated by antique-style hardware. Above the sink, a large textured silver-framed mirror enhances the sense of spaciousness. The shower area is modest, enclosed with white tiled walls and a curtain adorned with bold coral and orange floral patterns, injecting playful color. Light aqua mosaic tile borders the shower wall, harmonizing with the subtle neutral beige walls, creating a fresh, cozy atmosphere.
Bedroom with Workspace

This bedroom features a simple, functional layout with a focus on comfort and productivity. A dark wood bed with a gray comforter and colorful plush toys sits against a plain white wall, highlighting minimalistic design. The flooring is a rich, dark wood that complements the darker furniture tones. To the left, a modern black desk setup with a sleek black gaming chair faces two large windows that bring natural light into the room. A ceiling fan with wooden blades hangs in the center, providing a practical touch to the space. The room exudes a cozy yet youthful vibe with subtle hints of personal interests and leisure.
Bathroom Vanity and Window

This bathroom features a compact yet functional layout with light neutral walls that create a fresh, airy ambiance. A rectangular window with textured glass blocks allows natural light while maintaining privacy. The vanity boasts a granite countertop with warm beige tones, complemented by a white rectangular under-mount sink and polished chrome faucets. The cabinetry, in a natural wood finish, adds rustic charm with black knobs for contrast. Above the sink, a large black-framed mirror is illuminated by a fixture with three frosted glass shades. The flooring is subtly textured in gray tones, unifying the space with understated elegance.
Workshop Area

This spacious workshop features unfinished pressed wood walls and a high ceiling with exposed wooden beams, lending a rustic and industrial feel. Ample natural light filters in through skylights, complemented by long LED lights that provide bright task lighting. A wooden workbench runs along one wall, ideal for projects, while a simple wooden table and chair sit on a small beige rug, offering a dedicated workspace. The concrete floor supports heavy-duty use, and various items including a bicycle, lawn mower, and storage boxes suggest functional, multipurpose utility. Ventilation ducts hang centrally, emphasizing the practical design.
Home Office Workspace

This bright and inviting home office features clean white paneled walls and a slightly vaulted ceiling, creating a spacious and airy atmosphere. Dark wood flooring contrasts beautifully with the light walls, offering a warm base. A large window behind the desk brings in natural light and is adorned with a decorative green ivy garland, adding a touch of nature. The workspace includes a sleek desk with gold-colored legs, multiple organizational shelves on either side holding supplies, a cozy faux fur chair covering, and soft décor elements such as dream catchers, cultivating an artistic, eclectic vibe perfect for creativity and productivity.
Backyard Deck and Garden

This outdoor space features a spacious wooden deck stained in a deep reddish-brown tone, bordered with simple wooden railings and steps leading down to the yard. The deck is minimally adorned with a large, dark storage box, emphasizing functionality and openness. Surrounding the deck is a natural garden area with a mix of deciduous and evergreen trees, showcasing rich greenery interspersed with autumnal yellow leaves. The house’s exterior is clad in brown siding with white trim around windows and doors, adding a rustic charm. The earthy palette and forested backdrop create a serene, nature-integrated atmosphere.
Backyard Exterior View

This backyard showcases a spacious two-story wooden house with rustic charm and ample outdoor living space. The dark wood siding harmonizes with the surrounding evergreen trees, creating a natural, forest-like ambiance. Large, geometric windows on the upper right section allow abundant natural light into the upper living area, enhancing the aesthetic appeal. A wide deck spans most of the upper level, providing an inviting spot to relax. Below, a covered patio area and multiple doors connect indoor and outdoor spaces. Stone retaining walls and several shrubs add texture and greenery to the earth-toned yard.
Listing Agent: Joe Robb of Knipe Realty ERA Powered via Zillow