
Located in Pittsburgh, PA, off Fox Chapel Rd within the FCASD community, this property is situated on nearly 2 acres of land, providing ample outdoor space. The residence is offered at a listing price of $725,000. The home embraces main-level living with an optimized layout that includes gleaming hardwood floors and abundant natural light due to numerous windows throughout. Outdoor living is enhanced by a maintenance-free deck and a lower-level patio, perfect for enjoying stunning sunsets. The expansive walkout lower-level with extra high ceilings is already plumbed for an additional full bathroom, presenting limitless possibilities for future expansion. This property combines luxury, functionality, and location convenience with quick access to shopping, dining, hospitals, schools, and major roadways, making it a refined choice for comfortable living in the Pittsburgh area.
Front Porch Entry

This charming front porch entry embraces a warm, inviting atmosphere with its exposed red brick walls set in a spacious alcove framed by soft beige pillars. The dark wood front door features intricate glass panels bordered by matching sidelights, allowing natural light to filter through while maintaining privacy. Above the door, a decorative transom window enhances the classic elegance. Two small, neatly trimmed potted topiary plants symmetrically flank the entrance, adding greenery and balance. A neutral-toned doormat with “Home Sweet Home” in cursive rests atop a stylish geometric-bordered rug, while a black lantern-style light fixture hangs from a paneled ceiling, completing this welcoming entryway.
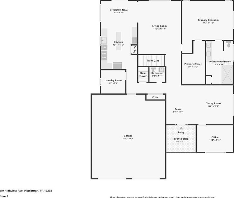
Floor Plan

This floor plan reveals a well-organized layout emphasizing a harmonious flow between functional spaces. The garage, measuring 24’6” by 28’0”, anchors the left side, offering expansive parking with direct access into a centrally located laundry room and kitchen. The kitchen, outfitted with a central island, is adjacent to a cozy breakfast nook, making it ideal for casual meals. The sizable living room (14’2” by 17’10”) sits in the center and connects seamlessly to the kitchen, enhancing openness. A sizeable primary bedroom suite includes a large closet and bathroom, while the foyer leads to a formal dining room and a compact office near the entrance, illustrating both practicality and comfort in this home’s design.
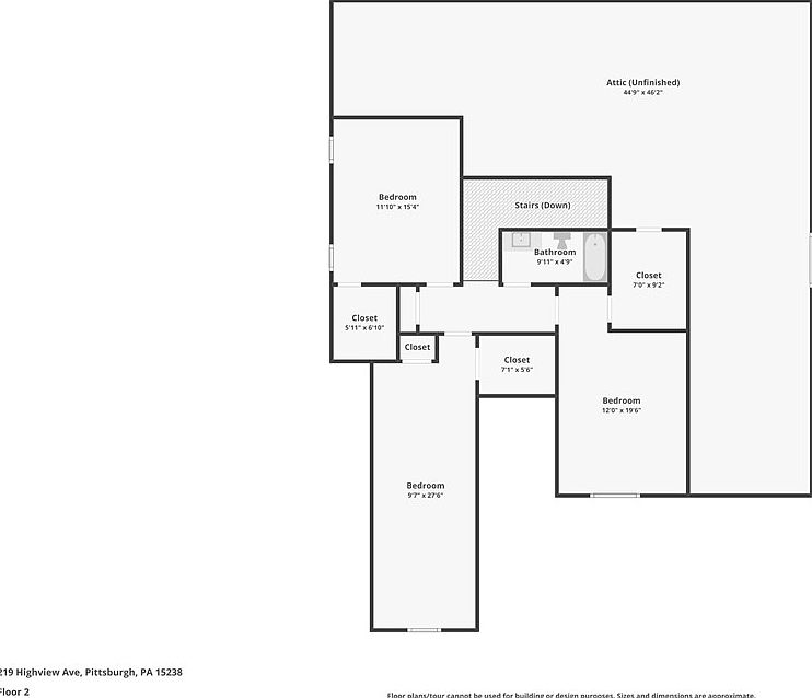
Upstairs Floor Plan

This second-floor layout features three bedrooms, each thoughtfully sized to balance comfort and function, with closets incorporated for storage. The stairway landing leads directly to a compact bathroom with necessary amenities. The bedrooms vary in shape and size, with one notably long room, offering flexible use such as a home office or lounge area. Ample closet space is provided throughout, enhancing organization without compromising room dimensions. An unfinished attic area also borders this level, providing endless possibilities for future expansion or storage. The plan emphasizes careful space allocation and practical flow between rooms.
Basement Layout

This basement plan highlights a spacious unfinished area divided into three sizeable sections, ideal for flexible use and future customization. The staircase is centrally located, offering convenient access from the upper floors, while space beneath the stairs can accommodate utilities or storage. The largest section measures over 43 feet by 17 feet, giving ample room for recreation or storage options. The color scheme is neutral, emphasizing open potential. The clean, simple lines and absence of obstructions create a blank canvas ready to be transformed into a functional or living space to suit various needs.
Entryway and Living Area

This bright entryway opens into a spacious living area, featuring warm hardwood floors that extend throughout. The walls are painted in a soft, neutral tone, creating a calm and welcoming ambiance. On the left, a sleek black console table is paired with two round, cushioned stools beneath, accompanied by a round mirror and potted greenery adding fresh touches. Straight ahead is a corridor leading further into the home, where large windows flood the space with natural light. To the right, an open shelving unit holds tasteful decor pieces, while a black side cabinet below an abstract wall art complements a dining area partially visible with cushioned chairs and a patterned rug.
Dining Room

This elegant dining room features warm hardwood floors that complement the soft, neutral wall color, creating a bright and inviting atmosphere. A large, patterned area rug anchors the black dining table and chairs, with two upholstered end chairs adding a touch of comfort and sophistication. The room is balanced with a black sideboard against one wall, decorated with minimalistic floral arrangements and wine bottles, while an industrial-style open shelving unit displays tasteful pottery and greenery. Natural light pours in through wide windows dressed with light curtains, enhancing the open, airy feel. A modern chandelier hangs centrally above the table, and abstract art adds subtle visual interest on the walls. The room connects seamlessly to an adjacent space, visible through a doorway, emphasizing flow and openness.
Home Office Nook

This cozy home office nook features warm beige walls contrasted by crisp white trim around a large window, filling the space with natural light and views of lush greenery outside. A sturdy wooden desk with clean lines rests on rich hardwood floors, accompanied by a sleek white chair that adds a contemporary touch. To the left, a wooden cabinet with glass-paneled doors enhances the room’s functionality while adding classic charm. A black leather armchair with a textured cushion and soft throw provides a comfortable seating option. Minimalist artwork with geometric patterns brings subtle modern flair to the space.
Spacious Living Room

This inviting living area features a harmonious blend of neutral tones, with soft cream walls complementing the warm wooden flooring. A plush, light beige area rug anchors the seating arrangement, which includes a sleek black leather sofa adorned with light gray and white throw pillows and a cozy white throw draped casually over one arm. Two modern beige armchairs with dark blue cushions sit near large, bright windows framed by beige curtains, allowing natural light to flood the room and highlight the greenery visible outside. The ceiling fan with dark blades and a central light adds functional elegance. Minimalist round glass-top coffee and side tables enhance the contemporary, airy feel, while tasteful artwork and greenery provide subtle decorative touches that complete this serene, stylish living space.
Breakfast Nook

This breakfast nook features a cozy, modern design with a round white table surrounded by four light gray chairs that have slender black legs. Warm, natural light floods the space through large sliding glass doors on the right, leading to a wooden deck outside. Nearby, a tall leafy indoor plant adds a touch of greenery and freshness. The floor is tiled with a neutral beige palette, complementing the creamy wall color. To the left, rich cherry wood cabinetry and granite countertops frame the kitchen area, while pendant lights hang over the breakfast table and kitchen island, enhancing the inviting ambiance.
Dining Area and Sitting Room

This bright dining area features a round white table surrounded by four light beige upholstered chairs, positioned on a tiled floor. A modern pendant light hangs centered above the table, enhancing the space’s inviting atmosphere. Large sliding glass doors with beige curtains open to a deck with outdoor seating, connecting indoor and outdoor living effortlessly. Adjacent to the dining area, a sitting room with warm wood flooring boasts two gray armchairs, a textured rug, and a lamp on a side table. Tall windows with matching beige drapes fill the room with natural light, while decorative plants add a refreshing touch of greenery throughout.
warm kitchen

This kitchen features a warm, inviting design with rich, cherry wood cabinetry that lines the walls and frames the large stainless steel refrigerator. A spacious island with a speckled granite countertop sits centrally, adorned with a simple black bowl filled with green apples and a small potted orchid adding a touch of freshness. The countertops, matching the island, extend beneath a bright window that overlooks lush greenery, inviting natural light inside. Three pendant lights hang over the island and sink area, providing soft, warm illumination. Stainless steel appliances and modern hardware complete the elegant yet functional space.
Laundry Room

This laundry room features a clean, functional layout with side-by-side front-loading washer and dryer units in a sleek white and black finish. The walls are painted a soft, light yellow, creating a warm and inviting atmosphere. Natural light fills the room through a large window with white trim, offering a refreshing view of lush greenery outside. Above the appliances, a wooden rod and rack provide added utility for hanging clothes. A charming black and white sign adds a playful touch to the wall. The tiled floor in light beige tones completes the simple, practical design of this bright laundry space.
Master Bedroom

This master bedroom features a serene color palette with a soft gray accent wall behind the bed and crisp white walls elsewhere, creating a calm and inviting atmosphere. The bed is dressed in light, neutral bedding with textured throw blankets and pillows adding depth. Dark wood nightstands flank the bed, each topped with a modern lamp, enhancing symmetry and balance. Large windows on two sides allow abundant natural light to flood the room, framed by sheer white curtains that softly diffuse daylight. A ceiling fan with wooden blades complements the warm hardwood flooring, while a large, lightly patterned area rug grounds the space with subtle elegance. A tall green potted plant adds a refreshing touch of nature beside the window, completing this restful and stylish retreat.
Modern Bathroom Retreat

This bathroom features a spacious walk-in shower enclosed by clear glass, showcasing large gray marble tiles that extend from floor to ceiling, blending seamlessly with matching floor tiles. A minimalist white stool and built-in niche with dark bottles add subtle decorative touches. Adjacent to the shower, a light gray wall provides contrast, where a simple towel rack holds a white towel, enhancing the calm atmosphere. The vanity area includes rich wooden cabinetry with warm tones, topped with a light granite countertop and a classic silver faucet. A large mirror with white textured towels elevates the room’s elegance, blending modern design with timeless comfort.
functional Bathroom

This bathroom corner features a sleek, modern vanity setup with a pristine white desk-style counter accompanied by a cushioned stool for comfortable seating. The wall behind is painted in a soothing light gray shade, creating a calming ambiance. Above the vanity hangs an ornate, scalloped circular mirror with a white frame that adds an elegant, vintage detail. A double-light fixture with frosted glass shades brightens the space. The adjacent wall includes a simple white door, a towel rack with a white towel, and a floor vent. The overall aesthetic combines practicality with subtle sophistication, balancing modern and classic elements.
Bedroom Interior

This cozy bedroom features a soft neutral palette with beige walls and light carpeting, creating a warm and inviting atmosphere. A large window floods the room with natural light, highlighting the textured white bedding atop a wooden slatted headboard. Matching wooden nightstands flank the bed, each topped with elegant silver lamps that add symmetry and subtle sophistication. A ceiling fan above provides both comfort and an architectural focal point. The patterned area rug beneath the bed adds visual interest, complemented by green accent pillows and a potted plant in the corner, infusing a touch of nature into the serene space.
functional Bathroom

This bathroom features a clean and simple design with a neutral color palette focusing on white and beige tones. The vanity has dark wood cabinetry topped with a light granite countertop, adding a subtle contrast. An undermount sink is paired with a modern chrome faucet. Above the vanity, a large mirror stretches across the wall, framed by contemporary light fixtures with frosted glass shades that provide soft, even illumination. The toilet is positioned beside the bathtub, which is surrounded by white tiled walls and complemented by a white shower curtain on a chrome rod. Minimal decorative elements, including framed art and a small vase, create a fresh and inviting atmosphere.
Attic Bedroom Lounge

This elongated attic space serves as a tranquil bedroom and lounge area with an angled vaulted ceiling enhanced by recessed track lighting. The natural light flows in through a skylight on the right and a window at the far end, brightening the warm honey-toned hardwood flooring. Soft neutrals dominate the palette, with cream walls paired with plush, off-white faux fur poufs and a large, patterned area rug adding texture and comfort. Black metal furniture, including a simple bed frame, side table, and long, low console, contrasts elegantly with greenery and modern abstract art, creating a balanced, cozy retreat.
Outdoor Deck Seating

This outdoor deck area features twin wicker-style sofas positioned in an L-shaped layout, creating a cozy conversational nook. The sofas have light-colored cushions and complementary throw pillows in neutral beige and cream tones, adding warmth and softness. Two round, minimalist black metal tables occupy the center on a large textured gray outdoor rug, enhancing the seating arrangement’s modern appeal. A black side table with a decorative bird sculpture sits on one side, while a large woven planter holding lush green foliage adds a natural touch on the opposite side. The deck flooring is made of warm-toned wood, bordered by a beige railing that frames the serene backdrop of tall trees and blue sky, evoking a tranquil and inviting ambience.
Listing Agent: Lauren Shepherd of HOWARD HANNA REAL ESTATE SERVICES via Zillow