
This elegant home in Buford, GA, located within the desirable Lanier Springs neighborhood, showcases a classic architectural style blending brick and shingle elements with a steeply pitched roof and dormer windows. Priced at $600,000, this spacious residence offers 4 bedrooms and 3.5 bathrooms, including a luxurious master suite on the main floor highlighted by high ceilings and ample natural light. The property includes covered front and back porches for outdoor relaxation, a beautifully landscaped and fenced yard ideal for children and pets, and is set within a vibrant swim and tennis community.
Front Porch Seating

This inviting front porch features a cozy seating area with two dark blue wooden rocking chairs positioned side by side, encouraging relaxation and conversation. The floor is a textured concrete slab, extending beneath a white-paneled ceiling with a single, classic flush mount light fixture. The house exterior reveals a warm blend of red brick and natural stone accents that add charming rustic appeal. Alongside the porch, well-maintained greenery and trimmed bushes frame the walkway leading to the quiet suburban street lined with mature trees, creating a tranquil and welcoming outdoor space.
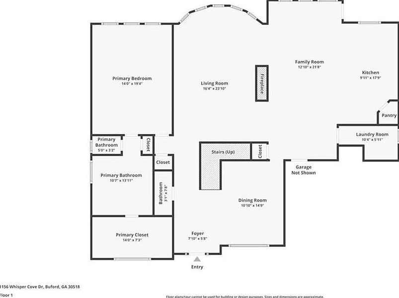
main floor layout

This spacious family room blends seamlessly into the adjacent kitchen, creating an open-concept feel perfect for entertaining. A central fireplace provides a cozy focal point amid the warm, neutral-toned walls and rich wooden flooring. The kitchen’s cabinetry features a crisp white finish topped with sleek stone countertops, complemented by stainless steel appliances and a practical pantry tucked in the corner. Multiple windows flood the area with natural light, enhancing the airy ambiance. The room’s layout ensures easy flow from casual family time to meal prep, highlighting modern comfort and functional design with a subtle sophistication.
Upper Floor Layout

This upper floor plan features a practical and spacious layout with three bedrooms, each thoughtfully positioned to maximize privacy and storage. The largest bedroom measures 13’3″ by 16’9″ and includes its own ensuite bathroom and a walk-in closet. Another bedroom, sized at 12’11” by 13’4″, is adjacent to two bathrooms, enhancing convenience for occupants. The third bedroom, 10’9″ by 14’2″, is located near the stairwell and has a dedicated closet space. Central stair access opens to a large void below, creating an open and airy feel and connecting the two levels visually.
Dining Room

This dining room features a charming and elegant design with a sophisticated green-gray color palette on the upper walls that contrasts beautifully with crisp white wainscoting and trim. The tray ceiling mimics the wall color, bordered with white molding that adds architectural interest and depth to the room. A rectangular wooden dining table with a cream finish is paired with four plush, tufted chairs in a soft beige upholstery, providing a cozy and inviting space for meals. The black metal chandelier with simple white lampshades offers modern flair while illuminating the space evenly. Natural light pours through large blinds-covered windows, enhancing the warm tones of the rich wooden floor. A unique modern art installation composed of multiple white circular discs provides a focal point, adding texture and contemporary style to the otherwise classic setting. Adjacent stairs with a wooden banister hint at the home’s multi-level layout, while an open doorway leads into the kitchen area, connecting the spaces smoothly and functionally.
Open Living Room and Kitchen

This spacious living area features a high vaulted ceiling with a ceiling fan, creating an airy and open ambiance. The large windows bring in abundant natural light, complementing the light grey walls and crisp white trim. The warm, medium-tone hardwood floor unites the living room and the kitchen in a seamless flow. A cozy stone fireplace under a mounted flat-screen TV anchors the living space. The kitchen showcases rich wood cabinetry and a central island with black bar stools, while an adjacent dining nook is visible. A staircase with wooden rails and black balusters frames the entryway, adding architectural charm.
warm Kitchen

This kitchen features an elegant and functional layout with warm-toned wooden cabinetry stretching along two walls and a central island that doubles as a breakfast bar with seating. The island is painted black, topped with a smooth dark granite countertop that contrasts beautifully against medium-toned hardwood floors. Stainless steel appliances including double wall ovens and a refrigerator add a modern touch. The backsplash showcases subtle neutral tiles adding texture without overwhelming the space. Recessed ceiling lights provide bright, even illumination, while a window above the sink brings natural light to the airy, inviting cooking area.
Dining Room

This dining room features a sophisticated and airy atmosphere with a soft sage green upper wall color contrasted by white wainscoting and trim. The coffered ceiling adds architectural interest and depth, painted in matching green with white beams. A rectangular dining table with a light wood finish is surrounded by four tufted, upholstered chairs in a neutral tone, emphasizing comfort and style. Large windows with white blinds allow ample natural light, illuminating the warm-toned wood flooring. The space leads seamlessly to a staircase with wooden banisters and black spindles, enhancing the room’s elegant yet inviting aesthetic.
Master Bedroom

This spacious master bedroom features a distinctive tray ceiling painted in soft gray tones, accented with white trim that enhances architectural interest. The warm, medium-toned hardwood flooring adds richness and contrasts beautifully with the light gray walls. A large vintage-style bed with matching nightstands anchors the room, complemented by simple greenery wall décor bringing a touch of nature indoors. Three large windows flood the room with natural light and offer pleasant garden views. A ceiling fan with a light provides practical comfort, while a rustic wood dresser and a modern TV add balance between classic and contemporary elements.
Master Bathroom

This spacious master bathroom features a long, double-sink vanity with a smooth white countertop and warm wood cabinetry beneath, offering ample storage with a combination of drawers and doors. Above the sinks, a large wall-to-wall mirror enhances the airy feeling, reflecting recessed lighting fixtures and providing excellent illumination. The walls are painted in a soft gray tone that complements the neutral beige floor tiles, creating a calming and modern aesthetic. To the right, a glass-enclosed shower with matching beige tiles adds functionality and elegance. A doorway leads to a carpeted adjoining room with large windows, bringing in natural light and greenery views, enhancing the openness and inviting atmosphere of this bathroom retreat.
functional Bathroom

This bathroom features a spacious walk-in shower with glass enclosure framed in dark metal, paired with beige tile walls accented by a horizontal mosaic strip that adds subtle texture. Adjacent to the shower is a built-in, round soaking tub set into a tiled surround with matching mosaic detail along the top edge. Soft natural light filters through a window above the tub, brightening the neutral-toned space. The floor continues the beige tile theme, coordinating with the walls and fixtures, while the wall paint in light grey keeps the overall look fresh and modern. A door leads to a bright bedroom visible in the background, highlighting the open and connected layout.
Walk-In Closet

This spacious walk-in closet features a combination of open shelving and hanging rods, providing ample storage for clothing, shoes, and accessories. The left side wall has built-in wooden shelves filled with neatly organized sneakers, while the right side includes multiple tiers of hanging space alongside shelves and drawers in a warm wood finish. A large window with white blinds lets in natural light, brightening the neutral-toned room with soft beige carpeting and light gray walls. The door opens into a connected bathroom with wooden cabinetry and a large mirror, creating a functional, well-lit dressing area.
functional Bathroom

This bathroom showcases a clean and functional design with neutral beige walls and a tiled floor. A wooden vanity with a white countertop and integrated sink provides storage space, complemented by a large mirror that extends above it, enhancing the sense of openness. A silver faucet and subtle warm-toned light fixtures above the mirror add balanced metallic and classic touches. The standout element is the vibrant blue shower curtain with a wave pattern, creating a lively contrast against the otherwise calm and minimalist surroundings. A small window allows natural light to brighten the space, contributing to an inviting and practical bathroom environment.
Laundry Room

This compact laundry room features a sleek, modern washer and dryer set with a metallic finish, positioned side by side for convenience. The walls are painted a soft, neutral tone that enhances the natural light streaming in through a single window with white blinds. Above the appliances, a simple white wire shelf holds woven baskets, adding a touch of rustic warmth and practical storage. The floor is laid with stone-like tile, contributing to the functional and clean aesthetic. Overall, the space is designed with efficiency and lightness, perfect for daily laundry tasks.
Backyard Patio

This inviting backyard patio features a spacious paved area with a mix of lounging and dining options. Four striking blue Adirondack chairs circle a central modern fire pit, creating a cozy social space. Adjacent is a wooden outdoor dining set with an umbrella, perfect for meals al fresco. The covered porch provides shade and shelter with beige cushioned seating along the wall, blending comfort with practicality. The home’s exterior showcases neutral-toned siding with white trim and black gutters, complementing the lush green lawn and privacy fence that encloses the yard.
spacious Backyard

This backyard features a spacious, well-maintained lawn framed by a dark wooden fence, providing privacy and a sense of enclosure. A covered patio area adjacent to the house includes comfortable outdoor seating and a dining table shaded by an umbrella, perfect for relaxing or entertaining. The home’s exterior is clad in muted, light gray siding with white trim around multiple windows that allow natural light inside. Architectural details include a steep roof and a prominent angled section with three tall vertical windows that add character. Mature greenery lines the perimeter, giving a balanced, inviting feel to this outdoor space.
Listing Agent: Reese Morgan of Keller Williams Realty Community Partners via Zillow