
The “Castle on Ridge” is a magnificent and iconic mansion located in Evanston, Illinois. Designed by the noted architect Stephen A. Jennings, this grand estate is a rare opportunity, coming to market for the first time in nearly 50 years. The home sits beautifully on nearly an acre of land, featuring expansive yards, a full coach house, and a 4-car garage. This impressive residence spans over 8,600 square feet and includes 18 rooms with 11 bedrooms and 8 bathrooms, offering exceptional space and versatility. The stunning three-story grand staircase, the focal point of the house, soars above original stained glass windows and a pipe organ facade, creating a striking statement of grandeur and elegance. Listed at $3,200,000, this historic mansion combines classic architectural style with modern amenities, offering endless possibilities for its new owner.
First Floor Layout

This floor plan reveals a spacious and well-organized first floor with multiple defined living spaces. A large living room with a distinctive rounded bay window area dominates one side, perfect for natural light and gathering. Adjacent is a sunroom, ideal for relaxation and indoor greenery. The kitchen is elongated and features an island, opening into a breakfast nook for casual dining. A formal dining room sits conveniently nearby. There’s also a sitting room that flows from the kitchen, alongside a small room and powder bathroom. A bedroom suite with a private bath is tucked into one corner for privacy. The foyer entry creates a welcoming transition into the home, with staircases centrally placed for access to other levels.
Second Floor Layout

This spacious second-floor layout includes multiple rooms designed for versatile living. The primary bedroom, impressively large at 32’2″ by 21’2″, features an expansive curved wall with multiple windows, likely flooding the room with natural light. Adjacent is a sizable primary bath equipped with dual sinks, a bathtub, and a shower. Two offices offer quiet workspaces; one with an attached walk-in closet and bath. A laundry room sits centrally for convenience. Additionally, there is a bedroom with its own bath, a walk-in closet, storage room, and multiple hallways connecting these well-organized spaces, providing both privacy and ease of movement.
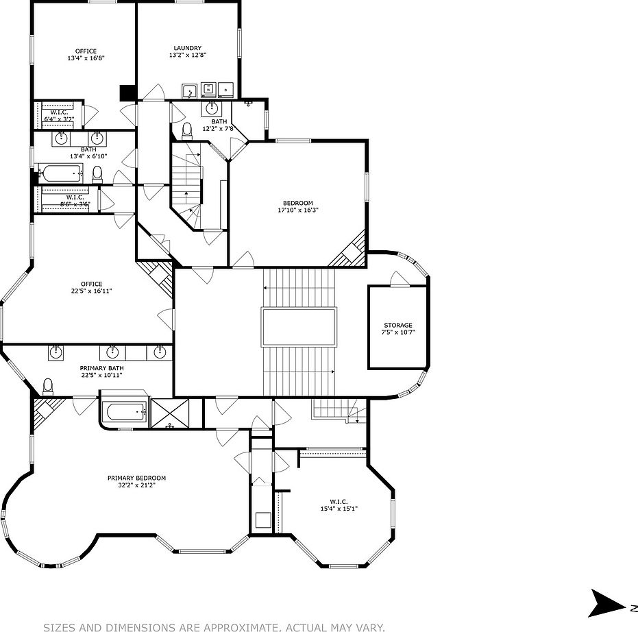
Third Floor layout

This floor plan presents a spacious and well-organized second floor featuring five bedrooms arranged around a central sitting room that spans 36’10” by 16’10”. The layout includes two walk-in closets and a bathroom with bath, toilet, and sink, providing practical functionality. Two additional rooms of varying sizes serve flexible purposes, while a balcony connected to one of the larger bedrooms offers outdoor access. The staircase is centrally positioned, ensuring smooth flow between floors. The design optimizes use of space with clear separations for restful and social areas, highlighting classical architectural elements with curved room corners and a bay-style balcony.
Exterior Rear View

This impressive stone exterior forms the rear of a stately, multi-story home with a traditional architectural style. The façade features large, irregular stone blocks giving a rugged yet classic charm. Multiple chimneys punctuate the slate roof, which has a gentle pitch and dormer windows providing attic natural light. Wooden staircases with simple railings lead up to side entrances, adding warmth and contrast to the stone structure. Surrounded by mature leafless trees and a spacious, well-manicured lawn, this space blends natural and built elements, creating a tranquil outdoor retreat. A wide paved driveway curves to the side, enhancing accessibility and functionality.
Entry Foyer and Staircase

This spacious entry foyer welcomes with warm hardwood flooring that extends throughout the area. A grand wooden staircase, featuring intricately turned balusters and a curved banister, dominates the space, inviting guests upstairs. On one side, a large stone fireplace with a charming arched stone mantelpiece adds rustic elegance, accentuated by wall sconces emitting soft light. Rich dark wood paneling adorns the walls, harmonizing with the staircase and doors to create a cohesive, traditional charm. The open doorway leads into a formal dining room, enhancing the classic, inviting atmosphere of this home’s main entry and gathering area.
Living Room Seating Area

This spacious living room features a warm, inviting layout centered around vintage-style furniture. A large, patterned Persian rug anchors the seating arrangement comprising two bold red armchairs, a classic green upholstered wooden sofa, and an elegant cream-colored settee with intricate floral detailing. The hardwood flooring complements the white walls and gently arched ceiling, enhancing the room’s airy feel. Two traditional side tables with lamps provide soft lighting, while framed artwork and portraits add character. The far end proudly showcases a wooden fireplace with a mantel, further emphasizing a blend of historic charm and cozy elegance.
Spacious Living Room view

This living room features a warm, timeless aesthetic with rich hardwood floors and white walls that brighten the space. A grand piano prominently occupies the front right corner near large windows that offer scenic outdoor views and natural light. The room flows seamlessly into a sitting area through a graceful archway, where vintage seating, including a green leather sofa and red armchairs, adds character and color contrasts. Persian-style rugs enhance the room’s classic feel. Details like traditional wood trim and a mix of framed artwork contribute to an inviting yet sophisticated atmosphere.
Kitchen Island and Ceiling Detail

This spacious kitchen centers around a long marble-topped island with seating for four on sleek black bar stools with metal frames. Rich hardwood floors complement the warm wooden window and door frames throughout, adding a cozy contrast to the crisp white cabinetry and white tile backsplash. The kitchen features stainless steel appliances including a large stove and a wine cooler. A standout feature is the ornate metallic tin ceiling inset above the island, adding vintage charm and intricate detail. Recessed lighting and industrial pendant lights provide layered illumination, balancing modern and classic aesthetics.
Kitchen Island & Adjacent Living Area

This open-concept space centers around a large kitchen island featuring a striking white marble countertop with grey veining, paired with dark wood cabinetry that offers ample storage. The island includes a built-in sink and dishwasher, highlighting functionality. Overhead, three industrial-style metal pendant lights hang from an ornate tin ceiling with intricate patterns, adding vintage charm to the modern design. The room’s walls are painted in soft gray, contrasted by warm, polished hardwood floors that extend into the adjoining living area. Natural light flows through wooden-framed windows, while recessed lighting and ceiling fans enhance the room’s brightness and comfort. Artwork and built-in shelving in the connected living space create a cozy, gallery-like atmosphere.
Sunroom Seating Area

This spacious sunroom features large, multi-pane windows with diamond lattice details, allowing for ample natural light and a clear view of the wooded backyard surroundings. The ceiling is painted white with a beadboard finish, creating a bright and airy atmosphere. Stone pillars and half walls add a rustic, sturdy architectural touch, complementing the natural exterior views. The furniture is a mix of casual and traditional styles, including inviting cushioned armchairs with striped upholstery, a round metal dining table with cushioned chairs, and a charming wooden swinging bench suspended from the ceiling. The soft, neutral grey-painted wooden floor grounds the space and enhances the room’s serene, outdoor-inspired ambiance.
Formal Dining Room

This formal dining room features a classic, timeless design with rich wood elements dominating the space. A large rectangular wooden dining table sits centrally on an ornate red Persian-style rug, surrounded by matching carved chairs. The ceiling is distinguished by exposed wooden beams, adding depth and warmth. Walls are painted a crisp white to contrast with the prominent wooden window frames, doorways, and crown moldings that showcase intricate detailing. A chandelier with frosted glass shades hangs above the table, enhancing the room’s elegant ambiance. A built-in wooden china cabinet displays fine dishware, while a fireplace framed in wood anchors one wall, contributing to the inviting and sophisticated atmosphere.
Cozy Sitting Room

This inviting sitting room features a striking contrast between classic woodwork and modern furnishings. Four large, evenly spaced windows framed in rich, carved woodstead bask the space in natural light, softened by neutral roller shades. The curved ceiling adds architectural intrigue and enhances the openness. The furniture combines a contemporary grey sofa with two vintage armchairs upholstered in elegant red and patterned fabrics, highlighting a blend of old and new. The centerpiece glass-top coffee table sits on an intricate red oriental rug, while a wooden side table with a marble top provides an additional antique touch, creating a balanced, warm atmosphere.
Bathroom Vanity and Shower

This bathroom features a sleek, modern design highlighted by a clean white and soft gray color palette. The floor showcases white hexagonal tiles, which extend partially up the walls, complementing the white subway tiles in the adjacent glass-enclosed shower area. The vanity is minimalist with a floating design, providing storage drawers and open shelving in a muted gray finish. Above it, a large rectangular mirror paired with contemporary light fixtures creates a bright, airy feel. Chrome fixtures, a compact, streamlined toilet, and tasteful towel bars emphasize functionality with elegant simplicity throughout.
Spacious Master Bedroom

This master bedroom exudes classic elegance with a light, neutral color palette dominated by cream-colored walls and warm wooden flooring. The room’s gentle curves and crown molding add architectural interest, while large windows with diamond-patterned panes invite natural light and offer serene views. The brass bed frame rests on a patterned rug, complemented by wooden nightstands with antique lamps providing soft amber lighting. Plush upholstered seating in muted red tones, including a tufted chaise and a vintage-inspired loveseat, create cozy nooks. Decorative stained glass and a small fireplace enhance the refined, timeless atmosphere.
Elegant Master Bathroom

This master bathroom exudes luxury with its extensive use of cream-colored marble tiles covering floors and walls, creating a warm, inviting atmosphere. A large soaking tub is set into a tiled platform, featuring vintage-style chrome faucets that add timeless charm. Adjacent is a glass-enclosed shower with an elegant archway, blending architectural character with modern functionality. The space is enhanced by a charming stained-glass window, infusing color and artistry, while built-in glass shelves hold decorative items. Soft white towels and a classic pendant light complete this serene, spa-like retreat designed for comfort and elegance.
Bathroom Vanity and Toilet Area

This bathroom features a dual sink vanity with a distinctive amber-brown marble countertop supported by sleek metal legs and complemented by glass shelving underneath. Large mirrors stretch across the vanity wall, reflecting the space and enhancing its brightness. The tile walls and floor are in warm beige tones with subtle diamond accents, creating a classic and elegant backdrop. To the left, a white pedestal sink and toilet are positioned near a window, allowing natural light to filter in. Recessed ceiling lights and wall sconces with frosted glass shades add soft, layered lighting. A stained-glass window detail above the bathtub adds artistic charm to this sophisticated and well-appointed bathroom.
Bedroom with Fireplace

This spacious bedroom features classic design elements with warm wood tones contrasting soft, neutral walls. The rich hardwood floors provide a sturdy foundation, complementing the intricately carved wooden fireplace mantel that adds character and a cozy focal point. Crown molding and wood trim around doors and windows enhance the traditional feel. The white metal bed frame with delicate scrollwork supports a neatly made bed adorned with textured pillows and light bedding. A matching metal bench sits at the foot of the bed, while an elegant, large wooden armoire with mirrored doors adds both storage and reflective light, balancing the room’s warmth and openness.
Bathroom with Glass Shower

This bathroom features a clean and elegant design with a white and light neutral color palette. The floor is tiled with a mosaic pattern of white and subtle beige accents, complementing the crisp white subway tiles inside the corner shower. The shower is enclosed by a frameless glass door, adding a contemporary touch and allowing natural light from the window to brighten the space. A marble countertop sink with sleek metal legs provides a blend of classic and modern style. An artistic painting on the wall adds a splash of color. A vintage cast iron radiator and open doorway leading to a bedroom complete the inviting setup.
Bathroom Features

This bathroom blends classic elements with warm, inviting tones. A spacious alcove bathtub with a wall-mounted showerhead is set against polished, amber-hued marble tiles that extend partially up the wall, complementing the matching marble floor. The wooden-framed window with decorative muntins adds architectural character, flanked by a traditional white radiator beneath it. Opposite the tub, a double vanity with rich wood cabinetry and gray marble countertops offers two undermount sinks beneath large mirrors, each illuminated by elegant sconces with frosted glass shades. Cream-colored walls and arched ceiling soften the overall aesthetic, creating a timeless, cozy atmosphere.
Home Office and Sitting Area

This spacious home office blends classic charm with functional design, featuring warm wooden floors and cream-colored walls framed by elegant crown molding. A large wooden desk and matching bookshelves create an organized workspace, while a comfortable black leather chair complements the dark wood tones. Adjacent to the desk, a black leather sofa with a plaid pillow offers a cozy sitting area beside a vintage trunk coffee table. A corner dining set by the bay windows invites natural light, highlighting the surrounding greenery. The room is anchored by a traditional fireplace with a wooden mantel, topped by a mounted flat-screen TV, combining sophistication with comfort and modern convenience.
Upstairs Bedroom Corner

This cozy corner of an upstairs bedroom features warm honey-toned hardwood floors that extend seamlessly into the room. Crisp white walls and ceilings contrast with rich wooden trim along baseboards, window frames, and door casings, showcasing classic craftsmanship. The angled ceiling and dormer create an intimate, unique space with architectural interest. The large wooden-framed window includes a decorative grid in the upper sash, adding a refined vintage touch. A simple white radiator sits against a wall, complementing the traditional details. Soft wall sconces provide ambient lighting, completing the inviting atmosphere.
Upper-Level Sitting Area

This spacious upper-level sitting area features rich wood paneling that extends halfway up the walls, complemented by a matching paneled wooden door and trim, giving the space a classic, warm ambiance. The hardwood floor showcases a natural grain finish that enhances the room’s traditional style. A brick fireplace with a wooden mantel anchors one corner, adding a cozy focal point. The ceiling is painted white to brighten the space, accented by dark wood crown molding that ties the aesthetic together. A centrally hanging modern chandelier provides soft, ambient light, while an open railing overlooks the floor below, contributing to a connected and airy feel.
Living Room Details

This spacious living room features rich, dark wood paneling that rises to mid-wall height, complemented by white walls and ceiling which brighten the space. The well-maintained hardwood floor extends throughout, adding warmth. A notable architectural element is the trio of windows with decorative panes—one large central arched window flanked by smaller ones—allowing ample natural light while providing visual interest. The fireplace is surrounded by deep wood details and a brick interior, anchoring the room with a classic feel. A vintage-style chandelier with green glass shades hangs centrally, enhancing the historic charm of the space.
Bathroom with Tub Nook

This serene bathroom features a compact yet elegant layout, highlighted by a built-in bathtub partially enclosed with white marble tiles. The flooring continues this marble theme, creating a cohesive and polished look. Walls are painted in a soft white tone, enhancing the bright and airy atmosphere. Classic wooden window trim in a honey oak shade adds warmth and contrast, complemented by vintage-style arched windowpanes fitted with horizontal blinds for privacy. The sink area includes a simple pedestal basin with chrome fixtures, while contemporary wall-mounted sconces provide balanced lighting. A sleek towel bar is mounted on the plain wall, emphasizing the room’s minimalist charm.
Listing Agent: Linda Levin of Jameson Sotheby’s Intl Realty via Zillow