
This custom-built 5-bed, 4.5-bath Mediterranean-style home listed at $3,250,000 blends luxury and comfort on a 0.53-acre lot. A saltwater pool with an integrated spa, outdoor kitchen, and manicured gardens create a resort-like setting. Inside, a grand great room features a floating staircase and stone accent wall, while a sleek kitchen opens to a soaring family room. The main suite boasts a fireplace, balcony, and spa bath. A finished basement with a theater, gym, and EV-ready garage complete this 2018-built masterpiece near Princeton’s finest amenities.
1. Timeless Exterior

This stately residence stands as a testament to refined elegance and sophisticated design. The exterior features smooth, cream-colored stucco that beautifully contrasts with the dark, arched windows framed in black, creating a striking, modern look. A gently curved stone staircase leads to a grand entrance, with a custom wrought-iron door that exudes both strength and grace. Flanking the pathway, meticulously trimmed hedges and a symmetrical arrangement of trees add to the home’s refined curb appeal. The seamless blending of classic elements with contemporary details ensures this home commands admiration from every angle.
2. Where is Princeton?

Princeton is a picturesque town in central New Jersey, best known as the home of Princeton University, one of the nation’s most prestigious Ivy League institutions. Located between New York City and Philadelphia, the town boasts a rich history, charming downtown streets, and cultural attractions like the Princeton University Art Museum and McCarter Theatre Center. The area offers scenic parks, historic sites like Princeton Battlefield State Park, and a vibrant mix of shops and restaurants. With its blend of academic prestige, historic charm, and natural beauty, Princeton is a beloved destination for residents and visitors alike.
3. first floor layout

The first floor features a spacious family room with a fireplace, seamlessly connecting to an open-concept kitchen equipped with a pantry and modern appliances. A formal dining room and living room add elegance to the layout. A guest bedroom with a nearby full bathroom provides convenience, while a large garage offers ample storage. Outdoor spaces include a covered patio and an expansive open patio, perfect for entertaining and relaxation. The well-planned layout ensures comfort and functionality for daily living.
4. second floor layout

The second floor features a luxurious primary bedroom with a fireplace, a walk-in closet (W.I.C.), and an en-suite bath with dual sinks, a bathtub, and a separate shower. A private balcony extends from the primary suite, offering an outdoor retreat. Three additional spacious bedrooms provide ample storage and share well-appointed bathrooms. A laundry room is conveniently located on this level. The hallway overlooks the open space below, enhancing the airy and connected feel of the home.
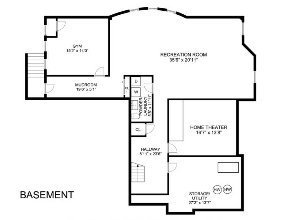
5. basement layout

The basement offers a variety of functional and entertainment spaces. A large recreation room provides ample space for gatherings, while a home theater is designed for an immersive viewing experience. A gym allows for at-home workouts, and a mudroom with outdoor access adds convenience. A powder room/laundry area is centrally located. Additional storage and utility space ensures organization and easy maintenance.
6. Entryway with Modern Accents

Upon entering, you’re greeted by a striking foyer that seamlessly blends modern design with natural elements. The stone accent wall, with its layered texture in soft beige tones, anchors the space, creating an earthy yet sophisticated backdrop. To the left, a sleek, floating staircase with contemporary black treads and a glass railing leads to the upper levels, its minimalist design adding an airy, open feel. The large arched windows allow natural light to flood the room, accentuating the modern furnishings and creating a warm, welcoming atmosphere. Above, a sculptural chandelier of luminous spheres hangs, adding a touch of glamour and drawing the eye upward.
7. Open-Plan Living and Dining

This expansive living and dining area exudes elegance and functionality, where design meets comfort in a harmonious open-plan layout. The rich dark wood flooring adds warmth, contrasting beautifully with the crisp white walls and framed windows that invite natural light. In the living space, plush armchairs are paired with a statement coffee table, balancing modern and traditional elements. The dining area is anchored by a stylish wooden table surrounded by bespoke chairs, with an overhead chandelier casting a soft, ambient glow. The artful arrangement of books and sculptures on the shelves creates a touch of personality, while the refined details in both the furniture and décor speak to a sophisticated lifestyle.
8. Inviting Living Room

This spacious living room is designed to be a retreat, where light and space flow effortlessly together. The towering walls of windows allow abundant natural light to flood the room, offering beautiful views of the outdoor surroundings. The stone feature wall, housing a sleek, modern fireplace, adds an element of warmth and texture, while the large sectional sofa, accented with vibrant pillows, creates an inviting space perfect for both relaxation and entertaining. A mix of modern and rustic elements, such as the wooden coffee tables and patterned cushions, provides a balanced aesthetic of comfort and style. The soaring ceilings and clean, simple lines elevate the overall sense of openness, making this room a stunning focal point within the home.
9. Contemporary Gourmet Kitchen

This state-of-the-art kitchen embodies both elegance and functionality, offering a perfect blend of modern design and high-end materials. The sleek, dark cabinetry provides a striking contrast to the polished white countertops, while the spacious central island features an inviting, angular shape that encourages both cooking and socializing. Top-of-the-line appliances are seamlessly integrated into the design, creating a clean, uncluttered look. The light-filled space is enhanced by large windows and recessed lighting, illuminating the geometric details of the kitchen. With its open layout, this kitchen is both a culinary haven and an inviting space for family gatherings.
10. bedroom with outdoor Access

This serene bedroom offers a peaceful retreat with its soothing color palette and thoughtful design. The soft, muted blue accent wall creates a calm and inviting atmosphere, while the crisp white bed frame and textured bedding provide a clean, modern touch. A vibrant yellow throw blanket adds a pop of color, subtly balancing the space. Large French doors open to the outdoors, letting in natural light and offering beautiful views of the garden. Simple, sleek furniture and elegant lighting fixtures complete the look, creating a harmonious, restful space.
11. Modern Bathroom Oasis

This minimalist bathroom exudes contemporary sophistication, with its soft green subway tile creating a serene and fresh atmosphere. The frameless glass shower, with its clean lines and modern fixtures, invites relaxation while maintaining a spacious feel. The crisp white vanity with sleek, handle-free drawers complements the neutral tones, offering both style and practicality. With thoughtful touches like a modern faucet and streamlined toilet, this bathroom is an ideal retreat that combines high-end finishes with a tranquil, uncluttered design.
12. Stylish Bedroom Retreat

This master bedroom offers a perfect balance of comfort and style, creating a serene sanctuary. The soft blue accent wall evokes a sense of calm, beautifully complementing the crisp white bedding and plush pillows that invite relaxation. A modern, sculptural light fixture adds a touch of sophistication, while the warm wood nightstands ground the space with natural elegance. The room is flooded with light through the large windows, with a cozy sitting area and desk offering versatility for work or leisure. Sliding glass doors open to a private outdoor space, enhancing the room’s tranquil ambiance.
13. Master Bathroom

This master bathroom radiates tranquility and sophistication, combining sleek design with high-end finishes. The elegant dark cabinetry contrasts beautifully with the light-toned tile floors, creating a calming and balanced atmosphere. A freestanding soaking tub, positioned beneath an arched window, invites relaxation while offering picturesque views of the outdoors. The spacious walk-in shower, framed with glass, features modern fixtures and large tiles that enhance the open, airy feel. Soft, recessed lighting illuminates the space, while the elegant design ensures this bathroom serves as a luxurious sanctuary for everyday rejuvenation.
14. Home Office

This home office combines modern functionality with an inspiring design, making it an ideal space for both productivity and creativity. The soft blue accent wall adds a refreshing touch, while the large windows flood the room with natural light, offering views of the outdoors. A contemporary desk, paired with a stylish ergonomic chair, creates an efficient work environment, while the unique chandelier above adds a playful, artistic flair. The patterned rug complements the clean, minimalistic design, making the space both comfortable and energizing.
15. Home Theater

This intimate home theater offers the ultimate movie-watching experience, designed for both relaxation and immersion. The walls are painted in deep, rich tones, creating a dark and cozy atmosphere ideal for film viewing. Plush, leather reclining chairs are arranged for comfort, complete with armrests and cup holders for convenience. Soft ambient lighting along the walls adds just the right touch of elegance while maintaining the cinematic focus. The large projection screen ensures a spectacular visual experience, while the thick, luxurious carpet enhances the room’s acoustics, making it the perfect escape for entertainment and leisure.
16. Multi-Functional Room

This versatile space effortlessly combines utility and leisure, making it the perfect balance for a modern home. The sleek, polished concrete floors lead to a ping pong table, offering an enjoyable recreational area, while the bold, dynamic mural on the far wall brings an energetic, sports-themed touch to the room. A tucked-away laundry area ensures functionality without interrupting the flow of the space. Recessed lighting and strategically placed windows provide ample brightness, making the room both practical and inviting. Whether for casual play or laundry duties, this room is designed for comfort and convenience.
17. charming outdoors

This luxurious outdoor space blends comfort and style, offering the perfect setting for both relaxation and entertainment. A spacious seating area is anchored by a modern sectional sofa surrounding a sleek fire pit, creating an inviting focal point. The covered patio provides shade and comfort, while overhead fans add a refreshing breeze. A built-in grill and dining area make this outdoor retreat ideal for hosting gatherings. Large windows from the home offer seamless indoor-outdoor living, allowing natural light to flood the space and enhance the overall ambiance. The stone flooring and manicured landscaping further elevate the design, making this outdoor area a sophisticated extension of the home.
Listing agent – Maura Mills @ Callaway Henderson Sotheby’s International Realty via realtor.com