
The residence in Miami, FL, is a stunning example of modern real estate, offering 4 bedrooms, 5.5 bathrooms, and 4,401 square feet of luxurious living space. Set on a generous 0.43-acre lot and priced at $3,450,000, this newly built home blends sleek contemporary design with effortless indoor-outdoor living.
1. Sleek Modern Estate with Clean Lines

This contemporary single-story home offers striking simplicity with its crisp white facade and bold black accents. A flat, low-pitched roof and symmetrical design create a streamlined profile, while tall windows invite natural light inside. The grand entryway, framed by twin columns, sets a welcoming tone. Neat landscaping and a spacious paver driveway complete the polished, modern look.
2. Where is Miami?

Miami is a vibrant coastal city in southeastern Florida, celebrated for its sunny weather, stunning beaches, and dynamic culture. A global hub for entertainment, real estate, and business, Miami offers a unique blend of tropical beauty and urban energy. With its lively neighborhoods, world-class dining, and international influence, Miami continues to attract residents and visitors from around the world.
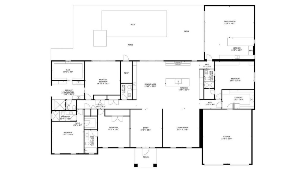
3. Ground floor layout

The ground floor presents an expansive, open concept layout centered around a grand kitchen and dining area, perfect for gathering. A luxurious primary suite with a spa-like bath and oversized walk-in closet offers a private retreat. Two additional bedrooms, each with easy access to bathrooms, balance comfort and privacy. A spacious family room, laundry room, and covered patios seamlessly blend indoor and outdoor living, ideal for modern lifestyles.
4. Light-Filled Living Room with Garden Views

Bathed in natural light, the living room offers a serene and inviting space, perfect for relaxation or entertaining. Clean lines, a soft neutral palette, and modern finishes create a sophisticated atmosphere, while a bold red piano adds a playful pop of color. A sleek glass coffee table and large sectional seating invite casual comfort, all framed by garden views through expansive glass doors.
5. Sunlit Dining Area Overlooking the Pool

Designed for effortless entertaining, the dining area combines sleek modern style with stunning outdoor views. A generous table comfortably seats eight, anchored by elegant dark chairs and a centerpiece of fresh orchids. Floor-to-ceiling glass doors frame the sparkling pool and lush landscaping, seamlessly blending indoor and outdoor living for a bright, resort-like experience.
6. Modern Kitchen with Sleek Elegance

This bright and airy kitchen strikes a perfect balance between warmth and minimalism. Light wood cabinetry and crisp white countertops create a soft, welcoming backdrop, while two sculptural black chandeliers add a bold, artistic flair. A large island with plush gray stools invites gathering, anchored by a delicate orchid centerpiece. Natural light pours through expansive windows, enhancing the fresh, open feel of the space.
7. Stylish Media Lounge with Contemporary Flair

This inviting media lounge blends comfort and modern style with a sprawling charcoal sectional that anchors the space. Crisp white walls and recessed lighting create a bright, airy atmosphere, while a wood-paneled ceiling detail adds warmth overhead. Vibrant pop art injects bold personality, complemented by lush outdoor views through expansive windows. A sleek wall-mounted TV promises an elevated entertainment experience.
8. Serene Bedroom with Modern Simplicity

This tranquil bedroom embraces a sleek, minimalist design with its crisp white palette and clean lines. A striking four-poster bed with a brushed metal frame stands as the focal point, softened by cozy textures and plush bedding. Matching nightstands with glass lamps bring balance, while a single orchid adds a gentle, organic touch. The open layout and subtle finishes create a calm, restful atmosphere.
9. Serene Spa-Inspired Bathroom

This luminous bathroom blends tranquility and elegance with clean, modern lines and luxurious finishes. A freestanding soaking tub takes center stage beneath a vast picture window, framing vibrant greenery like a living work of art. Marble-look walls and floors exude timeless beauty, while dual vanities with natural wood cabinetry offer warmth and texture. A glass-enclosed shower completes this calming, spa-like retreat.
10. Spacious Walk-In Closet with Sleek Storage

This thoughtfully designed walk-in closet pairs modern simplicity with everyday functionality. Warm wood tones create a calming backdrop for open shelving, ample drawers, and hanging space, offering a stylish home for every item. A large window invites natural light, making the space feel even more expansive. Carefully organized, this closet is a seamless blend of luxury and practicality.
11. Charming Nursery with Whimsical Touches

Soft and inviting, this nursery is a dreamy space designed for comfort and play. A sweet house-frame bed adorned with pastel garlands anchors the room, while a delicate play tent invites imagination to bloom. Plush textures, neutral tones, and flowing drapes create a serene atmosphere, gently lit by a cloud-like chandelier. Every detail speaks to thoughtful design with a sense of wonder.
12. Modern Multi-Functional Bedroom

A clever blend of comfort and productivity defines this sleek bedroom retreat. Light wood cabinetry wraps the bed in clean lines and hidden storage, while recessed lighting casts a soft, inviting glow. A large window frames lush greenery, bringing a refreshing view indoors. Balancing work and wellness, a corner desk station and a Peloton bike complete the space, making it equally suited for focus, rest, and recharge.
13. Bright Indoor-Outdoor Lounge

This vibrant lounge seamlessly blends indoor luxury with outdoor relaxation. Massive sliding glass doors flood the space with sunlight, opening to a sparkling pool and lush greenery beyond. Crisp white walls, modern bar seating, and a soft blue area rug create a fresh, breezy atmosphere. Oversized ceiling fans and sleek furnishings enhance the resort-style feel, making this the ultimate retreat for effortless entertaining.
14. Private Backyard Oasis

This expansive backyard is a serene escape, anchored by a crystal-clear pool and lush green lawn. Towering palm trees and manicured hedges provide a natural privacy screen, while a hammock invites leisurely afternoons in the shade. Clean white exterior walls and sleek black-framed doors mirror the home’s modern style, blending effortlessly into the tropical surroundings for a picture-perfect retreat.
Listing agent – Giovanni Campos @ RE/MAX Advance Realty II via realtor.com