
Birch Point Lodge is an exquisite example of Adirondack-inspired architecture, seamlessly blending rustic charm with grand craftsmanship. Located in the serene wilderness of Hayward, Wisconsin, this legacy estate spans over 39 pristine acres, featuring more than 2,000 feet of shoreline, two private islands, and stunning views of both sunrises and sunsets over clear waters. Priced at $4,250,000, this estate offers an expansive living experience characterized by soaring 25-foot ceilings, indigenous Wisconsin granite fireplaces, reclaimed wide-plank and red pine floors, and custom timber framing. Birch Point Lodge is not only a home but a remarkable sanctuary designed to endure for generations, providing unparalleled privacy and a truly immersive natural experience.
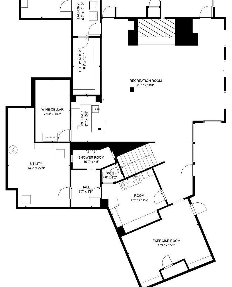
Basement Floor Plan

This spacious basement floor plan highlights a variety of functional areas, starting with a large recreation room measuring over 28 by 38 feet, ideal for entertainment and leisure. Adjacent to it is a wet bar area perfect for social gatherings, complemented by a wine cellar for storage. A cozy study room, laundry space, and utility room provide practical living conveniences. Additionally, there is an exercise room, a separate room for flexible use, and two bath areas including a shower room, all connected by a central hall and stairway, offering a versatile and well-organized living space.
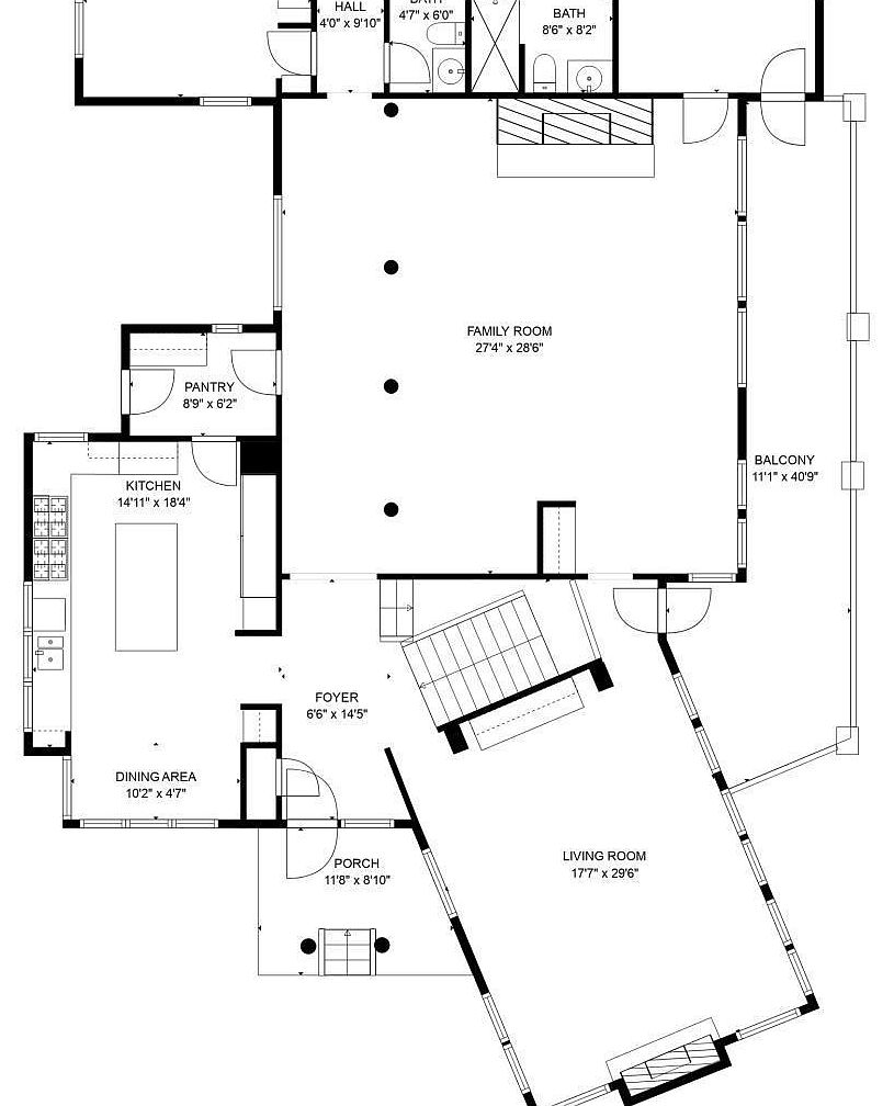
Main Floor Layout

This floor plan features a spacious and open design emphasizing connected living spaces. The foyer leads into a large family room measuring 27’4″ by 28’6″ at the heart of the layout. Adjacent to the family room is a bright living room angled with several windows along its 17’7″ by 29’6″ dimension, allowing ample natural light. The kitchen, measuring 14’11” by 18’4,” includes a generous island and is paired with a dedicated dining area. A pantry is conveniently located nearby. The plan also includes a porch entryway, a balcony stretching along one side, two bathrooms, and an efficient hallway connecting each area. The layout reflects a modern, functional aesthetic with an emphasis on open space and flow.
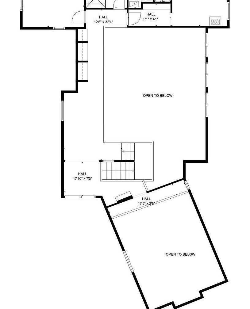
Second Floor Layout

This floor plan features an open-concept design with two large areas marked “Open to Below,” indicating high ceilings and a view of the main floor from above. Multiple halls interconnect these spaces, providing access to various parts of the house. A central staircase is prominently positioned for easy movement between levels. The layout suggests spaciousness and the architectural intent to create an airy, connected environment. Windows positioned along exterior walls hint at natural light flowing into the halls. Angled walls add dynamic visual interest to the design, enhancing overall flow and modern appeal.
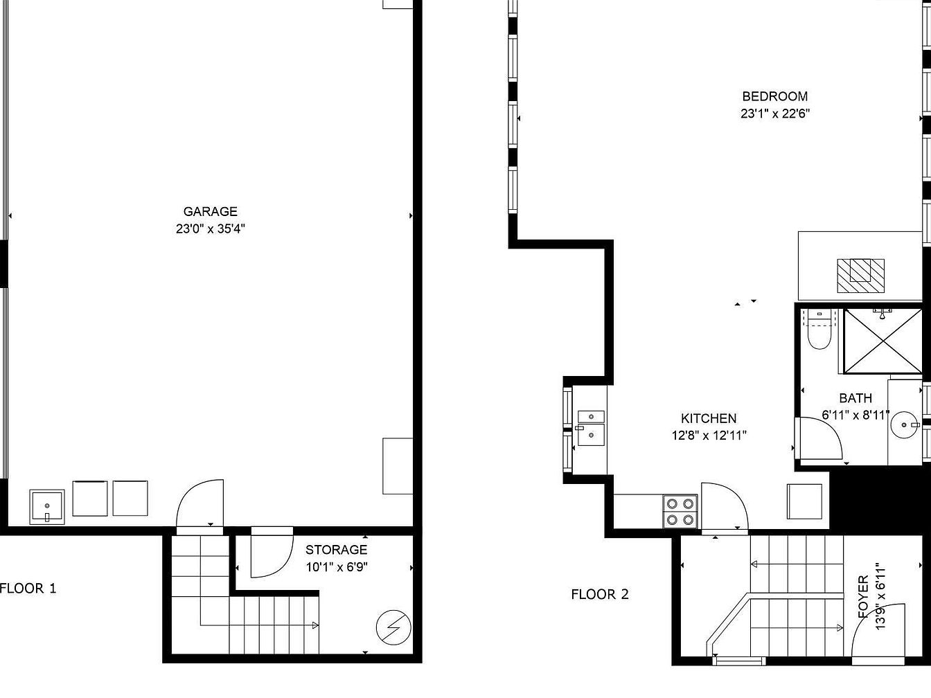
First and Second Floor Layout

This two-level floor plan reveals a spacious first floor dominated by a large garage measuring 23 by 35 feet, with an adjacent storage room accessible via a staircase corridor. The storage area provides practical utility space. Moving upstairs, the second floor features an open concept combining a large bedroom and a kitchen area, sized at approximately 23 by 22 feet and 13 by 13 feet, respectively. A compact bathroom with essential fixtures is placed conveniently near the kitchen. The foyer creates a welcoming entrance with stairs connecting both levels, emphasizing efficient use of space and functional zoning in the home.
Basement Layout

This basement spans a large 46’8″ by 24’9″ open space with stairs centrally located near one end. The layout is versatile, providing ample room for a variety of uses such as a recreation area, media room, or additional living space. Window placements along one wall suggest potential for natural light, helping to create a bright and inviting atmosphere despite being below ground level. The clean, unpartitioned design offers flexibility for future customization, while architectural features like the dual sink area hint at possible inclusion of a wet bar or utility setup within this substantial basement floor.
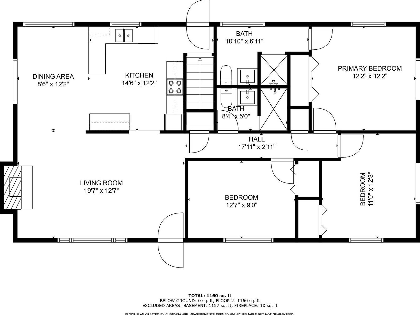
Floor Plan Overview

This spacious layout encompasses 1160 square feet on the main floor, featuring a thoughtfully arranged living room, kitchen, dining area, and three bedrooms. The living room, measuring nearly 20 by 13 feet, anchors the home with expansive window placement for natural light and a fireplace focal point. Adjacent is an open-concept kitchen with modern appliances and a connecting dining area. The sleeping quarters include a primary bedroom with direct access to a bathroom, along with two additional bedrooms sharing a second bath. Hallways and strategic door placements maximize flow and privacy in this well-balanced design.
Rustic Living Room

This cozy living room features a grand stone fireplace as the centerpiece, adorned with a rustic log mantle and a striking Native American-inspired textile hanging above. The room’s walls and ceiling are made of warm, rich wooden logs with visible beams that enhance the cabin-like ambiance. Comfortable seating includes plush red armchairs and a large tufted leather ottoman, framed by traditional patterned rugs. The space is accented with nature-inspired decor, such as mounted animal heads, including a bear and an elk. Soft lighting from table and wall lamps adds warmth, while large windows invite natural light, creating a welcoming retreat.
Rustic Living Area

This expansive rustic living space features rich, natural wood log walls and exposed beams that create a warm, cabin-like atmosphere. Large windows along one wall flood the room with natural light, enhancing the wood’s golden hues. A cozy seating area consists of a deep green leather sofa and two plush red armchairs, arranged around a tufted leather ottoman atop a traditional patterned rug. Above, a striking antler chandelier and a suspended wooden canoe add unique rustic charm. A round wooden dining table with chairs sits near the windows, adjacent to a dark wood piano, complementing the inviting, earthy color palette and handcrafted details throughout.
Dining Room with Fireplace

This dining room features a warm, rustic ambiance with rich wood paneling covering the vaulted ceiling and walls, complemented by large windows that flood the space with natural light. The long wooden dining table, surrounded by ten dark leather chairs with nailhead trim, offers ample seating for gatherings. A stone fireplace with a tall chimney is the room’s focal point, adorned with a framed artwork above the mantel. Antique red and cream patterned area rug adds texture and contrast to the hardwood floor. An antler chandelier hangs from the ceiling, enhancing the lodge-inspired aesthetic accompanied by elegant curtains and classic wooden furniture.
Kitchen Countertop and Stove

This kitchen features a long countertop with beige cabinetry and granite surfaces, creating a warm yet elegant workspace. The walls and ceiling are clad in rich, honey-toned wood paneling that extends up to a vaulted ceiling, enhancing the rustic, cozy ambiance. Large windows above the sink flood the space with natural light and offer outdoor views. A prominent stainless steel Viking range and hood dominate the cooking area, flanked by neatly organized spice racks. The design skillfully blends modern stainless steel appliances with traditional wood elements, offering both functionality and charm in the heart of the home.
Rustic Kitchen Island

This spacious kitchen showcases a warm, rustic design, dominated by rich wooden walls, ceilings, and floors that create cozy cabin-like ambiance. A large island with a polished wooden countertop takes center stage, featuring ample drawers and cabinets in a contrasting reddish-brown tone, enhancing both storage and preparation space. Above, modern rectangular pendant lights hang along a wooden beam, providing soft, balanced illumination. Along the far wall, a stainless steel range hood and stove contrast with off-white cabinetry and granite countertops. Windows line the walls, inviting natural light and outdoor views, while a small dining nook with simple wooden chairs adds charm and function.
Cozy Breakfast Nook

This intimate breakfast nook is nestled within a warmly paneled wood interior that evokes a rustic cabin charm. The space features rich honey-toned wooden walls and floors, complemented by exposed ceiling beams that enhance the verticality and open feel. A solid wooden dining table is surrounded by four matching chairs, each adorned with intricately carved backs and upholstered seats in a red and cream floral pattern. A plush red rug anchors the seating area, adding depth and color contrast. Two large windows let in natural light while offering serene forest views. Pendant lights with square frames hang above the table, casting a soft, inviting glow. Built-in shelves house a coffee machine and neatly displayed mugs, integrating functionality seamlessly into the cozy setting.
Cozy Loft Library

This intimate loft space feels like a warm retreat, characterized by rich wood paneling and sturdy log beams that arch overhead. Built-in shelves lined with vintage books, framed photos, and decorative artifacts add personal charm and a sense of history. The cabinetry below features glass fronts, subtly showcasing more collectibles. The angled ceiling slants dramatically, contributing to a cozy, cabin-like vibe. A colorful, patterned runner rug with red, gold, and black tones brightens the warm wood floors, adding texture and visual interest. Soft recessed lights highlight the detailed craftsmanship throughout this inviting nooks area.
Upstairs Loft Hallway

This upstairs loft hallway in a log cabin home features warm, rustic design with exposed log beams and thick wooden railings framing the walkway. Rich honey-toned wood covers floors, walls, and ceiling, enhancing the natural ambiance. Vibrant southwestern-style rugs bring colorful geometric patterns to the floor. Built-in wooden shelving lines one wall, filled with books and quaint decor pieces like pine cones and pottery. At the end is a cozy office nook with a wooden desk positioned near a window that allows natural light to fill the space, balancing rustic charm with functional comfort.
Cozy Reading Nook

This quaint corner exudes warmth with its rich honey-toned wood paneling and ceiling that envelop the space in a natural cabin-like charm. Large windows wrap around two walls, flooding the nook with natural light and offering scenic views of the surrounding trees. A deep brown leather armchair, draped with a red and black plaid throw, sits invitingly beside a vintage-style floor lamp with a fringed shade. Below, a patterned area rug in reds and dark hues anchors the space, while a small rustic wooden footstool and a side table complete the cozy, serene retreat perfect for reading or relaxing.
Rustic Master Bedroom

This cozy master bedroom embraces a warm, rustic cabin aesthetic with extensive natural wood paneling covering the walls and vaulted ceiling. The large wooden bed frame features intricate carvings and plaid fabric inlays, complementing the plaid bedding and Southwestern-patterned pillows. Soft amber lighting from bedside sconces and a vintage-style table lamp creates a welcoming ambiance. The room includes large windows framed by a geometric valance, allowing natural light and forest views. Richly patterned oriental rugs and a leather armchair with a blanket complete the inviting, nature-inspired retreat.
Rustic Bathroom Details

This cozy bathroom features a warm, rustic design with extensive use of natural wood paneling on walls and floors, creating a cabin-like ambiance. A large, framed mirror with a distressed wood look hangs above a wooden vanity topped with a tan granite countertop and bronze fixtures. Near the vanity, a white toilet sits beside two windows with wood frames that allow natural light while offering views of the surrounding trees. The window valances and a floor rug incorporate bold Native American-style geometric patterns in red, black, and gray, adding vibrant cultural accents to the earthy tones. Red towels and thoughtful accessories complete the inviting and natural aesthetic.
Cozy Cabin Bedroom

This bedroom exudes a rustic cabin charm, featuring warm, natural wood paneling on walls and ceiling that creates an inviting, cozy atmosphere. The sloped ceiling adds architectural interest, complemented by a mounted antler display that enhances the woodland lodge aesthetic. Large windows allow abundant natural light and showcase the surrounding forest, framed by a red and black valance that adds a touch of color. A wood-burning stove offers both warmth and ambiance, while a comfortable bed with plaid and striped bedding invites relaxation. The space is finished with a patterned blue rug, wood furniture, and a small seating nook near the windows for peaceful moments.
Rustic Bedroom Retreat

This cozy bedroom features a warm, all-wood interior with knotty pine walls and ceiling that create a cabin-like atmosphere. A handcrafted log bed with natural bark texture serves as the centerpiece, dressed in black-and-white plaid bedding with a red accent pillow reading “CAMP.” Flanking the bed, two vintage-style nightstands blend rustic charm and practicality. Several framed nature-themed artworks adorn the wall above the bed, illuminated by a dual wall-mounted lamp with industrial undertones. A small window lets in natural light while a Native-inspired textile accentuates the window trim, enhancing the overall wilderness lodge aesthetic.
Rustic Bathroom Details

This charming bathroom exudes warmth through its extensive use of natural wood, covering the walls, ceiling, and cabinetry. The countertop features a polished, rich brown surface complementing the wood tones. A large, framed mirror with a rustic, geometric pattern hangs above the sink, illuminated by two lantern-style light fixtures. The space benefits from abundant natural light streaming in through three large windows, trimmed in matching wood, dressed with bold red and black valances with a zigzag design. The white toilet contrasts subtly with the wooden backdrop, while a red-striped rug adds a pop of color to the hardwood floor, enhancing the cozy cabin-like atmosphere.
Shower Detail

This shower features a stylish combination of dark, textured stone tiles arranged in both stacked rectangular and smaller square mosaic patterns, creating a sophisticated contrast. A sleek glass door with a sturdy, black metal handle adds a contemporary touch while allowing the rich textures and earthy tones of the wall tiles to remain the focal point. The shower control is a brushed metal fixture, blending seamlessly into the overall design. The warm wooden frame visible on the right side introduces a natural element, enhancing the modern yet inviting atmosphere of the space.
Sauna Hallway

This warm, inviting hallway leads to a private sauna and features rich wood-paneled walls and ceiling, characteristic of rustic cabin design. The natural wood tones create a cozy, earthy atmosphere complemented by soft lighting fixtures overhead. On the right, a tall open shelving unit neatly displays folded gray towels and bath essentials, enhancing both functionality and style. Two framed artworks add subtle decoration on the left wall. The large glass door to the sauna reveals wooden benches inside, offering a glimpse of relaxation space. A light-patterned rug adds texture and warmth underfoot, balancing the dominant wood materials.
Private Soaking Tub

This cozy bathing area centers around a deep, built-in soaking tub encased in rich, warm-toned wood paneling that stretches across walls and surrounds the tub. Natural light floods in through a set of large, multi-paned windows offering serene views of lush greenery outside. Above, three unique, sculptural pendant lights with layered leaf-like designs provide artistic illumination, enhancing the space’s tranquil ambiance. A piece of framed artwork on the wall introduces subtle color and nature-inspired elements. The space combines rustic charm with modern comfort, creating a perfect retreat for relaxation and quiet reflection.
Bedroom Hallway

This narrow hallway leads to a cozy bedroom, showcasing a charming rustic cabin aesthetic. On one side, a beautifully crafted wooden cabinet with natural twig and bark details adds texture and warmth. The opposite wall features rugged gray stone, offering a natural contrast to the smooth wooden floor planks, which extend throughout the space. The bedroom ahead includes angled wooden ceilings and wood-paneled walls, enhancing the cabin’s inviting atmosphere. A patterned red rug and a wood stove visible beyond the doorway contribute to the space’s comfort and traditional rustic style.
Cozy Bedroom Entrance

This passageway leads into a charming rustic bedroom, defined by natural wood paneling that envelops the walls and ceiling, creating a warm and inviting cabin-like atmosphere. The doorway frames a glimpse of a quaint bed adorned with cozy, layered bedding in soft whites and patterned textiles that add subtle color and texture. To the left, a wooden nightstand complements the wood tones with a vintage, well-worn finish. A pair of wall-mounted lamps provide soft ambient lighting, highlighting framed art and decorative elements that enhance the room’s cozy, traditional aesthetic.
Rustic Bedroom Retreat

This cozy bedroom features extensive natural wood paneling on walls, ceiling, and floor, creating a warm, lodge-like ambiance. The centerpiece is a sturdy rustic wooden bed with checkered and plaid bedding in earthy tones complemented by a colorful, patterned area rug that adds texture and vibrancy. Twin bedside tables with lamps provide balanced lighting, while framed nature-themed artwork adorns the walls, enhancing the cabin feel. Large windows framed with heavy drapery invite natural light and views of the forest outside, perfectly blending indoor comfort with the outdoors. A ceiling fan adds functional charm to the space.
Bathroom Vanity Area

This cozy bathroom features warm, natural wood paneling on all walls, creating a cabin-like atmosphere. The vanity is crafted from rich, medium-tone wood with a granite countertop and an inset copper sink, complemented by dark metal fixtures. A large wooden framed mirror is flanked by two classic wall sconces with soft lighting, enhancing the inviting ambiance. Above the white toilet, a black metal towel rack holds neatly folded and hanging towels, adding both function and rustic charm. The space is accented with nature-themed decor, including a landscape painting and a carved wooden plaque, maximizing the rustic aesthetic.
Cozy Rustic Bedroom

This bedroom exudes rustic charm with its warm, natural wood paneling covering walls, ceiling, and floor, creating a seamless, cozy cabin ambiance. The centerpiece is a striking, handcrafted wooden bed frame with a unique woven branch design, adding an organic, artisanal touch. Floral and gingham bedding complements the earthy tones, enhancing the inviting feel. Soft lighting from wall sconces and a floor lamp adds warmth. The window nook features plush cushions and an ornate floral valance that filters daylight, making it a delightful reading corner. A ceiling fan adds functionality, blending modern comfort with rustic elegance.
Sunroom Seating Area

This cozy sunroom features expansive wood-paneled walls and ceiling complemented by warm hardwood floors, creating a rustic yet inviting atmosphere. Three large, grid-style windows let in natural light and offer peaceful wooded views. The seating arrangement consists of two dark wicker chairs with plaid cushions flanking a small red table, with a round wicker lounge chair clothed in a striped throw and floral pillow nearby. Subtle decorative touches include a potted fern and framed wall art, while ceiling fixtures offer both ambient and ceiling fan ventilation for comfort and charm.
Cozy Reading Nook

This quaint corner offers a warm, inviting reading nook with rustic charm, featuring natural wood paneling on walls and ceiling, complemented by a stone accent corner. The furniture consists of wicker pieces including a loveseat and chair with striped and floral cushions, alongside an American flag pillow, creating a homey, eclectic vibe. A woven coffee table holds an assortment of books, while a small plaid rug anchors the space. Soft pendant lights hang from the ceiling, providing cozy illumination. Decor elements like a vintage checkerboard and bird-themed books emphasize a relaxed, cabin-style aesthetic perfect for quiet moments.
Cozy Rustic Living Room

This inviting living room features a warm, rustic aesthetic with exposed wooden beams and wood-paneled walls that create a cabin-like ambiance. A large, rugged stone fireplace serves as the focal point, framed by logs neatly stacked to one side. Comfortable seating is arranged for intimate gatherings, including a bold red leather tufted sofa, plush green armchairs, and armchairs with patterned cushions that add texture and visual interest. The room is warmed further by a classic red and cream patterned rug covering the floor. Traditional lamps and soft lighting enhance the cozy atmosphere, making it a perfect retreat.
Recreation Room Details

This cozy recreation room showcases a warm cabin-inspired aesthetic, dominated by rich natural wood finishes on the ceiling, walls, and floors. A large set of triple windows fills the space with natural light and offers a glimpse of the surrounding wooded scenery. The centerpiece is a wooden game table, likely for billiards or a similar game, featuring a black playing surface and contrasting colorful game pieces. An elegant dark leather chair with ornate wooden legs adds a touch of classic charm. The stone accent wall provides textural contrast, while square pendant lights and a ceiling fan with dark blades complement the rustic ambiance.
Rustic Bedroom Ambiance

This cozy bedroom showcases rich, warm wood paneling on the walls, ceiling, and floor, creating a cabin-like atmosphere. A handmade log bed, dressed in a vibrant red, yellow, and black blanket, anchors the room, complemented by a plush bear toy resting on the white pillows. The built-in alcove surrounding the headboard adds architectural interest, illuminated by a dual-light fixture overhead. A rustic rocking chair and patterned red rug enhance the inviting feel. On the walls, framed vintage posters and a small dark wooden dresser with diamond-shaped accents add character. A ceiling fan completes the blend of comfort and rustic charm.
Home Gym

This rustic home gym is enveloped in warm, honey-toned wooden paneling that extends from floor to ceiling and across the ceiling, creating a cozy and inviting atmosphere. The space features a sturdy black workout bench positioned on textured black mats. Against one wall, a well-organized rack holds a variety of black dumbbells, ranging in weight, accompanied by neatly stacked white towels. Two white spinning bikes and a treadmilling machine are aligned beside the bench, offering diverse cardio options. Soft overhead lighting enhances the natural wood hue, while framed artwork and compact wall fans add character and comfort to this efficient workout space.
Walk-In Shower

This walk-in shower features a spacious, open layout encased in rectangular stone tiles in varied shades of gray and cream. The floor showcases a contrasting black and white mosaic tile pattern that adds a refined vintage touch. The wood-paneled ceiling with its warm, natural tones creates a cozy, rustic contrast to the cooler tile walls. Two dark bronze handles control water flow, while a matching rainfall showerhead is mounted overhead. A recessed niche built into the wall offers practical storage for bath essentials. The combination of textures and colors achieves a balanced, elegant yet earthy appeal.
Covered Patio Seating

This cozy covered patio features a round wooden table surrounded by four woven rattan chairs with wooden frames, inviting intimate outdoor gatherings. The natural stone floor complements the rustic, log cabin architectural style, evident in the hefty wooden beams and log railings that frame the space. Beyond the patio, tranquil woodland views reveal tall evergreen trees, enhancing the connection to nature. A stone pillar with a granite top supports the roof, blending durability with rustic charm. The warm earth tones and natural materials create a harmonious, welcoming retreat perfect for outdoor relaxation.
Outdoor Fire Pit Seating

This cozy outdoor space centers around a fire pit, encircled by a dozen light green Adirondack chairs. Each chair is adorned with a red and black checkered blanket, adding a warm and rustic touch. The ground appears to be covered in gravel, while natural stone outlines the fire pit. Surrounding the area, a mix of evergreen and deciduous trees create a natural, serene backdrop with an autumnal feel. Soft lighting, seen along the wooded path, enhances the inviting atmosphere, making it an ideal spot for gatherings in nature, blending comfort and rustic charm.
Waterfront View

This peaceful waterfront setting highlights a serene lake bordered by tall trees and natural foliage. The water’s surface gently ripples under a soft blue sky dotted with wispy clouds, reflecting the surrounding greenery. Bare and evergreen trees blend along the shoreline, creating a tranquil, natural landscape that speaks to quiet outdoor living. This scene suggests a perfect spot for relaxation or outdoor activities near the water, showcasing the beauty of nature and the appeal of a home with direct lake access and scenic views.
Lakefront Dock Seating

This peaceful outdoor space features a sturdy wooden dock extending over calm lake waters, offering a perfect spot for relaxation. Two classic Adirondack chairs, crafted from natural wood, are positioned side by side, facing the serene lake and distant tree-lined shoreline. The dock’s warm wood tones contrast beautifully with the cool blues of the water and sky, creating a tranquil, inviting atmosphere. The scene conveys an ideal lakeside retreat, blending simple amenities with nature’s beauty, encouraging quiet moments of reflection or shared leisure in a scenic, open-air environment.
Cozy Living Room

This inviting living room features warm, honey-toned wood paneling on the walls and ceiling, accentuated by exposed beams that add rustic charm. A large window with deep burgundy curtains frames an outdoor view, flooding the space with natural light. The floral-patterned sofa, complemented by dark red throw pillows and a cozy plaid blanket, faces a sturdy wooden coffee table set atop a richly textured, earth-toned area rug. On one wall, a gallery of family photos sits above a vintage-style side table with a lamp and decor, blending personal touches with classic cabin aesthetics.
Cozy Dining Area

This intimate dining nook features warm, natural wood paneling on the walls and vaulted ceiling, highlighting the rustic charm of the space. A wooden oval table is complemented by two classic chairs and a bench seat, creating a cozy setting for meals. Large windows with plaid curtains on dark rods provide scenic views of the outdoors while allowing natural light to flood in. The antler-style chandelier adds a touch of lodge-inspired elegance above the table. A deep red and white textured rug anchors the dining set, while white cabinetry and granite countertops peek in from the adjacent kitchen, blending comfort with functionality.
Kitchen with Wood Accent

This kitchen features a warm, inviting atmosphere enhanced by rich, natural wood paneling that covers the walls and ceiling beams. The cabinetry is painted white with vertical grooves and adorned with red handles, creating a charming contrast against the wood tones. Granite countertops offer durability and style, extending to form a practical L-shaped workspace. Above the sink, a double window with plaid curtains allows natural light to flood the space and provides a view of the outdoors. The room includes a built-in white dishwasher, a modern black faucet, and decorative open shelving displaying small collectibles. The patterned rug adds color and comfort, complementing the inviting rustic aesthetic of this well-organized kitchen.
Rustic Bedroom Retreat

This cozy bedroom features warm knotty pine wood paneling throughout, including the vaulted ceiling with exposed beams, creating a natural cabin ambiance. A sturdy wooden bed frame with twig design complements the rustic theme, dressed in a thick teal blanket adorned with red and cream stripes. Above the headboard, a large fabric wall hanging depicting Smokey Bear encourages wildfire prevention, adding character and a nod to nature conservation. Soft natural light filters in through a wide window with plaid curtains, while a wooden chair and a nightstand with books complete the intimate, inviting space.
Cozy Rustic Bedroom

This inviting bedroom features natural wood-paneled walls and ceiling, creating a warm, cabin-like atmosphere. The room centers around a handcrafted wooden bed frame with a matching plaid bedding set in deep blues and grays, evoking a cozy, lodge feel. Above the bed, vintage snowshoes add rustic charm as decorative accents. A red wooden rocking chair with a matching pillow stands by a black bedside table, which holds reading materials and a small lamp. Light filters softly through striped curtains on a standard window, complementing the comfortable, nature-inspired design that blends simplicity with nostalgic warmth.
Wooden Bathroom Details

This bathroom combines natural wood and clean white elements for a rustic yet fresh atmosphere. Warm wooden paneling covers the walls, creating a cozy cabin-like feel. A classic white pedestal sink with chrome fixtures stands out against the wood, while the adjacent white tiled shower area adds brightness and contrast. The shower niche holds essentials neatly, and a small inset wooden shelf with a round mirror offers practical storage and grooming space. Neutral brown towels and a cloth bag labeled “hair dryer” complete the understated, functional aesthetic in this compact bathroom corner.
Rustic Guest Bedroom

This cozy guest bedroom boasts a fully wood-paneled interior, including walls and ceiling, creating a warm and inviting cabin-like atmosphere. Two full-sized beds dressed in red-and-black buffalo check blankets anchor one side, complemented by a dark green curtain-covered window for contrast. The seating area includes a plaid armchair and sofa that echo the rustic theme, surrounding a rugged wooden coffee table set on a traditional rug. Decorative touches like antler wall sconces, a bear rug, and soft warm lighting add character and a sense of wilderness charm to this spacious, open layout.
Cozy Cabin Kitchen

This charming kitchen is nestled under a sloped ceiling, enhancing its cozy cabin feel with rich wood paneling covering walls, ceiling, and cabinetry. The warm tones of the natural wood create an inviting atmosphere, complemented by dark countertops that add contrast. The black stove and matching hood radiate a modern touch, while the farmhouse-style sink with rustic bronze fixtures invites functionality and style. Light spills in from dual-pane windows framed by plaid curtains, contributing a homey, nostalgic ambiance. Organized spice jars line a shelf by the window, balancing practicality and decoration. The space is both quaint and utilitarian, with small appliances neatly arranged on the counters, and a soft-patterned rug grounding the floor.
Want to see more from Remodr?

Drop a comment below, share this with your friends and family, and don’t forget to follow us for more fresh ideas, updates, tips, and home trends.
Listing Agent: Dean Schlaak of Edina Realty, Inc. via Zillow