
This stunning property is a custom log cabin exemplifying rustic architectural style, perfectly blending natural materials with a cozy, traditional design. Located in Rome, Georgia, this home offers a unique lifestyle on over 197 acres of private, serene countryside. Built with a focus on sustainability, it includes a complete solar power system with a solar battery backup, ensuring uninterrupted energy supply and adding modern convenience to country living.
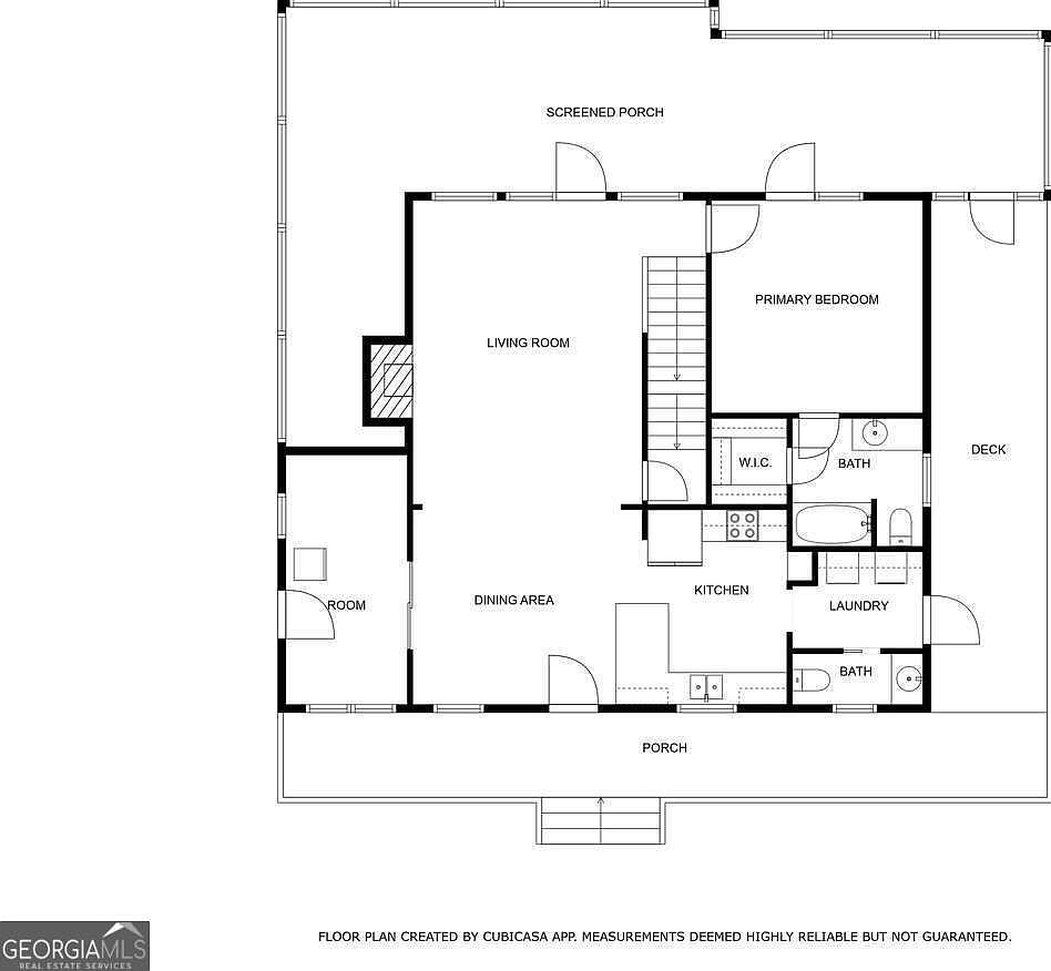
Main Floor Plan

This floor plan reveals a thoughtfully designed layout emphasizing open living spaces and seamless flow. The living room, centrally located, connects effortlessly to both the dining area and the screened porch, fostering indoor-outdoor living. Adjacent to the living spaces, the kitchen is efficiently arranged with access to a porch, laundry room, and two nearby bathrooms. The primary bedroom benefits from a walk-in closet and private bath, positioned for privacy near a deck. Additional rooms include a versatile smaller room and a second bath, balancing function and comfort within a clean, purposeful footprint.
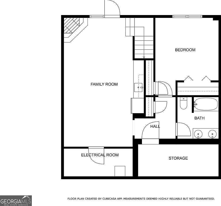
Family Room and Adjoining Spaces

This layout highlights a spacious family room positioned centrally with access to multiple functional spaces. The family room, large and open, features a corner fireplace that anchors the space and adds a cozy ambiance. Adjacent to the family room is a designated electrical room, useful for housing utility equipment discreetly. The layout includes a hall leading from the family room to a bedroom, a bathroom with double vanities, and ample storage space. The stairway nearby suggests access to additional floors. The arrangement provides practical flow and distinct zones for daily living, utility, and personal use.
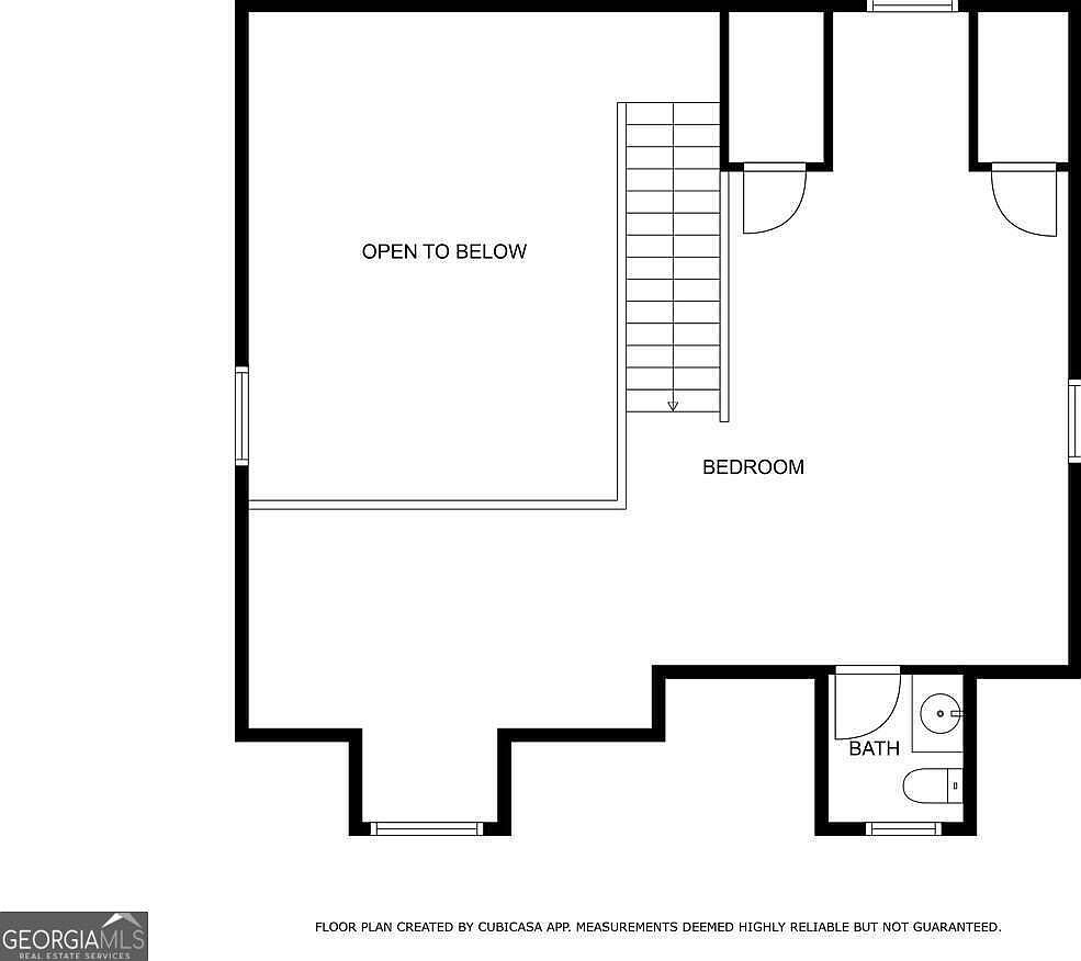
Upstairs Bedroom Layout

This upper-level floor plan features a spacious bedroom area located near the top of the stairs, with two separate closets flanking the entrance to the room. The layout includes an adjoining bathroom that provides privacy and convenience, accessible directly from the bedroom. A significant architectural detail is the large open area labeled “Open to Below,” indicating a vaulted or cathedral ceiling design and visual connection to the floor below, enhancing light and spaciousness. The arrangement promotes a sense of openness and functionality with clear separation of sleeping and storage spaces.
Front Porch

This spacious front porch wraps around the log cabin-style home, showcasing rich, natural wood tones that enhance its rustic charm. The wooden planked flooring and sturdy log walls set a warm and inviting atmosphere, further complemented by a pitched wooden ceiling with exposed beams. Seating includes vintage-style wooden chairs and rocking chairs, creating a perfect spot for relaxation or enjoying the panoramic mountain views. Decorative accents like wreaths, barrels, and a small table with collectibles add personal touches. The porch is bathed in natural light, casting dynamic shadows from the roof structure, enhancing the cozy outdoor living area.
Open-Concept Kitchen & Living Area

This spacious open-plan kitchen and living area showcases a rustic lodge aesthetic with extensive use of natural wood in walls, ceiling, and flooring, complemented by wooden beams overhead. The kitchen features wooden cabinetry with granite countertops and modern black appliances, providing a warm yet functional cooking space. Adjacent to the kitchen, a wooden dining table with woven-back chairs sits on a patterned rug, leading into a living room with cozy seating, a stone fireplace, large windows, and vaulted ceilings with additional windows that flood the space with natural light and offer scenic views.
Rustic Dining and Living Area

This open plan combines a cozy dining space with a comfortable living room, creating a warm, inviting atmosphere. The space features natural wood paneling and exposed beams on walls and ceiling, highlighting the cabin-like rustic charm. A sturdy wooden dining table surrounded by woven-back chairs sits atop a colorful rug with nature-inspired patterns. Above, an antler chandelier serves as a striking centerpiece. The living room includes plush beige and blue seating centered around a stone fireplace topped by a mounted television. Large windows and glass doors flood the room with light while revealing scenic outdoor views, enhancing the tranquil, nature-connected feel.
Rustic Kitchen Countertop

This cozy kitchen features rich wooden walls, ceiling, and cabinetry, creating a warm and inviting rustic ambiance. A polished granite countertop island anchors the space, providing ample workspace with a smooth, reflective surface that contrasts beautifully against the natural wood textures. Dark-hued cabinets offer generous storage, while a farmhouse-style white sink is set beneath a window adorned with lace curtains, enhancing the charming, country vibe. Subtle decorative accents like baskets, ceramics, and a small table lamp add character, while the wide wooden plank flooring ties the entire space into a harmonious, cabin-inspired retreat.
Rustic Kitchen & Dining Area

This inviting kitchen features warm, knotty pine wood on the walls, ceiling, and cabinetry, creating a cozy cabin atmosphere. The center island and countertops are topped with a speckled granite surface, adding durability and elegance. The vintage-style farmhouse sink is positioned beneath a window adorned with delicate lace curtains, allowing natural light to filter in gently. Above the dining area, an antler chandelier hangs, enhancing the rustic charm. Tribal and nature-inspired decor, including woven baskets and animal motifs, further emphasize the home’s country aesthetic, making this space both charming and functional.
Laundry Room Details

This cozy laundry room features natural wood walls and flooring, creating a warm, cabin-like atmosphere. White appliances—a washer and dryer—sit side by side beneath rustic wooden cabinets that provide ample storage. Above the machines, open shelving holds baskets and folded linens, keeping the space organized. A dark wooden door with a window at the far end lets in natural light, offering a view of the outdoors and access to a welcoming porch or backyard. Decorative touches include framed embroidery, vintage-style signage, and neatly arranged jars on an adjacent shelving unit, enhancing the home’s charming, homey feel.
Cozy Living Room

This living room features a warm, inviting cabin aesthetic with natural wood-paneled walls and vaulted ceilings that showcase timber beams. The focal point is a large stone fireplace with a rustic wood mantel, complemented by a wood-burning stove insert. Seating includes a dark leather sofa, a matching recliner, and a cream fabric armchair, arranged around a simple wooden coffee table resting on a patterned area rug. Large triangular windows fill the space with natural light and provide scenic views. Thoughtful decor pieces include mounted animal heads and iron chandeliers, enhancing the rustic, outdoorsy charm.
Rustic Twin Bedroom

This cozy bedroom features a warm, inviting atmosphere with walls, ceiling, and floors made of natural wood planks, emphasizing a rustic cabin aesthetic. Two twin beds with handcrafted wooden frames are dressed in patchwork quilts and gingham bedskirts, adding to the homey charm. A wooden nightstand with a classic lamp sits between the beds, offering functionality and symmetry. The ceiling fan above has a vintage feel with wooden blades and small attached lamps. Red curtains frame a large window or door, allowing natural light to brighten the space. Decorative wreaths and wall hooks with mittens enhance the cozy, welcoming vibe.
Cozy Bathroom Details

This bathroom blends rustic charm with practical design, featuring warm, natural wood paneling throughout walls and ceiling that creates a cabin-like atmosphere. A granite countertop with an undermount sink anchors the vanity, offering durability and contrast to the wooden cabinetry below. Black and white gingham-patterned curtains enhance the cozy, country aesthetic, covering both the window and the bathtub. The window treatments add a touch of softness alongside beige curtains trimmed with nature-inspired embroidery. The space includes neatly arranged towel racks, a simple white toilet tucked beside the granite counter, and soft, plush rugs underfoot completing the inviting, homey ambiance.
Cozy Loft Bedroom

This inviting loft bedroom exudes rustic charm with its natural pine wood-paneled walls and vaulted ceiling, creating a warm, cabin-like atmosphere. A ceiling fan with wooden blades hangs centrally. The bed is adorned with traditional red and white quilted pillows and throw, positioned beneath a small curtained window that lets in soft daylight. A vintage dark wood trunk serves as both storage and a focal point at the foot of the bed. The space includes a wooden dresser with a mirror, an antique side table holding fresh flowers, and a cozy nook with a workspace featuring a desk and chair. The plush off-white area rug adds warmth to the wooden flooring, completing this harmonious, country-style retreat.
Cozy Bathroom

This compact bathroom embraces a warm, rustic charm with natural knotty pine wood paneling covering all walls, complemented by a matching pine ceiling. A large window dressed with delicate white curtains featuring intricate lace trim allows natural light to filter through, brightening the space and highlighting the wood’s golden hues. A dark wood vanity with a polished white countertop offers contrast, paired with a modern chrome faucet and a framed mirror above. Minimal yet tasteful décor, like a leafy green plant, framed artwork, and fresh flowers, adds a welcoming, homey touch to this serene retreat.
Loft Bedroom Retreat

This cozy loft bedroom blends rustic charm with warmth through extensive use of natural wood paneling on walls and ceiling, creating a cabin-like ambiance. The sloped ceiling enhances the intimate feel, complemented by a ceiling fan with vintage-style light fixtures. The bed is dressed with a red and white quilt featuring a traditional pattern, adding a pop of color to the neutral tones. Furnishings include a wooden dresser, a dark trunk at the foot of the bed, and a patterned armchair near the wooden railing. A mounted TV and rustic décor elements complete this inviting mountain-style haven.
Covered Porch Seating

This spacious covered porch features a rustic, wood-dominant design with exposed beams and a vaulted ceiling highlighting the natural grain and warmth of the timber. The floor is made of wide planks of natural wood, complementing the sturdy wood rails enclosed by vertical balusters. Multiple seating options, including woven and wooden rocking chairs, cushioned wicker furniture, and small side tables, are arranged for relaxation and socializing. The porch offers expansive panoramic views of rolling forested hills and clear blue skies, creating a serene outdoor living space that blends comfort with nature.
Rustic Bathroom Vanity Area

This bathroom features a cozy rustic aesthetic, dominated by natural wood paneling on the walls and ceiling, which imbues warmth and texture. The white dual sink vanity, topped with a clean, smooth countertop, adds a fresh contrast against the wooden backdrop. Dark bronze fixtures and hardware on the sinks and towel rings introduce a classic, slightly vintage charm. A lace shower curtain with delicate patterns softens the space, complementing the round white bath rug on the floor. The lighting above the mirrors is bright with frosted glass covers that illuminate the vanity effectively. Small artistic details such as framed artwork and decorative towel hooks create a welcoming, cabin-like ambiance.
Cozy Bedroom Retreat

This charming bedroom features warm wood-paneled walls and a matching ceiling with exposed beams that create a rustic, cabin-like atmosphere. A large window with rich burgundy curtains allows natural light to brighten the space while providing a scenic view outside. The bed is neatly made with a red gingham quilt and matching pillows, adding a touch of country cottage style. A wooden bedside table holds a simple lamp and books, complementing the natural vibe. Soft area rugs and a ceiling fan with ornate light fixtures complete the cozy, inviting aesthetic of this restful room.
Bathroom Vanity Area

This cozy bathroom corner features warm wooden walls complemented by a rich, dark granite countertop atop a rustic wood vanity. The cabinetry showcases natural grain and knots, enhancing the cabin-like charm. Above the sink, a framed mirror with nailhead trim mirrors the earthy tones, accompanied by a pair of classic light fixtures providing soft illumination. A brown towel hangs on a decorative metal ring shaped like grapevines, adding a subtle touch of nature. The window beside the vanity is dressed with deep brown curtains, allowing filtered natural light to softly brighten the space while maintaining privacy.
Want to see more from Remodr?

Drop a comment below, share this with your friends and family, and don’t forget to follow us for more fresh ideas, updates, tips, and home trends.
Listing Agent: Jeremy Austin of Atlanta Communities via Zillow