
This stunning property is a unique blend of mid-century modern and Spanish architectural influences, located in Tucson, Arizona. Set on over 4 acres of land, the home offers breathtaking views of the surrounding mountains and cityscape. The main residence includes 6 bedrooms and 5 1/2 bathrooms, anchored by a private sparkling pool and spa situated in an extravagant courtyard complete with a built-in barbeque. A cozy, private guest home on the property features a kitchenette, one bedroom, bathroom, and a sauna, providing a perfect retreat for visitors. Energy efficiency is a priority with the entire home wired to an expansive solar system, reducing utility bills. Offered at $2,490,000, this meticulously maintained, resort-style property is ideal for luxury living or as a premium Airbnb getaway.
Home Exterior and Driveway

This modern home is nestled within a natural desert landscape, with lush green shrubs and trees surrounding it. The driveway is paved in a smooth, dark asphalt and curves elegantly to the front entrance and garage, framed by rocks and low-maintenance desert plants. The house itself features a clean, white exterior characterized by flat roofs and angular lines. Solar panels are installed on the roof, emphasizing eco-friendly living. The backdrop of rugged mountains enhances the tranquil and remote ambiance, creating a beautiful blend of contemporary architecture and natural beauty.
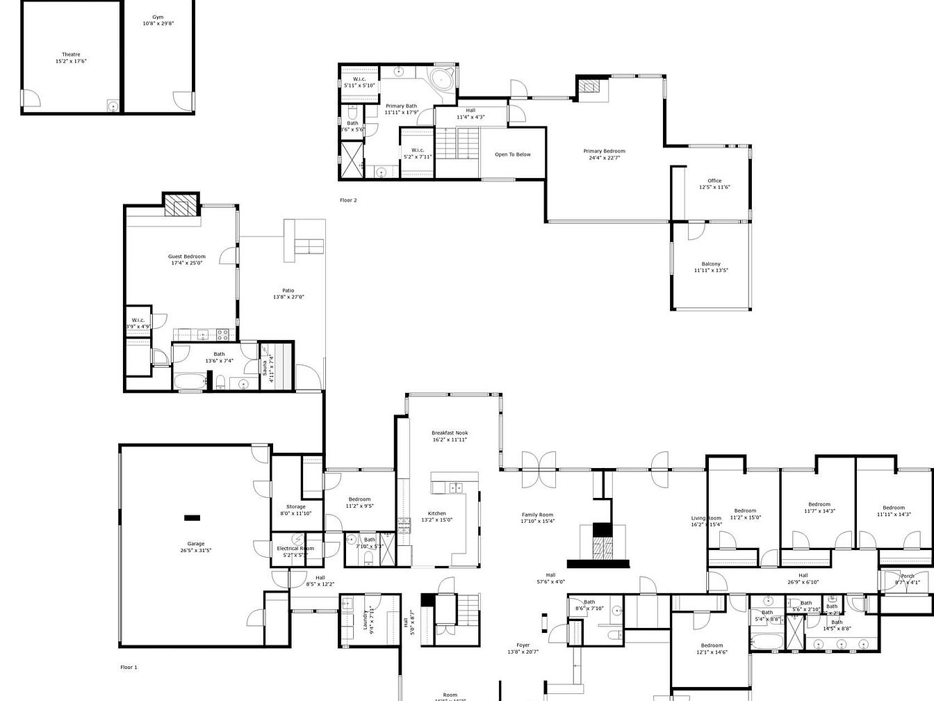
House Floor Plan

This expansive floor plan reveals a sophisticated multi-bedroom home designed for both comfort and functionality. The primary bedroom suite offers a spacious retreat with a walk-in closet, office, balcony, and luxurious bath. The first floor features a large open family room adjoining the kitchen with a breakfast nook, promoting an inviting social space. Multiple bedrooms and bathrooms extend along a long hall, providing privacy and ample accommodation. Additional amenities include a sizable garage, theater room, gym, sauna, laundry, electrical room, and storage, all arranged for optimal flow and convenience throughout the sprawling layout.
Primary Suite Layout

This upper-level floor plan highlights a spacious primary bedroom measuring 24’4″ x 22’7″, designed for comfort and versatility. The bedroom connects to a private office with access to a balcony, bringing a balance between work and relaxation. The primary bath includes dual sinks, a separate bathtub, shower, and a well-sized walk-in closet, offering an organized and luxurious bathing experience. An additional bath and walk-in closets provide ample storage and convenience. The open-to-below area adjacent to the stairs adds architectural interest and spaciousness to the home’s layout.
Living Room with Patio Access

This sunlit living room features rich terracotta floor tiles that extend throughout the space, complementing the warm wood-paneled ceiling and matching wooden trims around the large windows and doors. A deep brown leather sectional sofa is arranged centrally, accented with neutral and soft blue pillows for comfort and subtle contrast. The open layout reveals the adjoining kitchen with wood cabinetry, integrating the living and cooking areas seamlessly. Large glass doors with wrought iron detailing open out to a patio with verdant mountain views, enhancing indoor-outdoor flow. A ceiling fan and recessed lighting contribute to a cozy atmosphere.
Sunroom Dining Area

This cozy sunroom dining area is surrounded by large windows, providing panoramic views of the scenic mountains and lush greenery outside. The space features warm, natural wood paneling on the ceiling and walls, creating a rustic, cabin-like ambiance. The table is sturdy with a polished wooden frame and a reflective, light-colored surface, paired with a leather-upholstered chair and a simple wooden bench, blending comfort with natural aesthetics. The terra-cotta tile flooring adds an earthy tone, while the ceiling fan with soft lighting enhances the room’s inviting atmosphere. Subtle, patterned roman shades complement the wood tones.
Kitchen with Rustic Charm

This kitchen features a warm and inviting rustic aesthetic with its rich wooden cabinetry and exposed wood beam ceiling that add a cozy, natural feel. The terracotta tiled floor enhances the earthy color palette, complementing the medium-toned wood finishes throughout. Stainless steel appliances, including a stove, microwave, and dishwasher, provide modern functionality while blending crisply against the wood and granite countertops. The kitchen island incorporates a double sink and offers an open view to large windows overlooking greenery, ensuring ample natural light and a strong connection to the outdoors. Small details like built-in wine racks and track lighting balance practicality with charm.
Dining Room

This warm and inviting dining room features a classic southwestern style with rich terracotta tile flooring and a natural wood plank ceiling that adds rustic charm. The centerpiece is a long wooden dining table surrounded by matching chairs upholstered in patterned fabric, combining comfort with earthy elegance. Three narrow vertical windows and a large picture window framed in wood allow ample natural light and views of mature trees outside, enhancing the connection to nature. A large decorative ceramic vase and an ornate ceiling light fixture contribute to the room’s handcrafted and cultural aesthetic. White walls create a clean backdrop, balancing the warm wood tones throughout the space.
Master Bedroom Retreat

This spacious master bedroom features a warm, earthy tone with a distinct wooden ceiling that enhances its cozy, rustic charm. The large bed is complemented by soft, neutral bedding in shades of beige and gray. Matching wooden furniture, including a detailed armoire, a nightstand with a lamp, and a bookshelf filled with books, adds to the room’s inviting atmosphere. A comfortable chaise lounge offers additional seating, while a patterned wooden chest serves as both a decorative and functional piece at the foot of the bed. Light beige carpet flooring completes the tranquil space, and a ceiling fan provides air circulation. The room feels both elegant and comfortable, with natural light softly illuminating the space from a window with a scenic outdoor view.
Cozy Home Office

This inviting home office features a warm, rustic aesthetic highlighted by natural wood paneling on the ceiling and window frames. The room is carpeted in a soft, neutral beige that complements the rich wood tones. Three large windows with wooden shutters provide ample natural light and scenic views outside, enhancing the cozy atmosphere. Against one wall, a spacious built-in wooden bookshelf is filled with books and binding files, adding both functionality and character. A classic dark leather swivel chair with detailed armrests offers comfortable seating. A sleek black desk with a decorative piece completes the stylish, practical workspace, illuminated by a ceiling fan with a light fixture.
Bathroom with Tub Nook

This spacious bathroom features a built-in corner soaking tub surrounded by marble-like tile, positioned beneath two large windows that frame a serene mountain view. Natural light floods the space, enhancing the warm tones of the wooden cabinetry and trim. The vanity includes ample storage with multiple drawers and cabinets, topped with a matching countertop and a large wall-mounted mirror bordered in wood. Recessed ceiling lights add modern illumination. The neutral floor tiles complement the calming, earth-toned palette, while a potted plant adds a touch of greenery to the tranquil setting.
Master Bathroom Tub Nook

This luxurious corner of the master bathroom features a built-in jetted soaking tub with a marbled beige surround and brass fixtures, fostering a spa-like ambiance. The tub nook is framed by two large corner windows with wooden trim, bathing the space in natural light and providing a stunning view of desert vegetation and distant mountains. A potted green plant atop the tub ledge adds a touch of nature indoors. The white walls and clean lines emphasize serenity and openness, while a decorative bowl filled with seashells adds a subtle coastal motif.
Covered Patio Seating Area

This inviting covered patio features a warm wooden slatted ceiling with robust beams, creating a cozy alcove perfect for relaxation. A spacious L-shaped wicker sofa adorned with neutral beige cushions and patterned throw pillows provides comfortable seating. A glass-topped wicker coffee table with decorative lanterns adds charm and functionality. The red-toned wooden flooring and railing complement the earthy desert surroundings visible just beyond the low wall, dotted with cacti and shrubs under a vibrant sunset sky. An antique wooden chair with soft cushions offers an additional seating option, enhancing the room’s rustic yet serene aesthetic.
Cozy Bedroom with Desert View

This bedroom features a warm, inviting atmosphere with a neutral color palette highlighted by soft beige carpeting and taupe bedding accented with a single blue throw pillow. A wooden nightstand with a decorative twisted lamp adds rustic charm beside the upholstered headboard. The space includes built-in wooden shelving and a desk area, ideal for reading or work. Large windows framed with natural wood trim showcase a serene desert landscape, bringing natural light and a connection to the outdoors. A white ceiling fan blends subtly with the minimalist ceiling, completing this tranquil retreat.
Bedroom with Built-in Desk

This bedroom features a warm, inviting atmosphere with a mix of natural wood and soft neutrals. The light wood bed frame with subtle ornamental carvings anchors the room, complemented by a pale blue bedspread and patterned throw pillows. Brown carpeting adds warmth underfoot, coordinating with the rich wood of the built-in desk and shelving unit that fits neatly into one corner. The large window framed in matching wood allows natural light, enhanced by a table lamp on a small bedside table. A ceiling fan with lights hangs centrally, blending style with comfort.
Home Theater Seating Area

This home theater features a dark, immersive ambiance with black walls and ceiling, enhancing the cinematic experience. Plush, brown leather recliners are arranged on two carpeted risers, allowing clear views of the large projection screen at the front. Each seat includes built-in cup holders and small black side tables for convenience. Movie posters adorn the walls, adding personality and a classic film vibe, while a red popcorn machine near the entrance completes the authentic theater feel. The space is cozy yet functional, designed for comfort and an engaging movie night at home.
Want to see more from Remodr?

Drop a comment below, share this with your friends and family, and don’t forget to follow us for more fresh ideas, updates, tips, and home trends.
Listing Agent: Diego Leon of United Real Estate Specialists via Zillow