
This exquisite estate at 3612 Bill Gardner Pkwy in Locust Grove, GA, is a luxurious executive retreat set on an expansive 26-acre plot. The home’s architectural style blends classic and modern elements, showcased in its inviting facade with dormer windows and a spacious garage. Priced at $1,999,799, this property offers premium living with a large center island kitchen ideal for entertaining, a cozy living area, a generous dining space, and a separate den perfect for an office or additional living area. Outdoor amenities are remarkable, highlighted by a private 4.5-acre lake stocked with trophy fish such as smallmouth bass, panfish, and catfish, complemented by a smaller breeding pond. Water activities like fishing and kayaking are easily enjoyed. A cleared and leveled front field serves as a 1,250-foot-long by 250-foot-wide private runway, ideal for general aviation enthusiasts. This estate is truly a one-of-a-kind sanctuary offering the perfect blend of luxury, functionality, and natural beauty.
Main Floor Layout

This detailed floor plan highlights a spacious single-level home designed with practicality and comfort in mind. The central living room, adjacent to the dining room and kitchen, creates an open-concept flow ideal for family gatherings and entertaining. The primary bedroom suite is positioned for privacy, featuring dual closets and a large connected bathroom with a soaking tub. Additional functional rooms include a laundry room conveniently close to the garage, a pantry near the kitchen, and a secondary bathroom. Architecture emphasizes clean lines and logical room arrangement, maximizing use of space and natural movement throughout the home.
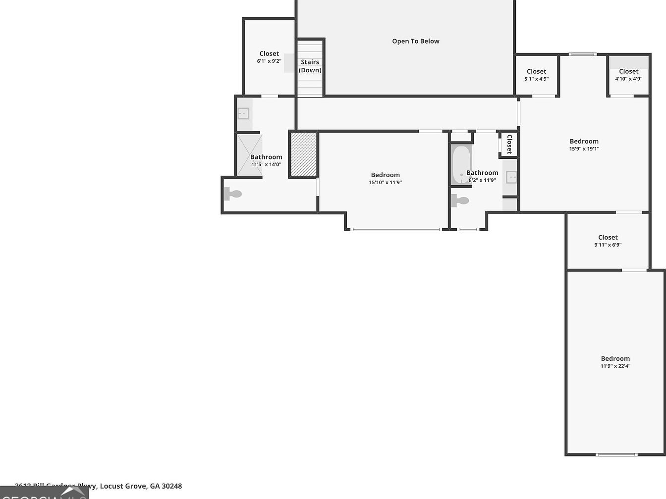
Second Floor Layout

This plan showcases the second floor with three generous bedrooms, each thoughtfully positioned for privacy and comfort. The largest bedroom includes two separate closets, providing ample storage space. Adjacent to this bedroom is a bathroom outfitted with a bathtub, perfect for relaxing. Another bathroom is located near the stairs and features a spacious shower, complementing the nearby bedroom. The hallway provides access to open space below, adding an airy feel and connection to the first floor. This layout balances functional living areas with generous storage and private retreats.
Entryway Details

The entryway features a pair of solid wooden double doors with glass panes, inviting natural light and greenery inside. Walls are painted a soft, neutral gray, complemented by classic white crown molding and baseboards. A simple gray patterned rug adds texture to the warm hardwood floor. On the right, a rustic wooden console table holds a small potted plant, a candle, and a framed photo, while a tall, rounded mirror with a gold frame above reflects light, enhancing the space’s brightness and welcoming ambiance. The design balances warmth and simplicity with natural materials and subtle decor.
Open Living and Dining Area

This spacious open-concept living and dining area features a harmonious blend of neutral tones with beige and cream upholstery complementing the light wooden floors and natural jute rugs. The living space includes plush, comfortable seating with a sofa, loveseat, and armchair with an ottoman, centered around an intricately designed round wooden coffee table. Floor-to-ceiling windows flood the room with natural light and showcase lush greenery outside. The dining space highlights a rustic farmhouse table paired with cushioned chairs, suspended beneath two elegant, geometric pendant lights. Subtle brickwork and wood paneling add architectural interest, while open shelving and soft lighting create a warm, inviting ambiance.
Living Room Details

This living room features a vaulted ceiling painted in white, contrasting beautifully with rich sage green walls for a calming ambiance. The focal point is the brick fireplace with a white mantel extending upwards to support a mounted flat-screen TV, framed by shiplap paneling. Large windows dressed in sheer white curtains bring in natural light and offer views of the greenery outside. The furnishings include a spacious gray sectional, paired with two cream upholstered accent chairs, and a rustic wooden coffee table on a muted, patterned area rug. A large, industrial-style ceiling fan and a black metal wall clock add subtle, modern farmhouse charm.
Kitchen Island Seating

This kitchen features a large central island with a polished white countertop, offering ample space for meal preparation and casual dining. Six upholstered barstools with wooden legs line one side, providing comfortable seating. The cabinetry showcases a contrasting design with rich, dark wood glass-front cabinets flanking the stove, paired with white lower cabinets and open shelving above. Two black metal lantern-style pendant lights hang above the island, casting elegant shadows on the ceiling. The stainless steel refrigerator and sleek appliances complement the modern farmhouse aesthetic, while warm hardwood floors add natural texture.
Dining Room with Lake View

This dining room features a spacious wooden table accompanied by a rustic bench on one side and upholstered armchairs on the ends, with additional rounded-back chairs around it, creating a welcoming setting for large gatherings. Two oversized black metal chandeliers with exposed bulbs hang from the vaulted ceiling clad in white shiplap, enhancing the airy farmhouse aesthetic. Large windows on the far wall flood the space with natural light and offer a serene view of lush trees and a tranquil lake with a small fountain. Dark curtains frame the windows, adding contrast and grounding the neutral, soft-toned upholstery and wooden textures in the room.
Modern Kitchen Layout

This kitchen presents a clean, modern aesthetic blending white cabinetry with warm, natural wood tones. The cabinetry is predominantly white, featuring sleek silver handles, while a rich wooden vent hood and upper cabinets add contrast and warmth. Stainless steel appliances, including a large refrigerator and a professional-style stove, contribute to a polished, contemporary look. Marble countertops and backsplash subtly enhance the overall brightness, complemented by a farmhouse-style sink integrated into the large island. The floor, finished in medium-toned hardwood, anchors the space with natural texture, and soft recessed lighting enhances the inviting atmosphere.
Kitchen Island & Dining View

The kitchen features a large white island with a farmhouse sink and polished marble countertop, providing ample space for meal preparation and casual seating with cream upholstered bar stools. Above, two lantern-style pendant lights add an elegant touch. Stainless steel appliances, including a double-door refrigerator and dishwasher, complement the white cabinetry for a clean, modern look. Warm wood floors extend throughout the open-concept space, enhancing the inviting atmosphere. Beyond the island, a brick column subtly divides the kitchen from the adjacent dining area and living room, where neutral tones and contemporary furnishings create a cohesive, stylish flow.
Walk-In Pantry Storage

This compact walk-in pantry features sleek, built-in white shelving extending from floor to ceiling, creating ample organized storage for household essentials. The shelves are neatly arranged to store everyday items such as plastic cups, paper towels, food storage bags, and a small selection of liquor bottles, emphasizing multifunctional use. A stainless steel trash can with a black liner sits centrally, blending seamlessly with the clean, modern aesthetic. The overall design prioritizes functionality with adjustable shelving and wire racks for additional storage flexibility, showcasing efficient use of space within a crisp, bright color palette that enhances visibility and order.
Bedroom with Workspace

This bedroom incorporates a minimalist design with a neutral color palette dominated by soft gray walls and light wood flooring. A black metal bedframe with simple bedding anchors the sleeping area, flanked by matching black nightstands holding modern lamps. A large beige rug adds warmth and texture underfoot. Toward the entrance, a spacious black desk and hutch provide a functional workspace, contrasting with the light tones of the room. Recessed ceiling lights and a contemporary ceiling fan with wooden blades ensure both proper illumination and ventilation. The layout maximizes openness and practicality in a modern home setting.
Cozy Attic Bedroom Lounge

This inviting attic bedroom features angled white walls and ceiling, creating a snug, intimate atmosphere. A plush bed with a light gray upholstered headboard is centered beneath a double window adorned with black-out curtains framed by unique wall lanterns. Flanking each side are wooden nightstands topped with white lamps. Opposite the bed, a black entertainment center supports a widescreen TV with serene nature imagery. A large textured area rug in muted gray tones softens the warm wood flooring, while a white slipcovered armchair with brown accent pillows adds comfort. A ceiling fan with dark blades completes the space with a modern touch.
Bedroom with Striped Shades

This serene bedroom features a modern yet cozy design, anchored by a large bed dressed in soft white linens paired with black accent pillows. The focal point is a series of tall windows adorned with bold black and white vertical striped shades, adding a graphic element and contrast to the otherwise neutral palette. The walls are painted a light gray, enhancing the room’s calm atmosphere. Warm wood flooring complements black furniture pieces, including a nightstand and dresser, contributing to the sleek and cohesive look. A black ceiling fan offers both style and practicality, while a small plant near the doorway adds a touch of greenery to the pared-down aesthetic.
Bathroom Vanity Area

This bathroom corner features a sleek black vanity with clean, rectangular drawers and gold hardware, topped by a white marble countertop. The elegant gold faucets and soap dispenser complement the vanity’s handles. Above sits a large, eye-catching mirror with a scalloped, gold-edged frame that adds a touch of vintage flair against the crisp white walls. A round, extendable cosmetic mirror in black is mounted on the wall beside the vanity, offering functional detail. The door beside the vanity is plain white with a single gold hook and a black handle, maintaining a clean, minimalist ambiance.
Bathroom Vanity and Shower

This serene bathroom section features a sleek white vanity with clean, simple lines and silver hardware, contributing to a modern yet timeless aesthetic. A rectangular mirror framed in light natural wood adds gentle warmth to the neutral palette dominated by soft whites and pale grays. The floor showcases large marble-style tiles enhancing the room’s airy feel and providing subtle texture. Adjacent to the vanity is a corner with a small built-in cabinet under a sloped ceiling, maximizing space. A glass shower door reveals a white, patterned tile shower area, while a diamond-paned window offers natural light and a glimpse of greenery outside.
Master Bedroom Retreat

This master bedroom features a calm and inviting design with a neutral palette centered around soft whites, warm taupes, and natural wood tones. The room’s focal point is a tall, tufted upholstered bed paired with cozy bedding in shades of gray and rust. Two matching wooden nightstands with wicker doors flank the bed, topped with modern lamps showcasing gold geometric bases. Above the headboard, a collection of small sunburst mirrors adds a touch of artistry. A large rustic dresser with a textured front supports two TVs mounted on the wall. Floor-to-ceiling windows with sheer white curtains lead to a serene outdoor balcony, enhancing natural light and views of tranquil greenery and water. A large, windmill-inspired ceiling fan serves both as a bold design element and functional fixture, while a full-length mirror leans casually nearby. Hardwood floors and a neutral area rug complete the warm, airy atmosphere.
Bathroom Vanity and Tub

This bathroom combines modern and rustic farmhouse styles with a clean, bright layout. The white freestanding soaking tub with sleek, silver fixtures is a focal point, positioned against horizontally paneled white walls. A large window with a soft, white translucent shade allows natural light to fill the space gently. The vanity area features a white marble countertop atop crisp white cabinetry with sleek chrome hardware, offering ample storage. Flanking a rectangular, wood-framed mirror, two wall sconces provide warm ambient lighting, creating a cozy yet polished atmosphere. Dark wood flooring adds depth and contrast to the predominantly white design.
Bathroom Vanity Area

This bathroom vanity area features a clean, coastal-inspired design with horizontal shiplap walls painted in a crisp white. The countertop is a white and gray marble, providing a subtle contrast to the cabinetry below, which is finished in a soft, light gray with sleek silver handles. A large rustic wooden frame surrounds the mirror, adding a touch of natural warmth and texture. Two elegant wall sconces with cylindrical shades flank the mirror, offering ambient lighting. Part of a white, freestanding bathtub is visible in the foreground, enhancing the spa-like, serene atmosphere of this space.
Bathroom and Mudroom Entry

This transitional space combines a compact bathroom and a mudroom entry, showcasing a modern farmhouse aesthetic. The bathroom features white shiplap walls, a simple square sink with a brushed gold faucet, and a wooden vanity with three drawers, topped by a slightly tilted dark-framed mirror and a wall sconce. Adjacent to it, the mudroom entry has built-in white cabinetry with storage hooks and cubbies, paired with a wooden gate that adds rustic charm. Warm hardwood floors run throughout, tying the clean white walls and cabinetry to create an inviting, practical, and cohesive design.
Spacious Home Office and Bedroom

This room serves as a combined home office and bedroom, featuring a practical and open layout beneath a vaulted ceiling that enhances the spaciousness. The walls are painted in a soft, neutral gray that complements the rich, dark wood flooring. Natural light floods the space through two sizable windows, framed neatly in white, creating a refreshing view of greenery outside. On one side, a simple bed with layered blankets invites rest, while a wooden bookshelf organizes books and décor items. The office area includes a large wooden desk with dual monitors, a high-back ergonomic chair, and a multi-compartment laundry sorter on wheels next to the desk, all contributing to a functional yet comfortable workspace. A geometric patterned area rug adds warmth and texture, tying the elements together with understated earthy tones. This room balances utility and coziness, perfect for both productive work and restful moments.
Open Kitchen and Living Area

This spacious open layout blends a cozy living area with a functional kitchen. The living room features a beige leather loveseat facing away from the viewer, positioned centrally in the space. Beyond it, the kitchen spans the right side, with light wooden cabinetry, a stainless steel oven, microwave, and a modern faucet over a light granite countertop. The floor is polished concrete, offering an industrial contrast to the warmer wood tones. Two wide windows allow ample natural light, and simple ceiling-mounted light fixtures illuminate the space. A metal shelving unit holding kitchen appliances and hanging pans adds practicality, while a set of wooden steps leads to a raised platform or possibly another section of the home.
Garage Storage Area

This spacious garage features exposed wooden beams and trusses that add architectural interest while maintaining a rustic charm. The concrete floor is practical and durable, suitable for heavy use. Natural light enters through two side-by-side windows, illuminating the workbench area beneath built-in wooden cabinets with a natural finish. The garage door is a classic white paneled design with a metal track system. A ceiling fan and several round ceiling lights provide ventilation and illumination. Various tools, paint cans, and lawn care equipment are neatly organized, highlighting the space’s dual function for parking and storage.
Porch Seating

This inviting porch features a cozy seating arrangement including a woven loveseat and cushioned chairs with black metal frames, paired with a glass-topped coffee table on wheels. The porch deck is finished with wide wooden planks in a natural, slightly weathered tone, complementing the surrounding crisp white railing. The house exterior showcases a soft gray siding and a peaked roofline, adding architectural character. Mature trees shade this space, overlooking a serene pond bordered by manicured lawns and mulch beds, creating a peaceful and welcoming outdoor retreat.
Outdoor Fire Pit Area

This serene backyard features a charming circular fire pit constructed with natural stone, surrounded by six gray Adirondack chairs arranged for intimate gatherings. The ground within the seating area is covered with small gravel, bordered by a ring of smooth stones that provides a neat transition to the surrounding pine needle mulch. Towering green trees provide shade and a tranquil canopy overhead, complementing the expansive grassy lawn that extends to a calm pond in the background. The adjacent house’s porch with white railings adds a cozy touch to this inviting outdoor retreat.
Outdoor Pool Area

This serene outdoor pool area features a clean rectangular pool surrounded by wide, light gray stone tiles that create a sophisticated and natural look. Adjacent to the pool is a covered pavilion with a stone chimney, outdoor seating, and a mounted TV, designed for comfort and entertainment. To one side, several lounge chairs are positioned along a low stone wall with trimmed hedges behind them, enhancing privacy. Elevated stone steps lead to a dining area with a table and chairs, blending functional outdoor living with lush greenery and mature trees visible in the background for a peaceful retreat ambiance.
Outdoor Kitchen and Bar

This covered outdoor kitchen and bar area features a natural stone base supporting a sleek, light-colored countertop that wraps around the grilling station. The kitchen is equipped with stainless steel appliances, including a built-in grill and a smoker, blending modern functionality with rustic charm. The ceiling is finished with warm wood planks, highlighted by recessed lighting and a unique windmill-style ceiling fan. Comfortable bar stools with metal frames and mesh seats invite guests to sit and enjoy the scenic backyard view of mature trees and a peaceful pond, creating a perfect spot for outdoor entertaining.
Backyard Pool Area

This serene backyard features a rectangular swimming pool with an integrated spa on one corner, surrounded by a wide, light-colored stone patio that extends around the pool’s perimeter. Neutral beige stone tiles create a clean, natural look, complementing the lush greenery of mature trees and manicured hedges lining the raised stone wall behind five modern, woven chaise lounges. A cozy stone chimney and a rustic, gray-shingled house with white-trimmed windows and a small porch add charm. The space combines comfort and elegance, blending natural elements with subtle modern design for an inviting outdoor retreat.
Backyard Lake View

A serene backyard space features a lush green lawn leading to a tranquil lake with reflective water. The gently curving shoreline is bordered by a line of tall, leafy trees that bring natural shade and a sense of privacy. Across the water, a dense tree line adds a peaceful, wooded backdrop under a bright blue sky dotted with fluffy white clouds. This outdoor area emanates calm and natural beauty, ideal for relaxing or entertaining with a stunning view of water and greenery that blends seamlessly into the surrounding landscape.
Want to see more from Remodr?

Drop a comment below, share this with your friends and family, and don’t forget to follow us for more fresh ideas, updates, tips, and home trends.
Listing Agent: Jacob V Mullins of Dwelli via Zillow