
This charming waterfront home located in the heart of Ocean Springs, Mississippi, exemplifies a relaxed coastal architectural style with contemporary influences. Featuring a single-story design with a low-pitched roof, arched entryway, and clean white brick exterior accented by dark trim, the home blends simplicity and elegance thoughtfully tailored to the coastal environment. This spacious residence offers 5 bedrooms and 2.5 baths with ample living spaces including two living areas, each enhanced by cozy fireplaces, ensuring comfort and warmth. The kitchen is equipped with gleaming stainless steel appliances and provides excellent functionality for both everyday meals and entertaining guests. Located in the award-winning Ocean Springs School District and conveniently close to schools, shopping, entertainment, and major transportation routes, this waterfront gem is listed for $549,000.
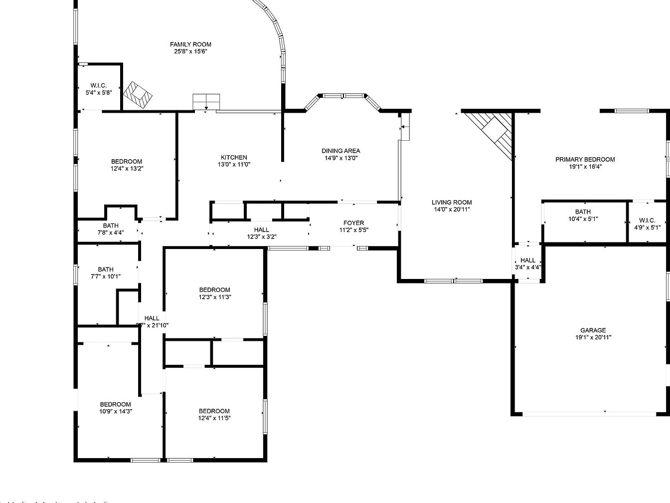
House Layout Overview

This detailed floor plan reveals a spacious, thoughtfully organized home featuring five bedrooms and multiple bathrooms. The layout centers around an open family room adjacent to the kitchen, which provides easy access to the dining area and foyer. Bedrooms are grouped along hallways for privacy, with a primary bedroom situated separately with its own walk-in closet and bath. The generous garage connects internally through a small hall near the primary suite. Overall, the design balances communal living spaces with private quarters efficiently, displaying practical flow and functional zoning for family comfort.
House Floor Plan

This detailed floor plan presents a spacious single-level home layout with multiple bedrooms and shared living spaces. The layout includes a large family room with curved windows, a kitchen adjacent to a dining area, and a separate living room featuring a fireplace. The primary bedroom boasts an en-suite bath and walk-in closet. Two additional bathrooms serve the other bedrooms, which are grouped in a separate wing for privacy. The design integrates hallways for easy navigation between rooms and an attached garage providing convenient access to the home. This layout balances private and communal spaces efficiently.
Entryway and Hallway

Warm wooden accents greet you with a beautifully carved front door featuring intricate oval glass panels flanked by sidelights with matching decorative glass. The hallway extends deeper into the home, its white walls brightening the space and highlighting the light wood-look tile flooring that runs throughout. A modest wooden console table complements the door’s rich tones, accompanied by a rustic cornice mounted above for hanging hats and coats, fostering a cozy welcome. Soft lighting from a faceted globe ceiling fixture adds gentle ambiance, showcasing a neat, functional path that leads toward the kitchen and other living areas.
Living Room Details

The living room features an open, inviting layout with light gray walls that create a calm, neutral backdrop. The flooring resembles wide plank wood with a distressed finish, adding rustic charm. Seating includes two large brown leather sofas and a matching armchair adorned with textured throw pillows and a cozy blue blanket. A ceiling fan with wooden blades offers both style and function overhead. A whitewashed brick fireplace anchors one wall, complemented by a wooden mantel. French doors provide access to the outdoor deck, allowing natural light to fill the space and enhance the airy feel.
Dining Room with Bay Window

This dining space features a large, dark wood table paired with eight high-backed chairs upholstered in a muted gray fabric. The floor is finished with wood-look tile planks, adding warmth and texture to the room. One wall showcases a prominent bay window overlooking a natural outdoor scene, allowing ample light to flow in, enhancing the neutral gray walls. A bronze-finished chandelier with three frosted glass shades hangs centered above the table. To the left, a narrow wooden console table with decorative tile faces is neatly styled with a lamp and personal items, balancing functionality and charm.
Modern Kitchen Layout

This kitchen features a contemporary design with a neutral palette emphasizing gray cabinets with a subtle wood grain finish. The cabinetry stretches across the wall, offering ample storage and housing sleek stainless steel appliances including a microwave, stove, and dishwasher. The countertops display a muted marble pattern that complements the cabinetry. Light-colored walls and a textured ceiling enhance brightness from the central flush-mount ceiling light and pendent lighting over the adjacent island. The floor resembles wide wooden planks in warm tones, adding natural warmth. An open doorway connects the kitchen to a dining area with large windows showcasing outdoor greenery.
Recreation Room Details

This spacious recreation area features rustic wood-look flooring with varied tones that add warmth and texture. A whitewashed brick wall houses a striking black vintage-style fireplace with a curved hearth, creating a focal point with a cozy feel. The room is illuminated by abundant natural light streaming through multiple large windows and glass doors leading outside. A large flat-screen TV is mounted above the French doors, ideal for entertainment. The centerpiece is a wooden pool table decked out as a detailed play surface. Additional seating, a stationary bike, and ceiling fans balance function with relaxed living in a neutral, inviting palette.
Master Bedroom Retreat

This spacious master bedroom features a calming neutral palette with light gray walls and warm wood-toned flooring, creating a peaceful retreat. A large bed with a soft, light gray comforter anchors the room, with matching wooden nightstands on either side. French doors with built-in blinds open to an outdoor space, allowing natural light to flood in. Opposite the bed, a dark wooden dresser topped with a matching mirror displays personal items, while a small desk with dual monitors fits neatly in the corner, blending practicality with comfort. Ceiling fan lighting complements the serene ambiance.
Bathroom Vanity and Shower

This bathroom features a clean, modern design with soft gray walls that provide a subtle backdrop for the bold navy blue shower curtain with a chevron pattern. The white vanity offers ample storage with classic cabinetry and a smooth countertop that holds a single sink with a sleek, contemporary faucet. Above the vanity, a large framed mirror adds depth and reflects light, supplemented by a two-light fixture with frosted glass shades. Coordinated navy towels and a matching blue bath mat complement the shower curtain, tying the color scheme together with a polished wood-look floor adding warmth.
Bedroom Workspace

This cozy bedroom features a calming blue color scheme on the walls, paired with light wood-toned plank flooring that adds warmth and texture. The space efficiently combines rest and productivity with a black cushioned headboard bed dressed in a rich navy comforter. Opposite the bed, a compact workspace includes a black desk with a gaming-style chair, positioned for natural light from two large windows draped in sheer white curtains that brighten the room. A multi-compartment storage unit stands nearby, holding books, bins, and a small TV, while a ceiling fan with wooden blades meets both function and style overhead.
Bathroom Details

This compact bathroom combines functionality with a subtle modern aesthetic. The color palette features soft gray walls that enhance the space’s brightness, offset by a white toilet and a matching vanity with a smooth countertop. A rectangular mirror with a simple frame hangs above the sink, reflecting light to further open the room visually. The faucet and towel ring are finished in brushed nickel, contributing to a cohesive, understated look. Dark wood-inspired flooring adds warmth and contrast to the space. The corner countertop holds a cheerful blue soap dispenser, adding a touch of personality to the clean, streamlined design.
Children’s Bedroom Details

This cozy child’s bedroom features a rustic yet playful style, centered around natural wood finishes and vibrant accents. The small wooden bed with simple slats is paired with a striped blue, white, and gray comforter, complementing the room’s muted gray walls. The flooring mimics weathered wood planks, adding to the warm, cottage-like feel. A colorful play mat with a city road design covers part of the floor, encouraging imaginative play. A wooden toy chest overflowing with trucks and cars sits beneath a deep blue curtain covering the window, while a wicker basket and a small basketball hoop add character and practicality. A ceiling fan with dark wooden blades provides comfort and blends with the overall aesthetic.
Spare Room & Storage

This cozy spare room features calming blue-gray walls paired with white trims and doors, creating a clean, modern look. The floor showcases a textured wood-style laminate with varying shades that add warmth and character to the space. A pair of white bi-fold closet doors provide hidden storage, while an open single door leads to an adjoining room or hallway. A simple yet elegant artwork hangs on one wall, bringing a touch of personality. The room currently holds a small bench stacked with boxes and framed items, suggesting flexible use for storage or a home office setup.
Bathroom Vanity Area

This bathroom features a clean and streamlined vanity with a white countertop and cabinetry, complemented by a silver-framed mirror spanning the length of the sink. The walls are painted a soft, calming blue-gray, contributing to a serene atmosphere. Above the mirror, a modern light fixture with three frosted glass shades brightens the space. The flooring is a realistic wood-look tile in neutral grayish-brown tones that adds warmth and texture. Accents include a small window dressed with a white ruffled valance, a navy-blue shower curtain, and minimal decorative touches like framed artwork and a wicker tray holding toiletries for a subtle, cozy touch.
Laundry Room Storage

This compact laundry room features a practical layout with a white top-load washing machine and matching dryer standing side by side beneath a wall-mounted wooden cabinet. The cabinet has a rich cherry finish, providing a warm contrast against the light, neutral walls. Inside the cabinet are laundry essentials and cleaning products, while a wicker basket hangs discreetly on one side. Adjacent to the washer and dryer is a large Whirlpool water heater with additional household supplies resting on top. Natural light filters through a window partially visible to the right, brightening the otherwise utilitarian space.
Backyard Deck and Pool Area

This inviting backyard deck extends from the home’s white brick exterior and features rich, natural wood planks with a fresh, slightly wet finish, enhancing the rustic feel. The deck’s wooden railing offers safety and a streamlined look, leading down to a charming circular above-ground pool, surrounded by lush greenery. Mature trees provide ample shade and create a serene atmosphere, blending beautifully with the estate’s natural setting. Beyond the pool, expansive views of the water and open greenery add to the picturesque and tranquil outdoor space, ideal for relaxation and entertaining.
Outdoor Deck Seating Area

This inviting outdoor deck features polished wooden flooring with a rich, warm tone, complemented by a natural wooden railing that blends seamlessly with the surrounding greenery. Comfortable cushioned metal swivel chairs surround a round dining table, creating an ideal spot for outdoor meals or socializing. The deck wraps around a curved exterior wall of the home, painted in light gray brick, enhancing the cozy yet refined feel. Large windows offer a view of the interior while allowing natural light to flood inside. Mature trees and a scenic water view add tranquility to this charming outdoor living space.
Backyard Pool Deck

This spacious backyard features a round, above-ground swimming pool centered on a rich wooden deck with a warm, natural finish. The deck includes sturdy railings and stairs for easy pool access, blending functionality with inviting outdoor living. The white brick exterior of the adjacent house contrasts crisply with the earthy tones of the wood, enhanced by lush greenery and mature trees creating a tranquil and private environment. French doors open onto the deck, and a white brick chimney adds architectural interest. The overall feeling is casual, welcoming, and perfect for relaxation or entertaining.
Backyard Deck and Pool

This expansive backyard space features a multi-level wooden deck completed with safety railings and centered stairs leading to the ground level. An inviting round above-ground pool with crystal-clear blue water anchors the outdoor area. Cozy seating arrangements, including white cushioned chairs around a small table, offer comfort and social gathering spots. The home’s exterior includes large curved windows allowing bright natural light. Lush greenery surrounds the yard with mature trees and a scenic river bordered by tall grasses providing a peaceful natural backdrop, adding to the serene water-side ambiance.
Outdoor Deck and Patio

This outdoor space features a large wooden deck with rich, warm-toned planks that appear freshly stained and slightly wet, enhancing the natural wood grain. Steps lead up to a raised porch area that connects to the home’s white brick exterior, highlighted by extensive windows framed in black, bringing an elegant contrast. The deck is enclosed with matching wood railings for safety and aesthetics, merging with mature, leafy trees and bushes that provide ample shade and privacy. Two Adirondack chairs are arranged for relaxing or socializing, next to a planter and a post adorned with keys or tools, creating a cozy, inviting environment perfect for enjoying the adjacent nature view.
Backyard Waterfront View

This backyard offers a tranquil open space with lush green grass gently sloping towards a serene waterfront. The expansive lawn is ideal for outdoor activities or relaxing, bordered by tall grasses near the water’s edge. A sturdy wooden dock extends into the calm river, perfect for boating or fishing. Mature trees provide shade and natural beauty, contributing to a peaceful, natural ambiance. The horizon shows a mix of tree lines and distant houses, blending nature with a quiet residential feel. The bright blue sky and soft clouds enhance the inviting and refreshing outdoor setting.
Waterfront Yard and Dock

A serene backyard space extends from the home’s rear to a private dock on the water. The lawn is lush and green, bordered by a mix of mature trees and bushes that provide natural shade and privacy. A wooden dock stretches into the calm water, offering access for small boats or peaceful shoreline relaxation. The home’s exterior features a wooden deck with railings, perfect for outdoor seating or gatherings, with racks containing colorful kayaks underneath, suggesting a lifestyle emphasizing outdoor water activities. The overall ambiance is tranquil and inviting, blending natural elements with functional outdoor living.
Backyard Dock and Waterfront

This serene backyard space features a wooden dock extending into calm waters, ideal for fishing or boating activities. The dock is connected to the grassy lawn by a small wooden ramp, merging land and water seamlessly. A large tree on the right offers natural shade and a touch of rustic charm to the setting. The surrounding landscape consists of reeds and marsh grasses, blending harmoniously with the tree line visible across the water. The neutral, earthy colors of green grass, brown dock wood, and blue-gray water create a peaceful, nature-inspired aesthetic, perfect for relaxing by the water’s edge.
Want to see more from Remodr?

Drop a comment below, share this with your friends and family, and don’t forget to follow us for more fresh ideas, updates, tips, and home trends.
Listing Agent: Kimberlee E Williams of RE/MAX Real Estate Partners via Zillow