
This charming riverfront home in Millerstown, Pennsylvania, offers a unique blend of classic and modern architectural elements. Featuring a brick addition alongside traditional white siding and a welcoming front porch, the home conveys a cozy, tucked-away paradise feel nestled along the Juniata River. With a listing price of $258,900, this property stands out due to its rare river access from the backyard coupled with the significant advantage of not requiring flood insurance. The house boasts a spacious interior layout with a large living room leading into an eat-in kitchen that overlooks the river, highlighted by double glass kitchen doors opening onto a 19×14 deck—a perfect space for relaxation or entertaining while enjoying the scenic water views. The main level includes a full bathroom and laundry, providing convenience and privacy for guests.
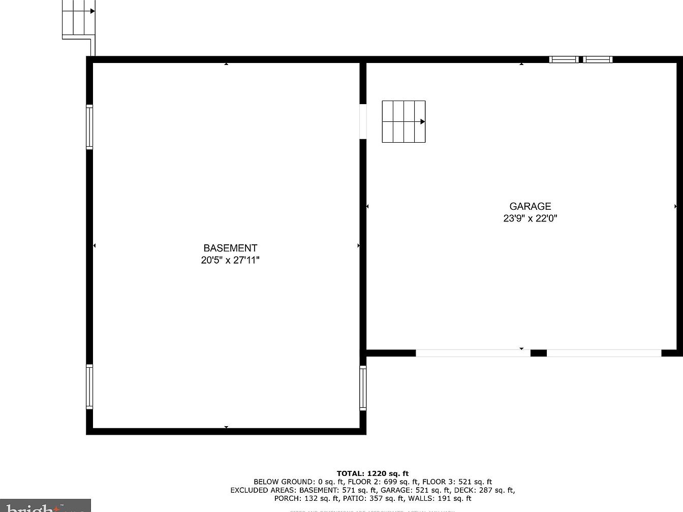
Basement and Garage Layout

This floor plan highlights the underground basement and adjacent garage area of the home. The basement measures approximately 20 feet 5 inches by 27 feet 11 inches, offering a spacious open area that can accommodate various uses such as storage, recreation, or additional living space. Adjoining it is a large garage sized about 23 feet 9 inches by 22 feet, suitable for multiple vehicles and extra storage. The layout features clear separation between the basement and garage with interior stairs leading upward, optimizing accessibility while maintaining functional organization in the home’s lower level.
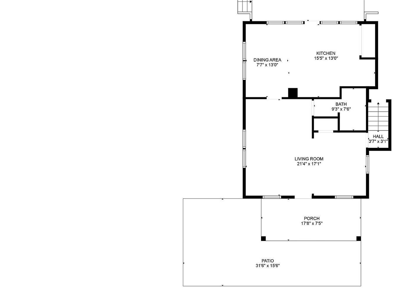
main floor layout

This is a detailed floor plan of the main level of the home, showcasing an open layout with clearly defined spaces. The living room, measuring 21’4″ x 17’1″, anchors the space, providing a large, flexible area adjacent to the kitchen and dining areas. The kitchen is a generous 15’5″ x 13’0″, connected to a smaller dining area that measures 7’7″ x 13’0″ for casual or formal meals. A convenient bathroom is centrally located near the hall and stairway entrance. The plan extends outdoors to a porch (17’8″ x 7’5″) and a spacious patio area (31’6″ x 15’6″), inviting indoor-outdoor living and entertaining possibilities.
Primary Bedroom Layout

This floor plan highlights a spacious primary bedroom measuring nearly 20 by 12 feet, positioned adjacent to a smaller bedroom and bathroom. The primary bedroom’s ample size allows for versatile furniture arrangements and comfort. The design includes two halls connecting the stairway to the bathroom and bedrooms, ensuring a smooth flow between spaces. The bath, compact yet functional, complements the bedrooms. The solid lines and clear dimensions outline a simple, practical layout emphasizing privacy and accessibility while maintaining efficient use of space in a moderate-sized home totaling 1,220 square feet.
Front Porch

This charming front porch offers a welcoming entryway characterized by classic white siding paired with sturdy brick bases supporting white columns. The concrete floor provides a clean, spacious platform highlighted by two lush hanging ferns adding a vibrant touch of greenery. A cozy white wooden bench with decorative pillows sits beside the door, inviting relaxation. Simple potted plants add natural warmth against the backdrop of neutral tones. The porch ceiling is finished with white paneling and recessed lighting, enhancing the airy, bright atmosphere. Surrounding greenery and chalk drawings on the concrete complete this inviting outdoor space.
Living Room Details

This cozy living room features a large, plush gray sectional sofa accented with neutral-toned pillows, creating an inviting space for relaxation. Natural light floods the room through two sizeable windows with white blinds, enhancing the soft gray walls and complementing the warm wood flooring. A wooden front door with glass panels stands adjacent to a window dressed with beige curtains, adding warmth and charm. Floating wooden shelves with curated decorative pieces add subtle personality without overcrowding the space. The overall aesthetic balances comfort with simple, tasteful decor and a neutral palette.
Kitchen and Dining Area

This cozy kitchen features natural wood cabinetry arranged in an L-shape, providing ample storage and a warm, traditional feel. The countertops are light in color, complementing the wood tones and adding brightness. An island with a built-in sink doubles as a casual dining table, surrounded by classic wooden chairs. Large sliding glass doors with rich wood frames open to an outdoor deck, enhancing natural light and connecting this space with the lush greenery outside. The white refrigerator, adorned with colorful magnets, and a coffee maker on the counter lend a lived-in, family-friendly atmosphere. Clean white walls and a high ceiling maintain an airy and welcoming ambiance.
Kitchen Island & Patio Doors

This kitchen features a spacious island with a built-in sink and brass faucet, topped with a smooth, light-colored countertop that contrasts beautifully with the warm wooden cabinetry below. The island is complemented by wooden stools, offering a casual dining or work area. Large sliding glass doors with wooden frames open to a covered patio, visually extending the living space and providing ample natural light while showcasing lush greenery outside. The room’s tone is warm and inviting, with neutral walls, classic wood-framed windows, and subtle decorative elements such as a framed family monogram and a small shelf.
Covered Porch Dining Area

This outdoor porch space is designed for relaxed dining and socializing with a clear view of the surrounding greenery and water in the distance. The wooden deck flooring complements the natural setting, bordered by sturdy wooden railings. A glass-top dining table with six woven black chairs sits centered on a large striped area rug, fostering a cozy yet functional vibe. Two black ceiling fans hang from the paneled cream ceiling, enhancing comfort on warm days. Hanging plants contribute lush greenery, harmonizing with the natural backdrop while a grill suggests this is a perfect spot for alfresco meals and gatherings.
Bathroom Sink and Vanity

This bathroom features a practical and timeless design with a focus on functionality and warm tones. The vanity is crafted from natural wood with a soft oak finish that complements the muted sage green walls. A large wooden-framed mirror with elegant curved detailing spans the length of the vanity area, maximizing light and adding openness. The countertop is a smooth, gray solid surface with an integrated sink, paired with a basic chrome-finished faucet. To the right, a simple white toilet is positioned below a framed landscape painting, while a patterned shower curtain hints at the bathing area, creating a cozy and clean atmosphere.
Master Bedroom Details

This master bedroom exudes a warm, inviting ambiance with its neutral taupe wall color paired with white trim and ceiling. The centerpiece is a large wooden bed frame with a prominent headboard exhibiting rustic, plank-style detailing in a dark stain. Coordinating furniture includes a matching nightstand with a single drawer and an open shelf that holds books, beside a modern table lamp with a beige shade. Opposite the bed, a tall dresser with clean lines provides ample storage. Natural light filters through three windows dressed with soft white curtains, enhancing the cozy, minimalist feel. A plush beige carpet grounds the room, while a contemporary ceiling light fixture adds a subtle modern touch. A discreet wall-mounted air conditioning unit ensures comfort without disrupting the room’s aesthetic.
Cozy Bathroom Nook

This bathroom features a charming corner with sage green woodwork around the windows and cabinetry, creating a soothing and earthy ambiance. Three windows dressed with soft, white sheer curtains tied in the middle allow natural light to gently fill the space, enhancing its airy feel. A quirky wallpaper with colorful animal and botanical patterns adds playfulness and character on one wall, contrasting beautifully with the more muted tones. The grey granite countertop with an oval sink is complemented by a large framed mirror, while a small wooden shelf above the toilet holds decorative and functional items, bringing warmth to this cozy, well-balanced bathroom retreat.
Children’s Bedroom Corner

This cozy children’s bedroom features soft beige walls complemented by neutral-toned curtains adorning two windows, allowing natural light to brighten the room. A wooden twin bed with simple, clean lines sits against the corner walls, dressed in beige bedding with character-themed plush toys and a patterned throw for added warmth. The plush, gray carpet enhances comfort, while a cushioned beanbag plush provides a playful reading spot. The room is thoughtfully organized with mounted shelves displaying children’s books and framed art above the bed, creating a charming and inviting atmosphere conducive to both rest and play.
Backyard and Covered Porch

This expansive backyard features a gently sloping lawn with vibrant green grass that creates an inviting outdoor space. At the center foreground, a circular stone fire pit offers a gathering spot for evening relaxation. A weathered wooden bench sits off to the side, adding rustic charm and additional seating. The back of the house showcases a covered porch with hanging potted plants, supported by wooden posts, providing shade and a cozy area to enjoy nature. Lush trees and dense shrubbery border the yard, lending privacy and a natural, peaceful ambiance to this serene outdoor retreat.
Listing Agent: Taryn Meck of Keller Williams of Central PA via Zillow