
Experience the perfect blend of style, functionality, and comfort with our curated selection of 10 Beautiful 3-Bedroom Homes in New York With Floor Plans. From charming suburban retreats to sleek urban dwellings, these thoughtfully designed homes offer spacious layouts, modern amenities, and timeless architectural appeal. Whether you’re looking for an open-concept living space, a cozy family home, or a sophisticated residence with scenic views, this collection has something for every lifestyle. Explore these stunning homes and find inspiration for your dream New York residence.
1. 3 bedroom House in Middle Village, NY – $975,000

This charming brick townhouse built in 1950 in Middle Village offers three bedrooms and two bathrooms in a 1400 sqft living space combining classic architecture with modern convenience. The covered front porch provides a welcoming entry, while the home’s brick and stone facade add character. Inside, the spacious layout ensures comfortable living, with well-lit rooms and hardwood floors throughout. A finished basement adds versatility, perfect for a home office or recreation space. The private backyard and detached garage offer both relaxation and practicality. Located near parks, shopping, and public transportation, this home is a fantastic opportunity in a sought-after neighborhood.
Where is Middle village?

Middle Village is a quiet residential neighborhood in central Queens, known for its suburban feel, tree-lined streets, and well-kept homes. Originally a farming community, it has grown into a desirable area with a mix of single-family homes, small businesses, and local eateries. Juniper Valley Park serves as the heart of the neighborhood, offering green space, sports fields, and walking trails. Its central location provides convenient access to Manhattan and other parts of Queens, making it an attractive choice for families and commuters alike.
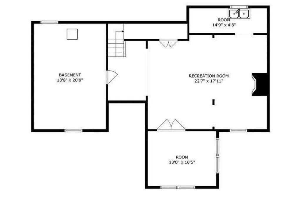
Lower Level Floor Plan

This well-designed basement offers a combination of storage and functionality. A spacious storage area provides ample room for organization, while multiple closets and storage nooks enhance convenience. The hallway leads to a laundry area with washer and dryer hookups, ensuring ease of use. A full bathroom adds practicality, making the space ideal for a guest suite or home gym. With direct access to the backyard, this basement offers flexibility for a variety of needs, from extra living space to a private retreat.
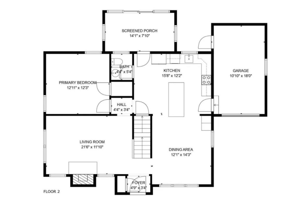
Main Level Floor Plan

This thoughtfully designed first floor offers a seamless flow between spaces. The spacious living room welcomes you with a cozy fireplace, making it ideal for relaxation or entertaining. A dedicated dining room sits adjacent to the kitchen, which features an efficient layout with modern appliances and ample counter space. The entryway includes a closet for convenient storage, while strategically placed heaters ensure year-round comfort. This open-concept design perfectly balances functionality and charm.
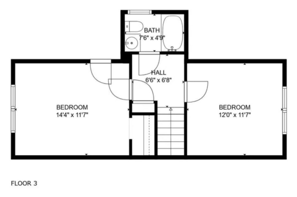
Upper Level Floor Plan

The second floor offers a well-designed layout with two spacious bedrooms, an office, and a full bathroom. The primary bedroom boasts ample closet space and enjoys dedicated A/C, ensuring year-round comfort. A second bedroom features generous storage and natural light. The versatile office provides the perfect space for remote work or creative pursuits. The full bathroom is efficiently designed for convenience. A hallway closet adds extra storage, making this floor both functional and inviting.
Listing agent – Patrick Lennon @ Remax Edge via Zillow
2. 3 bedroom House in Flushing, NY – $1,500,000

Built in 1935, this stunning Tudor home in Flushing on a 6000 sqft lot blends old-world craftsmanship with modern comfort. Offering three bedrooms and three bathrooms, it features a striking stone and brick façade with classic half-timber accents. A beautifully manicured lawn and brick walkway lead to the inviting entrance, framed by mature trees and lush greenery. The arched gateway and distinctive architectural details add to its storybook appeal. A spacious driveway and attached garage provide convenience, while the surrounding neighborhood showcases a serene, tree-lined setting. This home blends historic character with modern livability, making it a standout in a picturesque residential enclave.
Where is Flushing?

Flushing, located in northeastern Queens, is a vibrant and diverse neighborhood known for its rich history and bustling commercial districts. Once a Dutch settlement, it has evolved into a global hotspot with a thriving Asian-American community, renowned for its authentic cuisine, cultural institutions, and shopping centers. The area is home to Flushing Meadows-Corona Park, Citi Field, and the USTA Billie Jean King National Tennis Center. With easy access to public transportation and a dynamic mix of old and new, Flushing continues to be one of New York City’s most energetic and rapidly growing neighborhoods.
Lower level Floor Plan

This well-designed lower level offers the perfect mix of functionality and entertainment. A generously sized recreation room serves as the heart of the space, ideal for movie nights, games, or hosting guests. A separate basement area provides ample storage or potential for a workshop. An additional room adds flexibility—whether as a home gym, guest quarters, or creative studio. A dedicated utility space with a sink adds practicality, while multiple entry points and double doors create an inviting, open feel. With smart layout choices and plenty of room to personalize, this lower level is ready to adapt to any lifestyle.
Main Level Floor Plan

Designed for both comfort and convenience, this main level seamlessly blends function with charm. The curved foyer entry sets an elegant tone, leading to a spacious living room and a well-defined dining area perfect for intimate gatherings. The kitchen is efficiently laid out with generous counter space, flowing naturally into the dining space for easy mealtime transitions. A large family room offers a cozy retreat, while the nearby half-bath adds convenience. The attached garage provides direct access, making daily routines effortless. With its thoughtful layout and natural flow, this level invites both relaxation and entertainment.
Upper Level Floor Plan

The upper level offers a well-balanced layout with three spacious bedrooms and two bathrooms for optimal comfort. The primary suite is a true retreat, featuring a generous walk-in closet and direct access to a full bath. Two additional bedrooms provide ample space, with one boasting an en-suite bath for added privacy. A central landing area ensures easy access to all rooms, while the curved staircase adds a touch of elegance. With its thoughtful design and practical flow, this level is ideal for both relaxation and daily living.
Attic Level Floor Plan

The attic level offers a spacious open area, ideal for storage, a home office, or a creative studio. With its expansive dimensions, this flexible space can be tailored to suit various needs, whether it’s a cozy retreat or a functional workspace. A smaller adjacent room provides additional storage or can be transformed into a compact study nook. The stairwell grants easy access while maintaining separation from the main living areas. This attic level enhances the home’s versatility, offering potential for future expansion or customization.
Listing agent – Keller Williams @ Rlty Landmark via Zillow
3. 3 bedroom House in Glenville, NY – $300,000

This timeless 3 bed, 1.5 bath brick Cape Cod in Glenville, NY, built in 1939 spanning 1904 sqft living space on a 1.47 acre lot offers classic charm with modern potential. Built with enduring craftsmanship, the home features a symmetrical facade, dormer windows, and a slate roof that enhances its storybook appeal. The welcoming front entrance leads to a cozy interior awaiting your personal touch. Set on a spacious lot with a serene wooded backdrop, the property offers privacy and tranquility. A detached garage and extended driveway add convenience, while the surrounding neighborhood provides a peaceful suburban retreat. This home is a perfect blend of character and opportunity in a scenic setting.
Where is Glenville?

Glenville, a suburban town in Schenectady County, blends small-town charm with modern conveniences. Nestled along the Mohawk River, it offers scenic landscapes, outdoor recreational activities, and a strong sense of community. Originally an agricultural and industrial hub, Glenville has developed into a residential haven with excellent schools, parks, and local businesses. Proximity to nearby Schenectady and Albany provides residents with additional cultural and economic opportunities while maintaining the town’s peaceful, family-friendly atmosphere.
Lower level Floor Plan

This home’s basement offers a wealth of functional space, blending practicality with potential. A generously sized open area provides endless possibilities—whether for storage, a home gym, or future finishing. The dedicated laundry room makes household chores a breeze, while a bathroom adds convenience. Two additional rooms offer flexibility for a home office, craft space, or extra storage. With exterior access and ample square footage, this basement is a valuable asset, ready to adapt to your needs.
Main Level Floor Plan

This thoughtfully designed main level offers a seamless flow between living spaces, creating a warm and inviting atmosphere. The spacious living room connects effortlessly to the dining area, making it ideal for gatherings. A well-equipped kitchen, complete with a pantry, provides ample storage. The primary bedroom ensures privacy, while a nearby bath adds convenience. A second living space offers versatility, whether as a cozy den or entertainment area. With a functional entryway and a flexible bonus room, this level balances comfort and practicality.
Upper Level Floor Plan

Designed for comfort and privacy, the upper level features a generous layout with three well-sized bedrooms, including a luxurious master suite. The master bedroom boasts ample space and a walk-in closet, while the additional bedrooms offer cozy retreats. A shared bath is conveniently located for easy access. Unique additions include a sauna for relaxation and an extra flexible-use room. Thoughtfully arranged hallways ensure a smooth flow between spaces, making this level both functional and inviting.
Listing agent – Rebekah O’Neil @ Howard Hanna via realtor.com
4. 3 bedroom House in Yonkers, NY – $699,900

This charming home built in 1900, with 3-bedroom, 2 -bathroom home spans 1,141 sq ft living space on a 2,178 sqft lot at 21 Vernon Place in Yonkers, NY, exudes character and convenience. With its classic gabled roof, crisp white facade, and inviting front entry, this home blends traditional charm with modern potential. The large windows flood the interior with natural light, while the extended driveway and fenced backyard provide ample space for parking and outdoor gatherings. Located in a desirable neighborhood with easy access to shops, restaurants, and Metro-North, this home is a fantastic opportunity to enjoy suburban comfort with city convenience.
Where is Yonkers?

Yonkers, the fourth-largest city in New York State, sits along the Hudson River just north of the Bronx, offering a blend of urban energy and suburban comfort. Once an industrial powerhouse, the city has transformed into a vibrant hub with waterfront developments, shopping districts, and cultural attractions like the Hudson River Museum and Untermyer Gardens. Yonkers is known for its diverse neighborhoods, excellent schools, and easy access to New York City via Metro-North. With a mix of historic charm and modern revitalization, Yonkers continues to be a dynamic and desirable place to live.
Lower level Floor Plan

This basement level offers a spacious and versatile layout, perfect for organization and practicality. The central storage area provides ample space for seasonal items, equipment, or bulk storage needs, while two additional enclosed storage rooms offer convenient separation for smaller belongings. Thoughtful design ensures easy accessibility with multiple entry points, making it simple to store and retrieve items. The open layout also presents potential for a workshop, hobby space, or future customization. Whether maximizing storage or tailoring it to specific needs, this functional space is ready to adapt to any lifestyle.
Main Level Floor Plan

This thoughtfully designed main level blends style and functionality, creating an inviting space for everyday living and entertaining. The expansive living room, with its open flow and natural light, sets the stage for relaxation and gatherings. The adjacent dining area offers an intimate setting for meals, seamlessly connecting to the modern kitchen, complete with ample counter space, a central island, and efficient workflow. Convenient access to the staircase enhances the layout, while the welcoming entryway ensures a smooth transition into the home. Smart design choices make this level a perfect balance of comfort and practicality.
Upper Level Floor Plan

The upper level balances privacy and functionality, making it the ideal retreat. Two well-sized bedrooms provide peaceful sanctuaries, each featuring closet space for effortless organization. A centrally located bathroom with dual sinks ensures convenience for busy mornings. The versatile office space offers a quiet setting for remote work, creative projects, or even a cozy guest room. A well-connected hallway enhances accessibility, while a dedicated storage nook adds practicality. With a layout that prioritizes both comfort and efficiency, this level adapts seamlessly to modern living needs.
Attic Level Floor Plan

The attic provides a balance of leisure and privacy with a spacious bedroom and a versatile recreation room. The bedroom offers ample space and a large closet, ensuring comfort and organization. The recreation room serves as a perfect space for entertainment, hobbies, or relaxation. A well-proportioned hallway connects these spaces seamlessly, with an additional smaller area that can be adapted for storage or other needs. This floor is ideal for those seeking a private retreat while maintaining a functional living space.
Listing agent – Kimberly A. Renzi @ Redfin Real Estate via Zillow
5. 3 bedroom House in Albany, NY- $299,900

This enchanting 3-bed, 2.5-bath brick Tudor in Albany, NY, blends old-world charm with modern comfort. Built in 1941, its spans on 2,025 sqft living space on a 7,841 sqft lot. Its striking façade features steep gables, a rounded arch entryway, and a towering brick chimney, evoking timeless elegance. The rich red brick exterior is complemented by charming architectural details, including a decorative half-moon window and elegant trim accents. A gracefully curved entryway with a contrasting door adds a touch of storybook charm, while the neatly manicured landscaping enhances the home’s curb appeal. The attached garage blends seamlessly into the design, maintaining the home’s classic aesthetic. A perfect blend of historic elegance and enduring craftsmanship, this home’s façade makes a lasting impression.
Where is Albany?

Albany, the capital of New York State, is a historic city that blends government, education, and culture. Located along the Hudson River, Albany boasts a rich past, evident in its colonial architecture and landmarks like the New York State Capitol and Empire State Plaza. Home to prestigious universities and a growing tech sector, the city has seen ongoing revitalization efforts, bringing new businesses and entertainment options to its downtown. With a vibrant arts scene, scenic parks, and a strong political presence, Albany remains an important center for commerce and culture in upstate New York.
Lower level Floor Plan

This basement level offers a spacious and versatile layout, ideal for recreation, storage, or future customization. A dedicated bathroom adds convenience, while the centrally located staircase ensures easy access to the main living areas. The open-concept design allows for flexible use, whether as a family gathering space, home gym, or entertainment area. Thoughtfully placed entry points and an enclosed section near the exterior door enhance functionality. This lower level provides a valuable extension of the home’s living space, ready to be tailored to your needs.
Main Level Floor Plan

This main floor layout offers a well-balanced combination of open and private spaces. The living room serves as a welcoming entrance, seamlessly flowing into the dining area and kitchen, which features a central island for both functionality and gathering. A screened porch at the rear extends the living space, providing a comfortable spot for relaxation. The primary bedroom is conveniently located near a full bath, ensuring privacy. The attached garage offers direct access to the home, enhancing convenience. Thoughtful spatial planning makes this level both efficient and inviting.
Upper Level Floor Plan

This attic level layout includes two spacious bedrooms positioned on opposite sides for privacy. A centrally located bathroom serves both rooms, with a hallway providing easy access. The staircase leads directly into the hallway, maintaining a functional flow. Large windows in both bedrooms allow for ample natural light, enhancing the airy feel of the space.
Listing agent – Jamie Mazuryk @ Core Real Estate via realtor.com
6. 3 bedroom House in Whitestone, NY – $1,988,000

A masterpiece of timeless elegance, built in 1945, this stunning 3-bedroom, 4-bath custom brick home in the heart of Beechhurst, NY, exudes grandeur and sophistication. A stately arched entryway, framed by intricate masonry and luminous glass-paneled double doors, sets the tone for the exquisite craftsmanship found within. The home’s rich red brick façade is beautifully complemented by stone accents and classic columns, while a charming Juliet balcony adds a touch of European-inspired romance. Manicured landscaping and lush greenery enhance the striking curb appeal, creating a private oasis just moments from the waterfront. Combining old-world charm with modern luxury, this residence offers an unparalleled living experience.
Where is Whitestone?

Whitestone, a picturesque waterfront neighborhood in northern Queens, is known for its quiet streets, detached homes, and strong community spirit. With stunning views of the East River and the Whitestone Bridge, the area has long been a retreat from the hustle of the city. A blend of small businesses, parks, and excellent schools makes it an attractive destination for families and retirees. Despite its suburban feel, Whitestone offers convenient access to major highways and public transit, allowing for an easy commute to Manhattan and other boroughs.
Lower level Floor Plan

This basement layout is designed for versatility and functionality. The open basement area provides ample space for recreation, storage, or future customization. A dedicated bathroom adds convenience, making the space more adaptable for various uses. The staircase is centrally positioned for easy access to the main floor, ensuring a smooth flow between levels. Additionally, exterior access allows for separate entry, enhancing the basement’s potential for independent use. Thoughtful design elements make this lower level both practical and flexible for a variety of needs.
Main Level Floor Plan

This main floor layout offers a harmonious blend of open-concept living and defined spaces. The entryway leads into a welcoming hallway with a graceful curved staircase, setting an elegant tone. The living room provides a cozy yet spacious area, seamlessly connecting to the dining room for effortless entertaining. The adjacent sitting room extends into the well-equipped kitchen, which features a central workspace and direct access to a patio, ideal for outdoor enjoyment. A conveniently located bathroom and storage areas enhance functionality, making this floor both practical and inviting.
Upper Level Floor Plan

This upper floor layout is designed for comfort and privacy, featuring three well-sized bedrooms. The primary bedroom offers a spacious retreat with ample natural light and a dedicated closet. Two additional bedrooms each include their own closet space, making them ideal for family members or guests. Two full bathrooms ensure convenience, with one serving as an en-suite to the primary bedroom. A centrally located hallway connects all spaces, with a gracefully curved staircase adding a touch of elegance. The thoughtful arrangement of rooms creates a functional and inviting living environment.
Listing Agent – Keller Williams @ Realty Landmark via Zillow
7. 3 bedroom House in Flushing, NY – $1,188,000

This charming 3-bed, 2-bath Dutch Colonial house in Flushing, NY, built in 1930, spanning on 1359 sqft living space on a 3,325 sqft lot exudes timeless character and warmth. Nestled on a quiet, tree-lined street, the home’s classic gambrel roof, striking red brick chimney, and crisp white siding create an inviting façade. A welcoming enclosed porch, adorned with a row of sun-filled windows, offers a cozy retreat while adding to the home’s curb appeal. Elegant wrought-iron railings lead up the brick steps, complementing the meticulously manicured landscaping. Set against a picturesque winter backdrop, this home is a perfect blend of classic design and enduring craftsmanship.
Where is Flushing?

Flushing, located in northeastern Queens, is a vibrant and diverse neighborhood known for its rich history and bustling commercial districts. Once a Dutch settlement, it has evolved into a global hotspot with a thriving Asian-American community, renowned for its authentic cuisine, cultural institutions, and shopping centers. The area is home to Flushing Meadows-Corona Park, Citi Field, and the USTA Billie Jean King National Tennis Center. With easy access to public transportation and a dynamic mix of old and new, Flushing continues to be one of New York City’s most energetic and rapidly growing neighborhoods.
Lower level Floor Plan

This basement layout offers a spacious and versatile area, perfect for recreation and storage. A large open recreational space provides flexibility for entertainment, fitness, or a home office setup. Multiple closets along one wall enhance storage options, keeping the area organized. The laundry area is conveniently located near the boiler space, ensuring practical functionality. Thoughtful design ensures that this lower level remains both efficient and adaptable for various household needs.
Main Level Floor Plan

This first-floor layout provides a well-balanced combination of functional and social spaces. The living room, dining room, and sunroom create a seamless flow for entertaining and relaxation. The kitchen is efficiently designed, complemented by a breakfast nook for casual meals. The presence of a sunroom at the back adds a bright and inviting space, ideal for enjoying natural light throughout the day. The placement of the staircase ensures easy access to the upper and lower levels while maintaining an open feel.
Upper Level Floor Plan

The second-floor layout is well-organized, featuring three bedrooms and a shared bathroom. The largest bedroom at the rear offers ample space and multiple closets, making it a great option for the primary suite. The two additional bedrooms are well-sized and equipped with closet space. The central hallway ensures convenient access to all rooms, while the placement of the bathroom near the staircase provides ease of use. The abundance of closets throughout the floor offers excellent storage solutions.
Attic Level Floor Plan

The attic floor consists of a large storage space measuring. With its open layout, this area offers significant flexibility for various uses, such as seasonal storage, a home office, or even a potential additional living space if finished properly. The stair access is centrally located, ensuring easy movement of items in and out of the space. The presence of windows at both ends allows for natural light, making it a well-lit storage area.
Listing Agent – Mitra Hakimi @ Realty Group LLC via Zillow
8. 3 bedroom House in Flushing, NY – $1,699,000

This stately multi-story home in Elmhurst, NY, built in 1920 spanning on 2356 sqft living space boasts 3 bedrooms and 4 baths and offers a perfect balance of classic charm and modern potential. With its striking gabled roofline, charming bay window, and inviting front porch, this residence exudes timeless character. The crisp white exterior is accented by contrasting black trim, while the wrought-iron gate and brick foundation add to its distinguished presence. A Juliet balcony on the upper level provides a quaint architectural detail, enhancing the home’s elegance. Nestled among mature trees and a well-kept urban streetscape, this home is a rare find with undeniable curb appeal.
Where is Flushing?

Flushing, located in northeastern Queens, is a vibrant and diverse neighborhood known for its rich history and bustling commercial districts. Once a Dutch settlement, it has evolved into a global hotspot with a thriving Asian-American community, renowned for its authentic cuisine, cultural institutions, and shopping centers. The area is home to Flushing Meadows-Corona Park, Citi Field, and the USTA Billie Jean King National Tennis Center. With easy access to public transportation and a dynamic mix of old and new, Flushing continues to be one of New York City’s most energetic and rapidly growing neighborhoods.
Lower level Floor Plan

The basement of this home offers a highly functional and versatile space, perfect for storage, utilities, and additional conveniences. With two sizable storage areas, you’ll have plenty of room for organization, whether it’s seasonal items, tools, or personal belongings. A small bathroom adds practicality, along with a dedicated laundry space featuring a washer and dryer. The utility area houses the furnace and water heater, ensuring efficiency. A closet provides extra storage, while an exterior entrance enhances accessibility. The staircase seamlessly connects this level to the main living areas.
Main Level Floor Plan

The first floor of this home is designed for both comfort and functionality, seamlessly blending formal and casual spaces. At the front, an enclosed porch welcomes you inside, leading to a cozy living room that flows into the dining area—perfect for gatherings. A private office space offers a quiet retreat for work or study. The spacious eat-in kitchen serves as the heart of the home, featuring modern appliances and ample counter space, with easy access to the backyard. A convenient full bath and laundry area add practicality, while the well-placed staircase connects this level to the others.
Upper Level Floor Plan

The second floor of this home offers a peaceful retreat with two spacious bedrooms, each designed for comfort and privacy. The primary bedroom features a charming bay window, flooding the space with natural light, while both bedrooms boast generous closet space. Two well-appointed bathrooms add convenience, ensuring a functional flow for daily routines. Thoughtfully placed storage solutions maximize organization, while a central hallway seamlessly connects the spaces. With its blend of style and practicality, this level is a perfect haven for relaxation and restful nights.
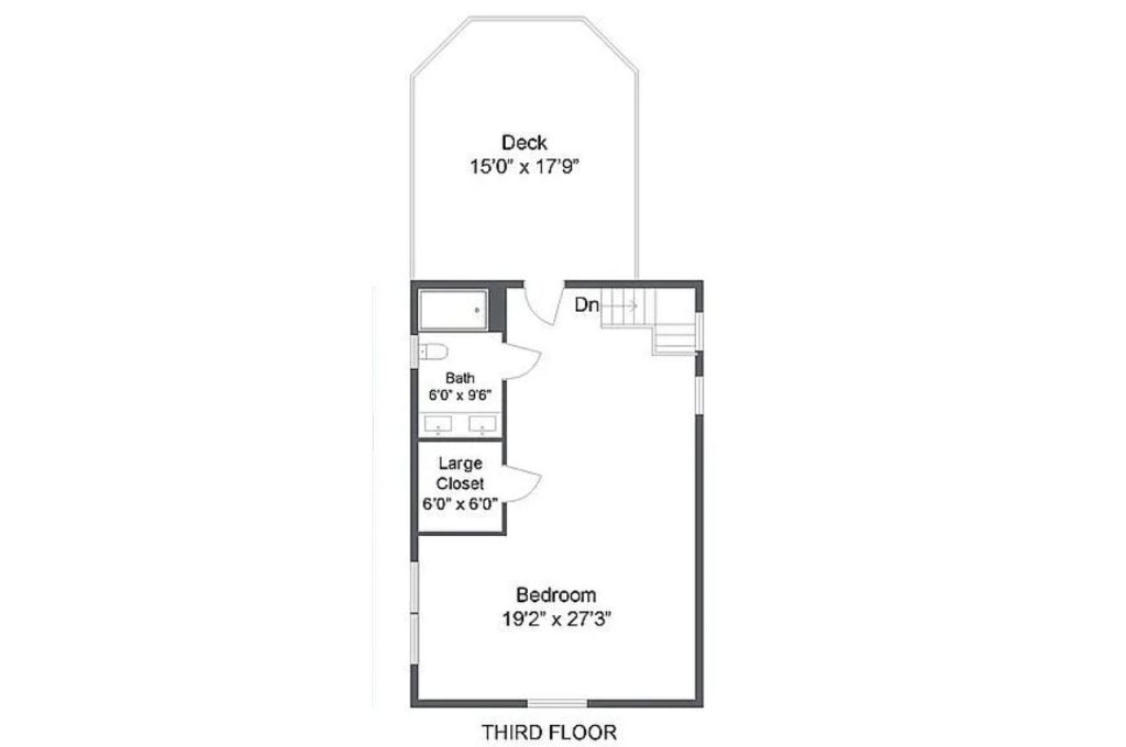
Third Level Floor Plan

The third floor is a private oasis, featuring an expansive bedroom that offers endless possibilities for comfort and style. A spacious walk-in closet provides ample storage, while the well-appointed bathroom adds convenience and elegance. The real highlight is the stunning deck, perfect for morning coffee, evening relaxation, or entertaining under the stars. This level feels like a secluded retreat, blending indoor comfort with outdoor charm. Whether used as a luxurious primary suite or a versatile living space, this floor is designed for both relaxation and inspiration.
Listing Agent – Coldwell Banker @ Reliable Real Estate via Zillow
9. 3 bedroom House in Bronx, NY – $1,895,000

This unique riverfront townhome in the Bronx, NY, offers a harmonious blend of contemporary design and rustic charm. Its striking brick façade is accentuated by elegant arched windows, lending a timeless European-inspired aesthetic. The rich wooden entry door, framed by lush greenery and a thoughtfully landscaped front yard, enhances the home’s inviting warmth. A cozy red bench and stone-accented garden provide a tranquil outdoor retreat. Nestled at the end of a quiet street with picturesque views of nature, this residence is a hidden gem, combining privacy, character, and urban convenience in one exceptional package.
Where is Bronx?

The Bronx, one of New York City’s five boroughs, is rich in culture, history, and urban energy. Known as the birthplace of hip-hop and home to Yankee Stadium, the Bronx is a hub of artistic expression, sports, and culinary diversity. The borough boasts green spaces like the Bronx Zoo and the New York Botanical Garden, offering residents and visitors a break from the city’s fast pace. Its neighborhoods range from bustling commercial districts to quieter, residential areas, reflecting the borough’s deep cultural roots and continuous evolution.
Lower level Floor Plan

This thoughtfully designed lower level offers a seamless blend of functionality and comfort. A spacious home office, complete with generous closet space, provides the ideal setting for productivity or a potential guest suite. The dedicated laundry room ensures everyday convenience, while a well-appointed bathroom adds to the level’s practicality. The highlight of this space is the expansive bonus room, perfect for a media lounge, fitness area, or recreation hub. Double doors lead to a private patio, creating an effortless indoor-outdoor flow for relaxation or entertaining. Whether used for work, leisure, or hosting, this level is a versatile retreat tailored to modern living.
Main Level Floor Plan

This main level is designed for effortless living and entertaining. A grand entryway welcomes you with ample storage, leading into the open-concept kitchen, where sleek finishes and modern appliances create a chef’s dream. The dining room serves as the heart of the home, offering a spacious setting for gatherings. Flowing seamlessly into the expansive living room, complete with a cozy fireplace, this space is perfect for both relaxation and socializing. Thoughtfully placed closets and a powder room add convenience, while access to an elevator enhances accessibility. This level is a perfect blend of elegance and functionality, setting the stage for comfortable, modern living.
Upper Level Floor Plan

This level is a sanctuary of comfort and sophistication, featuring a spacious primary bedroom that serves as a private retreat. Ample closet space ensures effortless organization, while the en-suite bath provides a spa-like atmosphere for relaxation. A second generously sized bedroom, complete with built-in storage, offers versatility for family, guests, or even a personal workspace. Thoughtfully designed bathrooms cater to both convenience and luxury, creating a seamless balance of function and style. With elevator access enhancing accessibility, this floor is a true haven, blending elegant living with everyday ease.
Listing Agent – Arlene Trebach @ TREBACH REALTY INC via realtor.com
10. 3 bedroom House in Queens Village, NY – $895,000

This charming multi-story home in Queens Village, NY, built in 1930 spanning 1300 sqft living space on a 3000 sqft lot offers a perfect blend of classic appeal and modern living. Featuring a distinctive gambrel roofline and a welcoming enclosed porch, this residence exudes warmth and character. The soft beige exterior, complemented by rich brown trim, enhances the home’s inviting aesthetic, while the wrought-iron fencing and manicured front lawn create an elegant curb appeal. A paved walkway leads to the grand wooden door, framed by symmetrical windows that allow natural light to pour into the space. Nestled among similar well-kept homes, this property is a rare find in a desirable neighborhood, offering both timeless charm and endless potential.
Where is Queens Village?

Queens Village, located in eastern Queens, offers a blend of suburban tranquility and urban accessibility. Known for its historic homes, diverse community, and strong family-oriented atmosphere, it has long been a sought-after residential neighborhood. With easy access to major roadways and public transit, Queens Village provides a balance of peaceful living and connectivity to the heart of New York City. Parks, schools, and local businesses contribute to the neighborhood’s welcoming and close-knit character.
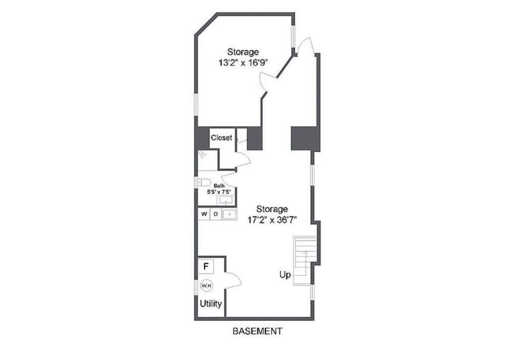
Lower level Floor Plan

This basement level offers a spacious open area ideal for various uses such as a recreation room, home gym, or additional living space. A small separate room adds flexibility for storage or a home office, while the utility room ensures essential household functions remain organized. A conveniently located bathroom enhances functionality, making this level a valuable extension of the home’s living space. The design maximizes both practicality and comfort, providing a versatile foundation for any lifestyle needs.
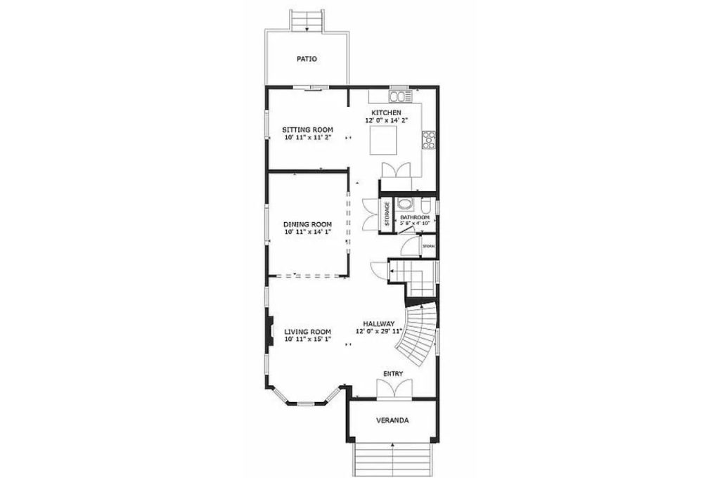
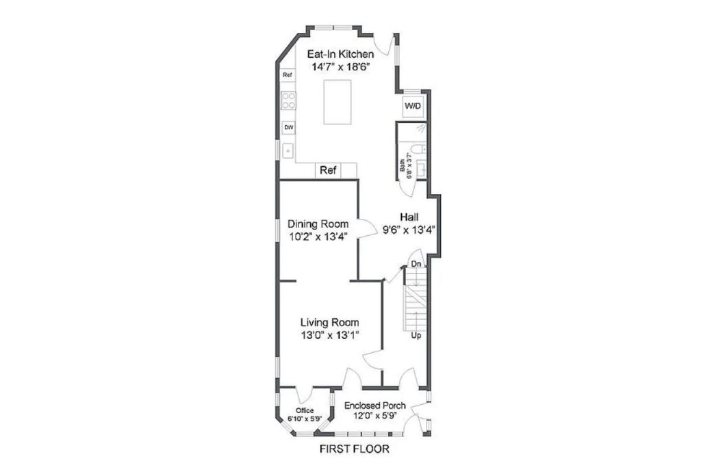
Main Level Floor Plan

This floor plan features a well-organized main level with a functional layout. The Living Room at the front provides a spacious area for relaxation and entertaining. Adjacent to it, the Dining Room serves as a central space for meals and gatherings. At the rear, the Eat-in Kitchen offers a modern cooking area with ample counter space and a dedicated dining section, making it both practical and inviting. The flow between these spaces ensures a comfortable and cohesive living experience.
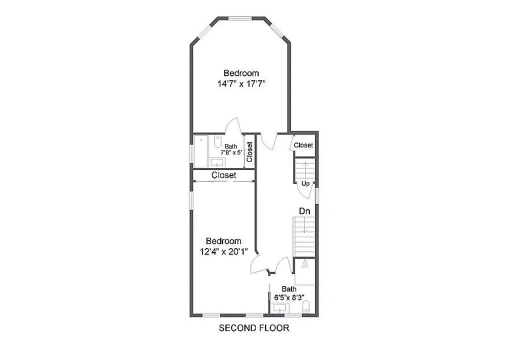
Upper Level Floor Plan

This floor plan represents the upper level of the home, featuring three well-proportioned bedrooms. The Primary Bedroom is located at the rear, offering a spacious and private retreat. Two additional Bedrooms are positioned towards the front and center, ideal for family members or guests. A centrally located Bathroom ensures easy access for all occupants, while a Hallway connects the rooms seamlessly. This layout maximizes comfort and functionality for everyday living.
Listing Agent – Edgardo Bacalan @ Keller Williams Realty Elite via realtor.com